手机版

百科生活 投稿

木饰面墙板一般多少钱一平方,木饰面墙板优缺点(木饰面背景墙搭配隐形门的做法以及费用)

百科 2026-02-12 12:01:06 投稿 阅读:9478次

关于【木饰面墙板一般多少钱一平方】:木饰面墙板优缺点 木饰面墙板一般多少钱一平方,今天涌涌小编给您分享一下,如果对您有所帮助别忘了关注本站哦。

  • 内容导航:
  • 1、木饰面墙板一般多少钱一平方:木饰面墙板优缺点 木饰面墙板一般多少钱一平方
  • 2、木饰面背景墙搭配隐形门的做法以及费用

1、木饰面墙板一般多少钱一平方:木饰面墙板优缺点 木饰面墙板一般多少钱一平方

问题详情

木饰面墙板优缺点一般多少钱一平方,木饰面墙板优缺点 知乎视频,木饰面墙板优缺点好吗,碳晶集成墙板优缺点是什么,集成墙板的优缺点有哪些,刮大白和集成墙板比较哪个好,家装用木饰面墙板好吗,十大集成墙板排名哪个好,铝合金集成墙板的优缺点有哪些,护墙板的缺点和危害是什么,木饰面好还是墙布好,碳晶板和集成墙板哪个好,千万不要装护墙板吗,木饰面墙板一般多少钱一平方,木饰面墙板优缺点有哪些?

精选回答

1、木饰面墙板优缺点说法三:降低噪音和促进睡眠质量。木材可以对声音产生完美的慢反射,有效缓冲重低音的冲击,以及材料本身对音响不良锐波的良好吸收,从而在空间形成完美三级降噪功能,能够在一定的程度上有效的提升整体的睡眠质量,使精神更加饱满。

2、木饰面墙板优缺点说法四:表面强度不佳,受外力易破损。虽然木饰面是一种经过改良的新型材料,但是其本质还是木材类,整体的强度不高,并不像石材、瓷砖等耐磨、坚硬,如果遇到外力冲击时比较容易造成损坏或者磨损,从而影响其使用寿命,因此在易受磕碰、撞击的环境中需谨慎选用木饰面。

3、木饰面墙板一般多少钱一平方并没有统一标准,主要看品牌,材质以及当地商家的报价,木饰面属于中高档的建材了,一般价格还是比价贵的,最便宜的都要几十元一个平方,好一点的例如实木的木饰面墙板一平方要几百元或者几千元都有,实际的还是要看商家报价是多少。

4、木饰面墙板优缺点说法一:美观自然。木饰面是采用木材制成,纹理自然细腻美观,装饰的效果非常好,如果巧妙的使用木饰面来进行搭配的话,会使得空间墙面装饰显得更加舒适自然,营造出简约大方简约的氛围,让整体的装修风格看起来更有高级感。

5、木饰面墙板优缺点说法二:隔热调湿。木饰面兼具木材和塑料的双重特性,并且剔除了木材和塑料的缺陷。同时木材还是一种不良导体,木材本身会对房间空气湿度起到调节作用,当空气中水蒸气压力大于木材水蒸气压力时,木材会吸收空气里面的水分,反之为解湿。从而能起到冬暖夏凉的效果。

6、木饰面墙板优缺点说法五:不耐用。木材相对于其他的装饰材料耐腐蚀性是相对比较差的,这是由材料本身的属性决定的,如果在比较潮湿的环境下使用的话,要慎重考虑,同时橡木类的木饰面材质因为其本身含糖量比较高,所以比较容易变色和易腐蚀以及虫蛀,所以在选装的时候一定要多留意一下。

2、木饰面背景墙搭配隐形门的做法以及费用

Q:墙面是否需要打底?打底用什么材料?怎么做最便宜?

A:需要打底,最好用欧松板打底,因为品牌厂家用的欧松板环保都是过关的,我选择的0.9厚度的兔宝宝,单价100一块,木工结束的时候让木工打的底 ,40元一个平方。

Q:木饰面用的什么材质。

A:我这个选择的莫干山的板材,说是9厘板,其实并没有那么厚,这个厚度很尴尬,导致后期的收边有点困难。

Q:木饰面单价多少,找谁做的?

A:因为资金有限,所以木饰面的做法想了很多办法,最后还是设计师朋友找的本地的全屋定制师傅安装柜子的时候一起做的……安装还算比较简单,就是收边的时候有点麻烦,如果可以,木饰面中间还是不需要金属条好一点 ,可以通过工厂直接木饰面四周封边,就不需要金属条了……单价是150一平米材料人工都包含,这个价格我觉得还挺便宜的了,加上前期的欧松板以及木工打底,单平方造价在230左右。

Q:隐形门如何衔接

A:隐形门是我一开始最担心的事情,因为如果隐形门不隐形那就很尴尬了……做法就是让做门的做一扇平板板,木饰面贴在上面,四周封边就可以。记得要选回弹合叶跟隐形门专用门锁。

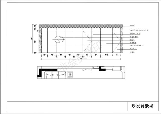
最后两张图,是当时设计师做的图纸,后期也没完全按照那个做,一路边做边改。

木饰面墙板一般多少钱一平方,木饰面墙板优缺点(木饰面背景墙搭配隐形门的做法以及费用)

木饰面墙板一般多少钱一平方,木饰面墙板优缺点(木饰面背景墙搭配隐形门的做法以及费用)

木饰面墙板一般多少钱一平方,木饰面墙板优缺点(木饰面背景墙搭配隐形门的做法以及费用)

本文关键词:木饰面墙板甲醛高不高,木饰面板和集成墙板哪个好,木饰面板优缺点,木饰面墙板一般多少钱一平方,竹木纤维墙板的优缺点。这就是关于《木饰面墙板一般多少钱一平方,木饰面墙板优缺点(木饰面背景墙搭配隐形门的做法以及费用)》的所有内容,希望对您能有所帮助!

本文链接:https://bk.89qw.com/a-262036

最近发表
网站分类