手机版

百科生活 投稿

现代简约建筑风格,现代简约装修风格简介(71㎡现代简约风格)

百科 2026-04-03 11:18:59 投稿 阅读:7964次

关于【现代简约建筑风格】:现代简约建筑风格(现代简约装修风格简介),今天小编给您分享一下,如果对您有所帮助别忘了关注本站哦。

  • 内容导航:
  • 1、现代简约建筑风格(现代简约装修风格简介)
  • 2、简约≠简陋,71㎡现代简约风格,让院子更显高级!值得收藏借鉴

1、现代简约建筑风格(现代简约装修风格简介)

现代简约建筑风格(现代简约装修风格简介)

好的

2021-07-23 16: 49石广亭花园养护石广亭景观

现代庭院,

遵循反对过度装饰的简约设计理念。

简约的特点是设计元素、色彩、灯光、原材料的简化。

材料的颜色和质地要求很高。

因此,简单的空设计通常是微妙的。

通常可以做到以少胜多,化繁为简。

简单和简单不一样。

简约强调设计的功能性,

强调结构和造型的完整性,

追求材料、技术和空的深度和精度。

需要更多高素质、有实践经验的设计师。

1.现代风格庭院特色:

现代主义风格体现了简约之美。

现代风格的庭院非常适合周围的现代主义风格。

在任何建筑中,

可以搭配现代风格的庭院,除非是典型的常规风格。

用最简单的线条勾画和分析空之间的整体结构,

使用独特的TINT在空之间营造一种冲击感,

用最简单的方法放大作品的美。

2.现代风格庭院元素:

现代庭院体现了简约之美,追求自由,自由的氛围。

这类庭院主要指新型装饰材料、

加入简单抽象的元素,大胆的对比色等。

突出庭院的新鲜感和时尚感。

这需要设计师深入生活,

仔细思考,反复思考,仔细提炼。

用最少的设计语言表达最深的设计内涵。

色彩高度浓缩,造型极其简洁,

在空之间创造合理精致的组合,

用最细腻的笔触,

描述空之间最丰富最感人的效果,

这是设计师的最高境界。

简洁的街区构成了一个干净的空房间,

美丽的植物创造了新鲜的环境,

没有额外的装饰,一切都保持简单。

2、简约≠简陋,71㎡现代简约风格,让院子更显高级!值得收藏借鉴

设计亮点:防腐木铺装、休闲卡座、现代简约风格、花拱门、种植区、洗手池。

现代简约建筑风格,现代简约装修风格简介(71㎡现代简约风格)

出户打造三级台阶直通庭院休闲区,铺装防腐木地板增添庭院温馨感,紧挨着围墙砌筑L型卡座,增加休闲区域面积,再多人到家中做客也能坐得下,搭配一个小小的玻璃茶几和两把休闲椅,约上三五好友到家小聚,畅谈人生理想。

现代简约建筑风格,现代简约装修风格简介(71㎡现代简约风格)

现代简约建筑风格,现代简约装修风格简介(71㎡现代简约风格)

现代简约建筑风格,现代简约装修风格简介(71㎡现代简约风格)

沿着台阶走下来映入眼帘的是现代小景,围栏一侧打造大理石树池花坛,地面设计多肉砾石小景,靠近建筑一侧摆放树池花坛同色系的盆栽,自然清新。地面铺装好打理的花岗岩地砖,摆放6人位餐桌椅,满足一家人的用餐需求。

现代简约建筑风格,现代简约装修风格简介(71㎡现代简约风格)

餐区和菜园中间安装花拱门营造自然惬意的视觉效果,靠近庭院一段摆放防腐木种植箱,用来种植瓜果蔬菜。

现代简约建筑风格,现代简约装修风格简介(71㎡现代简约风格)

现代简约建筑风格,现代简约装修风格简介(71㎡现代简约风格)

现代简约建筑风格,现代简约装修风格简介(71㎡现代简约风格)

现代简约建筑风格,现代简约装修风格简介(71㎡现代简约风格)

现代简约建筑风格,现代简约装修风格简介(71㎡现代简约风格)

现代简约建筑风格,现代简约装修风格简介(71㎡现代简约风格)

现代简约建筑风格,现代简约装修风格简介(71㎡现代简约风格)

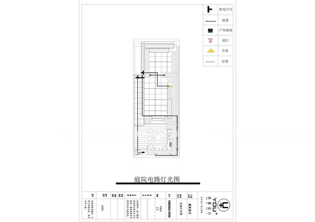
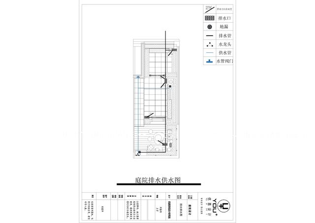
二、庭院施工图(仅供参考)

现代简约建筑风格,现代简约装修风格简介(71㎡现代简约风格)

现代简约建筑风格,现代简约装修风格简介(71㎡现代简约风格)

现代简约建筑风格,现代简约装修风格简介(71㎡现代简约风格)

现代简约建筑风格,现代简约装修风格简介(71㎡现代简约风格)

现代简约建筑风格,现代简约装修风格简介(71㎡现代简约风格)

现代简约建筑风格,现代简约装修风格简介(71㎡现代简约风格)

本文关键词:现代简约建筑风格外观,现代简约建筑风格说辞,现代简约建筑风格设计理念,现代简约建筑风格优点,现代简约建筑风格缺点。这就是关于《现代简约建筑风格,现代简约装修风格简介(71㎡现代简约风格)》的所有内容,希望对您能有所帮助!

本文链接:https://bk.89qw.com/a-272635

最近发表
网站分类