手机版

百科生活 投稿

湉字取名的寓意,湉字取名的寓意女孩(这样设计才够惊艳)

百科 2026-03-21 14:27:41 投稿 阅读:8110次

关于【湉字取名的寓意】:湉字取名的寓意(湉字取名的寓意女孩),今天小编给您分享一下,如果对您有所帮助别忘了关注本站哦。

  • 内容导航:
  • 1、2套老宅改造,这样设计才够惊艳
  • 2、湉字取名的寓意(湉字取名的寓意女孩)
  • 3、湉字取名的寓意是什么?
  • 4、湉字取名的寓意是什么?
  • 5、湉字女孩名字寓意是什么?
  • 6、湉字取名的寓意

1、2套老宅改造,这样设计才够惊艳

01.

挚舍南禅观水酒店

湉字取名的寓意,湉字取名的寓意女孩(这样设计才够惊艳)

项目位于无锡南禅寺脚下,旧民居群中,清名桥古运河之滨,故取名为“南禅观水”。

湉字取名的寓意,湉字取名的寓意女孩(这样设计才够惊艳)

随着时代变迁和城市更新,本哲在解构民宿建筑新含义的同时,又传承了历史文化遗产的精髓。

湉字取名的寓意,湉字取名的寓意女孩(这样设计才够惊艳)

原址是典型的传统三进式院落,前低后高,较为保守。旧建筑四周封闭,室内光感不强,楼道狭窄,藏匿了许多安全隐患。

湉字取名的寓意,湉字取名的寓意女孩(这样设计才够惊艳)

改造后的建筑,依旧白墙黛瓦,小桥流水,保留了这座江南小院古朴典雅的气息,增加了更多的开放空间。铁锈板、简约的落地玻璃及独特的导向系统等现代设计元素,赋予了老宅新的活力。

湉字取名的寓意,湉字取名的寓意女孩(这样设计才够惊艳)

正门拆除了旧址厚重的土墙,往后退出左右两处空间,往前探出方形盒子般的落地窗,使原本扁平的入口处更富有层次。

湉字取名的寓意,湉字取名的寓意女孩(这样设计才够惊艳)

湉字取名的寓意,湉字取名的寓意女孩(这样设计才够惊艳)

细木格栅窗替代了封闭阴暗的旧窗,改造后的正立面与旧民居群形成对立统一。

湉字取名的寓意,湉字取名的寓意女孩(这样设计才够惊艳)

前台入口处整体新浇的混凝土三通盒子,贯通了前台、餐厅及庭院。餐厅由榻榻米、散座和水吧组成,视野通透,高低错落。

湉字取名的寓意,湉字取名的寓意女孩(这样设计才够惊艳)

项目在打造前台到房间的通道时,巧妙地设计了内外两条相互独立的路径。内路径由前台通向餐厅,再由餐厅绕道至房间,曲径通幽;

湉字取名的寓意,湉字取名的寓意女孩(这样设计才够惊艳)

湉字取名的寓意,湉字取名的寓意女孩(这样设计才够惊艳)

外路径由前台直达二进房间,路径下沉于水面,仿佛人在水中走。漂浮在水面的茶室,别有一番“大隐隐于世”的低调与沉静。

湉字取名的寓意,湉字取名的寓意女孩(这样设计才够惊艳)

二进开始便进入了酒店的房间区,院中保留了旧宅原有的荷花池,走道被拓宽,池边有足够空间嬉戏观鱼。民宿共有十六间房,风格各异,像十六颗璀璨的珍珠,环绕镶嵌在这片迷人的水上庭院。

湉字取名的寓意,湉字取名的寓意女孩(这样设计才够惊艳)

房间“溯、泛、泊、泽、瀚、澔、润、漾、湛、泓、渡、湉、漪、澹、澈、澄”,皆以水字旁的字命名,“水”有灵性,亦是生命之源;观水,亦观心。

湉字取名的寓意,湉字取名的寓意女孩(这样设计才够惊艳)

湉字取名的寓意,湉字取名的寓意女孩(这样设计才够惊艳)

房间“溯”与“渡”复古怀旧,素净的白岩墙,深棕色的原木,基克拉迪风格的拱门,为空间赋予了独特的印记。

湉字取名的寓意,湉字取名的寓意女孩(这样设计才够惊艳)

湉字取名的寓意,湉字取名的寓意女孩(这样设计才够惊艳)

房间“润”和“漾”是酒店打造的两间loft大跃层,磨砂不锈钢及原木与原始的裸露墙面相碰撞,节奏性的空间排序,体现出解构主义的秩序感。

湉字取名的寓意,湉字取名的寓意女孩(这样设计才够惊艳)

湉字取名的寓意,湉字取名的寓意女孩(这样设计才够惊艳)

房间“漾”别具匠心地打造了一张悬空的网状休息区,标新立异,住宿体验更有趣味。

湉字取名的寓意,湉字取名的寓意女孩(这样设计才够惊艳)

湉字取名的寓意,湉字取名的寓意女孩(这样设计才够惊艳)

湉字取名的寓意,湉字取名的寓意女孩(这样设计才够惊艳)

湉字取名的寓意,湉字取名的寓意女孩(这样设计才够惊艳)

房间“泛”和“泓”以工业风为基底,干净利落的线条,裸露的原色墙面和金属,传达克制冷艳的美感,几何性和构成性创造出中性、纯粹的空间体验,粗犷别致之中不乏细腻的笔触。

湉字取名的寓意,湉字取名的寓意女孩(这样设计才够惊艳)

湉字取名的寓意,湉字取名的寓意女孩(这样设计才够惊艳)

改造后的后院别有意趣,枯山水的禅意淡泊宁静。

湉字取名的寓意,湉字取名的寓意女孩(这样设计才够惊艳)

湉字取名的寓意,湉字取名的寓意女孩(这样设计才够惊艳)

新造混凝土墙体及楼梯与原有山墙相衔接,赤裸冷冽。拾级而上,阳光透过圆孔,将光与影的虚实之美发挥到极致。

湉字取名的寓意,湉字取名的寓意女孩(这样设计才够惊艳)

挚舍·南禅观水,源于历史,归于自然,让建筑、人与自然之间达到鹭港共通的境界。

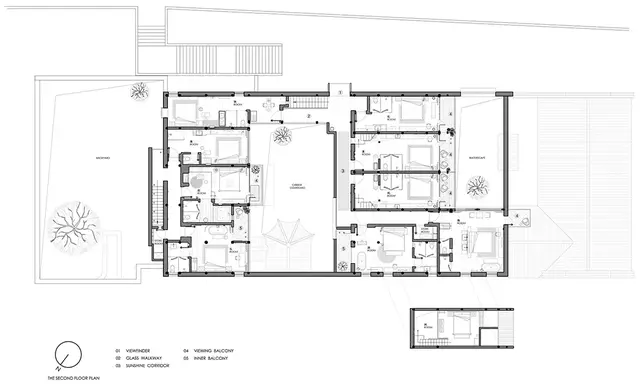
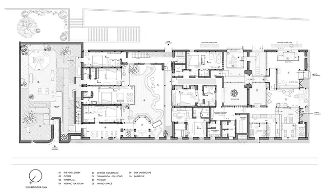
项目图纸

湉字取名的寓意,湉字取名的寓意女孩(这样设计才够惊艳)

△一层平面图

湉字取名的寓意,湉字取名的寓意女孩(这样设计才够惊艳)

△二层平面图

湉字取名的寓意,湉字取名的寓意女孩(这样设计才够惊艳)

△正面立面图

湉字取名的寓意,湉字取名的寓意女孩(这样设计才够惊艳)

△测面立面图

湉字取名的寓意,湉字取名的寓意女孩(这样设计才够惊艳)

△后院立面图

项目名称:挚舍·南禅观水酒店

业主方:渡口空间(无锡)酒店管理有限公司

项目地点:中国江苏省无锡市梁溪区南下塘街135号

设计单位:上海本哲建筑设计有限公司

建筑面积:1280㎡

主案建筑师:蒋华健

设计团队:姚瑞艮 林桐

摄影:苏圣亮 / 是然建筑摄影

湉字取名的寓意,湉字取名的寓意女孩(这样设计才够惊艳)

02.

d-u 渡咖文集

d-u渡咖文集坐落于有着“江南水弄堂,运河绝版地”之称的清名桥古运河景区内,与挚舍·南禅观水酒店相邻。在满足保持整体风格一致的需求下,又要体现其作为独立美学空间的多样性。

湉字取名的寓意,湉字取名的寓意女孩(这样设计才够惊艳)

老街南下塘仍旧保留着当初枕河人家、小桥流水的古镇风貌。更新后的入口处,细木格栅窗替代了原有的密闭花格窗,更加轻简有温度;外凸原木落地玻璃窗的运用让室内外空间更加敞亮通透。

湉字取名的寓意,湉字取名的寓意女孩(这样设计才够惊艳)

咖啡厅侧面开辟出进入室内的通道,褐色砂石中青石板路曲折迂回,营造出温婉江南的意境。

湉字取名的寓意,湉字取名的寓意女孩(这样设计才够惊艳)

推开主入口实木大门,是一个艺术展示区,兼具接待、艺术沙龙、展厅的功能。

湉字取名的寓意,湉字取名的寓意女孩(这样设计才够惊艳)

湉字取名的寓意,湉字取名的寓意女孩(这样设计才够惊艳)

湉字取名的寓意,湉字取名的寓意女孩(这样设计才够惊艳)

作为展厅时,空间内部的接待台和休闲长椅可瞬间变为吧台和展台。

湉字取名的寓意,湉字取名的寓意女孩(这样设计才够惊艳)

湉字取名的寓意,湉字取名的寓意女孩(这样设计才够惊艳)

湉字取名的寓意,湉字取名的寓意女孩(这样设计才够惊艳)

湉字取名的寓意,湉字取名的寓意女孩(这样设计才够惊艳)

艺术空间和咖啡区由落地大玻璃窗隔开,两个空间纵深相互延展。

湉字取名的寓意,湉字取名的寓意女孩(这样设计才够惊艳)

半开放式的水吧便于咖啡师与客人对话交流,咖啡的研磨、萃取等全过程一目了然。重构顶部空间,让线条交错中又有着独特的几何秩序的美。

湉字取名的寓意,湉字取名的寓意女孩(这样设计才够惊艳)

湉字取名的寓意,湉字取名的寓意女孩(这样设计才够惊艳)

湉字取名的寓意,湉字取名的寓意女孩(这样设计才够惊艳)

用餐区中央整体被抬高,形成颇具日式风格的榻榻米区,带有多格书架的实木吧台、水吧及下沉式休闲区域,让室内空间错落有致,形成一个有趣的视觉体系。

湉字取名的寓意,湉字取名的寓意女孩(这样设计才够惊艳)

邻窗水流声不绝于耳,树影婆娑,内院景色一览无余。

湉字取名的寓意,湉字取名的寓意女孩(这样设计才够惊艳)

湉字取名的寓意,湉字取名的寓意女孩(这样设计才够惊艳)

湉字取名的寓意,湉字取名的寓意女孩(这样设计才够惊艳)

艺术空间和咖啡区的交接处,有一个狭长的新浇混凝土通道,内外切换给人强烈的“穿越”感。下沉式的江南庭院风雅别致,置身其中,偷得浮生半日闲。

湉字取名的寓意,湉字取名的寓意女孩(这样设计才够惊艳)

湉字取名的寓意,湉字取名的寓意女孩(这样设计才够惊艳)

湉字取名的寓意,湉字取名的寓意女孩(这样设计才够惊艳)

湉字取名的寓意,湉字取名的寓意女孩(这样设计才够惊艳)

湉字取名的寓意,湉字取名的寓意女孩(这样设计才够惊艳)

湉字取名的寓意,湉字取名的寓意女孩(这样设计才够惊艳)

△家具细节

湉字取名的寓意,湉字取名的寓意女孩(这样设计才够惊艳)

江南老街,古运河之滨,咖啡飘香。渡咖文集,演绎一段中西交响曲。

项目图纸

湉字取名的寓意,湉字取名的寓意女孩(这样设计才够惊艳)

△平面布置图

湉字取名的寓意,湉字取名的寓意女孩(这样设计才够惊艳)

△正面立面图

湉字取名的寓意,湉字取名的寓意女孩(这样设计才够惊艳)

湉字取名的寓意,湉字取名的寓意女孩(这样设计才够惊艳)

湉字取名的寓意,湉字取名的寓意女孩(这样设计才够惊艳)

△侧面立面图

项目名称:d-u 渡咖文集

项目地点:中国无锡市南下塘街135号

设计单位:上海本哲建筑设计有限公司

建筑面积:148平方米

主案建筑师:蒋华健

摄影:形在空间摄影 | 贺川

2、湉字取名的寓意(湉字取名的寓意女孩)

湉字女孩名字寓意是什么?

  湉字的含义:1、五行:水。
  2、康熙字典笔画:12。
  3、字解:湉tián〔湉湉〕形容水面平静,如:“白露烟分光的的,微涟风定翠湉湉”。
  4、本义:形容水面平静。
  湉字女孩名字 1、梓湉(zǐtián)意指生机勃勃、英姿飒爽、。

3、湉字取名的寓意是什么?

  湉字取名的寓意是有趣灵动,活泼热情的意思。
  一、湉的释义:〔湉湉〕水流平静的样子。
  二、拼音:tián 三、部首:氵 四、笔画:点、点、提、点、点、竖、撇、横、竖、竖、横折、横 湉的相关组词:1、湉湉[tián 。

4、湉字取名的寓意是什么?

  亲,您好,我是晨曦占星师,您的问题由我来为您回答,正在为整理答案,内容需要打字,可以需要点时间,最迟,1到5分钟会为您解答,【摘要】湉字取名的寓意是什么?【提问】亲,您好,我是晨曦占星师,您的问题由我来为您。

5、湉字女孩名字寓意是什么?

  4、筱湉:“筱”字在名字中的寓意是:单纯可爱、正直、聪明伶俐,使名字听起来清新、优雅。
  5、湉昕:“昕”是一个积极向上且富有正能量的字,寓意希望、朝阳升起、光明。
  湉字取名寓意 “白露烟分光的的,微涟风定翠湉湉。

6、湉字取名的寓意

  湉字取名的寓意 湉字的五行属水,用作人名寓意温柔、儒雅,给人以诚实、有爱、善良、情商高的印象。
  杜牧的诗中说道:"白露烟分光的的,微涟风定翠湉湉"。
  因此有人曾用湉湉来取名字。
  类似还有露湉、容湉、苒湉、梦湉、。

本文关键词:甜字取名的寓意是什么意思,湉字取名的寓意女孩,女孩小名湉湉的寓意,带湉字的女孩名字,湉字取名的寓意是什么意思。这就是关于《湉字取名的寓意,湉字取名的寓意女孩(这样设计才够惊艳)》的所有内容,希望对您能有所帮助!

本文链接:https://bk.89qw.com/a-361159

最近发表
网站分类