手机版

百科生活 投稿

构造柱设置要求规范,构造柱设置规范要求(门窗洞口是否要设置构造柱)

百科 2026-02-12 14:56:22 投稿 阅读:3391次

关于【构造柱设置要求规范】:构造柱设置规范要求,今天小编给您分享一下,如果对您有所帮助别忘了关注本站哦。

  • 内容导航:
  • 1、门窗洞口是否要设置构造柱?建筑图纸怎么说?规范怎么说?全齐了
  • 2、构造柱设置要求规范:构造柱设置规范要求

1、门窗洞口是否要设置构造柱?建筑图纸怎么说?规范怎么说?全齐了

门窗洞口两侧是否加设构造柱,通常在《结构设计总说明》中有明确说明,没有明确说明也会让指明参照图集。

简单来说:

有说明按说明,没说明按规范。

做为现场施工管理人员,在选择做法时,应先设计后规范来,或者咨询相关设计单位确定。

一、看实际施工图纸上怎么说明的?

结构上关于门窗洞口做法的具体说明,一般是在《结构总说明》的填充墙部分。

构造柱设置要求规范,构造柱设置规范要求(门窗洞口是否要设置构造柱)

这是某研究院办公楼的有关门窗洞口设置构造柱的说明。

设计说明中明确要求:门窗洞口=2000时,两侧设置钢筋混凝土构造柱,且构造柱间距不大于4m。

构造柱设置要求规范,构造柱设置规范要求(门窗洞口是否要设置构造柱)

这是某洋房的结构说明关于门窗洞口构造柱的相关说明。

结构说明中的要求:宽度大于1.8m小于2.1m的门窗洞口两侧,均应高钢筋混凝土边框,构造柱与边框的做法说《西南157G701》相关内容。

构造柱设置要求规范,构造柱设置规范要求(门窗洞口是否要设置构造柱)

这是某高层住宅的总说明中,关于门窗洞口两侧构造柱的说明:

有洞口的填充墙构造详《西南05G701(一)》P26页,相关内容。

本三套图纸都是小编经历过的,但是就门窗洞口的说明,说法却不尽相同。

第一张办公楼的明确了洞口尺寸=2000的情况下要设置构造柱;

第二张洋房说明中,说明了洞口尺寸18002000时,要设置混凝土边框,而要设置构造柱则按照《西南157G701》相关内容;

第三张高层住宅说明中,洞口设置构造柱参《西南05G701(一)》P26页,相关内容;

上面三栋建筑的总说明中,关于门窗洞口两侧是否设置构造柱的说法都不相同。

构造柱设置要求规范,构造柱设置规范要求(门窗洞口是否要设置构造柱)

二、看看规范图集上是怎么说明的?

《西南05G701(一)》

构造柱设置要求规范,构造柱设置规范要求(门窗洞口是否要设置构造柱)

6、7度设防时,洞口1500=2100时,设置混凝土边框;

6、7度设防时,洞口2100时,设置混凝土构造柱;

8、9度设防时,洞口1200时,设置混凝土边框;

8、9度设防时,洞口1200时,设置混凝土构造柱;

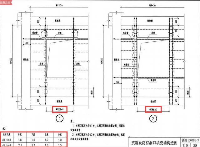
再看看《西南157G701》

构造柱设置要求规范,构造柱设置规范要求(门窗洞口是否要设置构造柱)

6度设防时,洞口1800时,设置混凝土边框;

6度设防时,洞口2100时,设置混凝土构造柱;

7度设防时,洞口1500时,设置混凝土边框;

7度设防时,洞口2100时,设置混凝土构造柱;

8度设防时,洞口1200时,设置混凝土边框;

8度设防时,洞口1800时,设置混凝土构造柱;

9度设防时,洞口1000时,设置混凝土边框;

9度设防时,洞口1500时,设置混凝土构造柱;

总体来说,新的规范比旧的要求更高一点。

最后,想要说明一点的就是,填充墙门窗洞口两侧是否设置构造柱的问题,还是要设计说了算。

如果设计明确要求达到某宽度值时要设置构造柱,那就必须按设计图纸的要求来做。

如果设计只明确了参考图集编号,那就按相关图集要求做。

构造柱设置要求规范,构造柱设置规范要求(门窗洞口是否要设置构造柱)

上图是高层住宅的入户门,且是样板墙,没有做构造柱,在两侧门框墙上预埋了混凝土砖,方便后期固定门框用。

以上图集只针对西南地区,其他地区的还请参照当地的相关图集要求说明。


[建筑圈]原创文章,转载请联系作者,并注明出处!

2、构造柱设置要求规范:构造柱设置规范要求

构造柱是为了增强建筑的整体性和稳定性,所以在日常生活中对构造柱的要求是严格的。下面我们来介绍一下构造柱的具体设置规范!

工具/材料

规则

当房屋墙体转角处没有其他支撑物时,需要安装设置构造柱。

在较大开口的两侧和无约束墙的末端,也需要设置结构柱进行支撑。2根6@500结构柱和墙体拉杆沿墙体全高布置。

当墙体长于5厘米时,需要在墙体中间设置构造柱。

构造柱最小截面尺寸为24cm和18cm,竖向钢筋为4.12,箍筋间距不大于25cm。随着强度和层数的增加,建筑四角构造柱的截面和配筋等级可以适当增加。

对于120(或100)厚的墙体,当墙高小于或等于3 m时,洞口宽度小于或等于2.4m,不满足时,应增设构造柱或钢筋混凝土水平系梁。

对于180(或190)厚的墙体,当墙高小于等于4m时,洞口宽度小于等于3.5m,不满足时,应增设构造柱或钢筋混凝土水平系梁。

构造柱的作用范围在多层砌体房屋、底框和内框砖砌体中,其作用一般是加强纵墙之间的连接,因为构造柱与其相邻的纵横墙和齿连接,沿墙高每500mm设置2 (6)根拉筋,钢筋每边伸入墙内100mm以上。一般施工时先砌砖墙,后浇混凝土柱,可增加水平墙的组合,提高砌体抗剪承载力10%和30%。虽然增加率不高,但能明显抑制墙体开裂,限制裂缝的发生。构造柱与圈梁的连接工作可以分割和包围砖砌体,当砌体出现裂缝时,可以迫使裂缝在封闭范围内不进一步扩展。砌体虽然出现裂缝,但可以限制其错位,保持其承载力,抵消振动能量,使其不容易提前倒塌。砌体结构作为竖向受力构件,在地震时最怕散落、散落落地,从而造成水平楼板和屋面的倒塌,而构造柱则可以防止或延缓倒塌时间,减少损失。构造柱与圈梁之间的连接可以起到类似框架结构的作用,其效果非常明显。

构造柱结构要求多层粘土砖房构造柱必须满足以下要求:(1)最小截面可采用240mm、180 mm、180mm,纵筋为4 (12)根,箍筋间距不大于250mm,柱两端适当加密。7度时,建筑不应超过6层,8度时,7至9层建筑的竖向钢筋直径应为4 (14),箍筋间距不应大于200mm。建筑四角构造柱的截面和配筋量可以适当增加。⑵构造柱与墙体的连接处应做成马牙形,沿墙高每500mm设置2 (6)根拉结钢筋,每边伸入墙内不小于1米。(3)构造柱与圈梁连接。圈梁设置在夹层中时,无圈梁的楼板应加带砂浆的钢筋砖,并增加切屑;只有在外墙四周设置构造柱,在外墙上伸开间,截面和高度不应小于四皮砖,砂浆强度等级不应低于M5。构造柱不应单独设置基础,但必须延伸至室外地面以下500mm或锚入不浅于500mm的基础圈梁。底框砖房和多层框砖房的构造柱应符合下列要求:构造柱截面不小于240mm,纵筋不小于4 (14),箍筋间距不大于200mm,构造柱与每层圈梁连接。

构造柱的设置原则:1。现浇混凝土构造柱应根据砌体结构类型结构或砌体结构体系构件的受力或稳定性要求以及其他功能或结构要求设置在墙体的规定位置;2.对于开间荷载较大或层高较高、8层及以上的砌体房屋,应按以下要求设置构造柱:墙体两端;较大孔的两侧;构造柱应与圈梁可靠连接。3.以下情况应设置构造柱:受力或稳定性不足的小型墙垛;当大跨度梁下墙体厚度有限时,宜设置在梁下;当墙的高厚比较大时,如自承墙或风荷载较大时,可在墙的适当部位设置构造柱。

砌体构造柱设置规范:1。当墙体转角处没有框架柱时,应在不同厚度墙体的交接处设置构造柱。2.当墙长超过5m(或墙长超过两倍高度)时,结构柱应设置在墙长的中间(孔附近有孔时)。3.构造柱应设置在大孔的两侧和无约束墙的末端。4.构造柱与墙体之间的拉结筋贯穿墙体全长。

构造柱是先砌墙后浇筑混凝土加固墙体的柱子。首先,根据统计图中各种类型结构柱的数量,按照以下公式计算混凝土和钢筋的工程量。混凝土工程量:柱高*截面面积*柱数=(m3),其中:柱高为柱基上表面至柱顶面,或地面圈梁顶面至屋面圈梁顶面。2.钢筋数量:一般主筋为4C12;箍筋为6@200主筋:主筋长度*数量*比重(kg/m)*柱数=(kg)箍筋:(柱截面周长-8*保护层厚度+2弯钩增加长度)* [(柱高-2*保护层厚度)/箍筋间距@] *比重(kg/m)*柱数其模板面积=(构造柱宽度+马牙槎宽度)*柱高混凝土体积=柱底面积*柱高= [(柱截面长度+边数*马牙槎/2)*墙厚] *构造柱的计算规则:1。构造柱只适用于先砌墙后浇筑的情况,比如构造柱先浇筑后砌墙,不考虑截面。墙芯柱按结构柱定额及相应说明执行。2.构造柱按整体高度计算,带砖墙的预埋件体积并入柱身体积

构造柱的间距应分两种情况。一种是作为约束边缘构件的单个结构柱。这类构造柱的设置主要考虑约束墙截面的长度,以往抗震规范中没有明确,砌体的水平墙和纵向墙都没有提出间距要求。证明构造柱的约束作用是有限的。比如过去在纵向墙体设置构造柱时,只要求在两端设置构造柱,长度在几十米的构造柱很难约束墙体截面的破坏。此时,结构柱的数量远远不够。即使横墙中构造柱的间距一般可达11~12米,也难以充分发挥构造柱的作用。根据工程实践经验和相关试验研究分析结果,新规范对此进行了补充和完善:当层数和建筑高度接近或达到砌体结构的极限高度时,为水平。墙体中构造柱的间距不应超过层高的2倍,即一般不应超过5.4米;纵墙中的构造柱一般不超过3.9米(外纵墙)和4.2米(内纵墙),即每个开间需要设置一根构造柱。实验证明,当墙体截面的宽高比超过2时,构造柱的约束作用会减小。

1.构造柱应与圈梁连接,构造柱纵筋应穿过圈梁,保证构造柱纵筋自上而下贯穿。夹层有圈梁的房屋,在没有圈梁的楼层应设置加强砖带。只有当构造柱设置在外墙的四个角上时,它们才应延伸到外墙的一个隔间上,在其他情况下,它们应穿过外部纵向墙和相应的横向墙。截面高度不应小于四皮砖,砂浆强度不应低于M5。2.构造柱与墙体的连接处应做成马牙形,沿墙高每500 mm设置2 ~ 6根拉杆,每边伸入墙内至少1米或伸至洞口边缘。3.构造柱最小截面可为240 180 mm,房屋四角构造柱截面尺寸可适当增大。施工时,构造柱混凝土强度等级不应低于C15,配筋等级一般为1级钢,混凝土保护层厚度为20mm,不宜小于15mm,不宜大于25 mm,纵筋宜为4 12,箍筋间距不宜大于250mm,柱上下两端宜采用适当加密;7℃时超过6层,8℃时超过5层,9℃时构造柱纵筋采用4.14,箍筋间距不大于200mm。在圈梁与构造柱的交接处,圈梁钢筋应放在构造柱钢筋内,即构造柱应视为圈梁的支座,对结构有利。4.构造柱基础可不单独设置,但应伸入地面500mm。柱根部应设置120毫米厚的混凝土支座,柱的竖向钢筋应锚固在支座内,有利于抗震,便于施工。当有基础圈梁时,构造柱的竖向钢筋可锚固在室外地面下50毫米的基础圈梁内。基础圈梁高于室外地面(室内外相差较大)时,结构柱仍应伸至室外地面以下500mm,柱根处设置120mm厚的混凝土支座。当管沟附着在墙上时,结构柱的嵌入深度应大于管沟的深度。

相关规定:《砌体结构设计规范》(GB 50003-2011),6.3.4、10.2.4、10.2.5、10.2.6、10.4.10、10.4.11,《建筑抗震设计规范》(GB 50011

本文关键词:框架填充墙构造柱设置规范要求,加气块墙构造柱设置规范要求,构造柱规范,构造柱间距要求,砌体构造柱设置要求规范。这就是关于《构造柱设置要求规范,构造柱设置规范要求(门窗洞口是否要设置构造柱)》的所有内容,希望对您能有所帮助!

本文链接:https://bk.89qw.com/a-400455

最近发表
网站分类