手机版

百科生活 投稿

浴室柜安装高度,浴室柜安装高度尺寸(浴室柜安装高度一般是的多少)

百科 2026-02-09 03:21:40 投稿 阅读:4626次

关于【浴室柜安装高度】:浴室柜安装高度尺寸,今天小编给您分享一下,如果对您有所帮助别忘了关注本站哦。

  • 内容导航:
  • 1、浴室柜安装高度尺寸
  • 2、浴室柜安装高度一般是的多少?浴室柜安装高度是怎么算的?

1、浴室柜安装高度尺寸

  1、浴室柜一般安装高度是80厘米,这个尺寸可以根据我们家人的身高进行调整,如果家人身高比较高,可以适当调高尺寸,身高偏低,要适当调低。一般是在胳膊肘以下十几公分的高度,在手腕以上。

  2、浴室柜的宽度在80厘米以上,使用起来较为舒适,主要考虑两肘部活动空间,避免磕碰的发生。建议浴室柜的横向活动空间在90厘米以上。

  3、安装浴室柜前,应该预留至少65厘米的活动空间,如果身体偏胖还需加宽,主要考虑弯腰时臀部的活动空间。

2、浴室柜安装高度一般是的多少?浴室柜安装高度是怎么算的?

你知道常规的浴室柜高度吗?在购买浴室柜时候需要了解自己家卫生间预留的浴室柜面积,这样才能选择合适高度和长度的浴室柜。那么常见的浴室柜的尺寸是多少?高度是多少?浴室柜的高度是否包括浴室柜桌腿?不同的浴室柜像悬挂式浴室柜和落地浴室柜的高度分别是多少?带着这些疑问蜜罐蚁小编给大家详细解答下关于浴室柜高度和尺寸相关问题。

浴室柜安装高度,浴室柜安装高度尺寸(浴室柜安装高度一般是的多少)

常规的浴室柜尺寸和规格

常见的浴室柜分为落地式浴室柜和悬挂式浴室柜,这两种类型的浴室柜的高度也有差别,一般落地式浴室柜大概高度是在80cm左右,也有70cm和90cm和100cm,对于浴室柜的高度一般是根据业主家里人身高来选择,如果家里人身高普遍较高,肯定选择浴室柜高度高一点的,如果家里人身高不高,一般选择低一点浴室柜。

浴室柜安装高度,浴室柜安装高度尺寸(浴室柜安装高度一般是的多少)

不过目前绝大部分家庭的浴室柜高度都是在80cm和90cm左右,几乎差别不是太大,因为目前国内标准高度是1米7左右,所以浴室柜的高度是在80和90才是正常的高度。

浴室柜安装高度,浴室柜安装高度尺寸(浴室柜安装高度一般是的多少)

看看上面这张图,这张图是某品牌浴室柜单盆和双盆浴室柜高度,双盆浴室柜高度是80cm和78cm,单盆的浴室柜高度是50cm和52cm,这个高度基本上常规高度。

浴室柜安装高度,浴室柜安装高度尺寸(浴室柜安装高度一般是的多少)

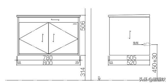
再看这张图,这张图是某品牌60\80和100长度的浴室柜高度,基本上都是高度都是45cm,宽度也是45,当然这个是悬挂式的,悬挂式的一般浴室柜高度会比较低,因为浴室柜距离地面还有留有一定高度,一般都是预留30cm左右,所以这种悬挂式浴室柜的高度大都是在45cm左右吧,再加上落地的举例,基本上也就是在75cm和80cm左右了。

最后给大家总结一下吧,目前来说浴室柜主要说的是浴室柜主柜,不是镜柜,如果包含镜柜的高度那就更高了,一般包含镜柜的高度都会在1米8以上,如果是纯粹是浴室柜主柜,一般也就是在80cm左右,浴室柜又分为悬挂式和落地式浴室柜,悬挂式柜体的高度大概是在45cm左右,加上离地距离是在75cm左右,落地式浴室柜基本上高度就是在80cm左右了。

好了,关于浴室柜的高度蜜罐蚁装修网小编就给大家介绍到这里吧,如果您觉得本文不错,不妨把本文分享给您身边的朋友们吧!

本文关键词:浴室柜的安装高度一般是多少,安装浴室柜高度是多少,浴柜安装高度尺寸一般多少,浴室柜安装高度标准是多少,浴室柜安装高度一般是多少。这就是关于《浴室柜安装高度,浴室柜安装高度尺寸(浴室柜安装高度一般是的多少)》的所有内容,希望对您能有所帮助!

本文链接:https://bk.89qw.com/a-437734

最近发表
网站分类