百科生活 投稿
关于【胶粘石地面做法】:胶粘石地面做法,今天涌涌小编给您分享一下,如果对您有所帮助别忘了关注本站哦。
- 内容导航:
- 1、胶粘石地面做法
- 2、石材安装知识,学习一下
1、胶粘石地面做法
1、垫层清理:在压光地坪在阳光充足情况下进行保养一周后进行自然干燥10-15天后进行地面清扫,清扫保持地坪没有任何灰尘建筑废料可进行胶筑石下一步工作。
2、图形编制:在地面保持干燥情况下进行图纸胶筑石图形或颜色分割线标记。
3、分割条处理:按照分割线或者图形标记进行分割条安装切割地坪,切割深度在1厘米以内。
4、大面积铺装:将同色的胶筑石调和粘合比例进行铺装,边角分割用塑料条安装保护,当凝固硬度大90%进行分割条安装(铜条、玻璃条、不锈钢条),安装完后进行胶筑石平整度调整。其他颜色同等方法。
5、小面积图形或分割颜色处理:把特殊颜色图形先行铺装,用塑料条保护图形或分割颜色,先把塑料条插入地坪切割好的标记槽中,然后调和树脂、固化剂、石米粘合比例进行铺装,在小面积图形或分割颜色凝固硬度90%,进行分割条安装(铜条、玻璃条、不锈钢条),安装完后进行胶筑石平整度调整。
6、 凝固胶筑石保护:表层凝固6小时后,进行地面保护(防尘保护)彩条布覆盖,整体铺装后胶粘石整体面积凝固48小时后可正常行人行走(3公分厚度24小时可正常行人行走,6公分48小时后可正常人行走),胶筑石整体凝固期间,做好防尘,防雨等措施,避免2000公斤以上超承重车辆等负载超重物体进行承载。
7、 硬度加固和光泽效果:整体硬度达到95%(100公斤承重以上),可进行整体的树脂固化剂喷涂(工具:气泵)树脂和固化剂要6小时速凝标准。
2、石材安装知识,学习一下
一、湿贴安装:
1.1 、地面石材安装
施工准备——确定主次位置——找好安装基准——铺干硬性水泥砂浆(捏握成团有点水渗出即可)——纯水泥砂浆披刮石材背面——安装——填缝(深色材料采用黑水泥,浅色材料采用白水泥切不可用云石胶嵌缝,防止板面污染)——护理(石材安装完成后,可采取镜面保护)
【注意】
1.安装地坪石材,要注意石材背面胶网;如果将胶网撕掉,施工中石材易破损而且水泥浆水从石筋中渗出表面,初看似断裂状;如果不撕掉胶网,施工二天后金属敲击石材,发出类似空鼓声音。处理办法:如果胶网与石材背面紧密胶结,建议不去掉胶网直接施工;如果胶网与石材连接较松,建议去掉胶网施工。如果浆水从石材表面渗出,二天后用墙纸刀片轻轻刮掉即可。
2. 米黄、白色石材施工:砂浆拌和物采用黑水泥,石材背面用白水泥披浆。深颜色石材则均采用黑水泥。
1.2 、墙面石材湿贴 (以20mm 厚石材为例,且仅针对室内 )
施工准备(钻孔、剔槽)—→穿铜丝或镀锌铅丝与石材固定—→绑扎、固定钢丝网—→根据弹好的地线和所吊垂线找正—→安装石材―→分层灌浆—→表面勾缝与擦缝;
注意:
1、湿贴层厚度一般在 20-30mm.(视墙面平整度来定,平整墙面一般湿贴层厚度在 20mm)。
2、室内墙面安装石材,尽量避免灌浆(深色石材除外),因为这样施工,石材表面因吸水率不同而颜色深浅不一,白色材料表面有锈斑和泛碱等现象出现。
1.3 、 基层是木夹板的石材安装 (主要是服务台和背景墙)
如果墙面基层为木工板,需要石材的背网撕下来,然后直接用胶粘贴在大芯板上面,石材背面离大芯板空隙在 5mm 之内。一般用石材 AB 胶(杜绝采用云石胶)作木工板与石材的粘结物,再在石材宽度方向开槽,用 18#铜丝将石材与木工板上的自攻螺丝连接即可。
注意:胶粘法施工相对简单,但胶粘效果受胶的影响大,在控制进度和质量方面不易保证;由于胶粘点隐蔽,一旦粘结缺陷未被发现,将造成安全隐患。所以一般都是不高的情况才用胶粘法,例如服务台。(注意:胶粘是必须中有螺丝钉或者铜丝固定再打胶,壁炉不适合用此法,一般干挂最好)
1.4 、台面板石材安装 (主要是洗手台和化妆台)
台面板安装中,注意台面的下挡水板不能用胶来固定,因为胶有“寿命”,且长期接触液体,一旦失效,下挡水板易脱落而伤人。处理办法,应采用胶与不锈钢挂件相结合的方法 ,下挡水板的重量主要考虑让挂件传递给钢骨架。台板安装后,石材与台盆必须用耐候胶封闭 ,以防止云石胶长期在水的作用下而失效。
1.5 、薄板或20mm 板对开后的板(一般用于卫生间或清洁间):
基层处理―→吊垂线找正(含用靠尺)―→抹底层砂浆―→镶贴石材―→表面勾缝与擦缝;湿贴层厚度一般在 12mm 左右;
1.6 、新的湿贴方法 —— 石材粘合剂
石材粘合剂主要用于粘贴大理石、花岗石等各类石材和大规格墙地砖;
1.6.1 、石材粘合剂的产品特点:
A、施工方法简单,与贴瓷砖、墙地砖一样直接将石材粘贴在各种材质的基面上,无需挂件等辅料、无需打孔、固定等工序,墙面及石材底面不需浸湿,无建筑垃圾;
B、使用本品可薄层粘贴,这与传统材料和传统施工方法比较,可极大减轻建筑物自重 ,大大提高工效,减少人工投入,扩大室内空间、增大使用面积,提高建筑物使用功效;
C、优异的耐久性,可避免因墙体冻融而发生的剥落,良好的和易性,便于施工,提高工效和质量,有一定的开放时间,可在粘贴时进行适当调整,便于排放整齐。
1.6.2、石材粘合剂的使用方法:
A、基层处理:除去粘贴层表面的油脂、浮尘、疏松物等各种不利于粘结的物质,底层和饰面材料均不需要用水湿润,饰面材料的粘结面应保持清洁;
B、粘结胶的配制:粘结剂和水为 4∶1 左右的比例(重量比)进行混和并搅拌调至稠度合适的浆体,静置 10 分钟,在这段时间内混合物稠度将会增大,再充分搅拌使其恢复至最初稠度即可使用,第二次搅拌时,一般情况下不需要再加水;
C、粘贴方法:用抹子或齿型刮板将胶浆涂抹于基面上,将瓷砖等饰面材料揉压或搓动贴在胶浆上摆正,也可按常规贴法将拌和胶浆抹于瓷砖背面,再用力搓压到墙上,摆正,刮去多余胶浆。
D、在 24 小时后勾缝。
1.6.3、注意事项
A、拌和粘结剂的水必须使用清水(如:洁净的自来水);
B、配制粘结胶过程中,不得添加其它材料和外加剂;
C、调好后的浆料宜控制在 2 小时内用完;
D、石材的粘结面在粘结前不宜用普通防护剂做防护处理,否则易引起脱落;建议用AD2009 防水背胶,既可防脱落又能防水渍、白华。
二、干挂安装方法
干挂一般要先烧钢架,以 25mm 厚板干挂为例;
2.1 、开槽式(缝挂式)干挂法
开槽式干挂:是在石材上下边开条通槽或半圆槽,用 T 型板扣住槽边。通过槽内注胶来固定石材与挂件的一种安装方式。这种方式由于上下石材无法通过位移通在震动较大时容易发生四边的勾板与石材、石材与石材之间的挤压破坏,防震性能差。
2.1.1 、认识基本的石材挂件
2.1.2 、开槽式(缝挂式)干挂结构组成
从开槽式干挂结构原理来分析,这种干挂抗位移变形能力差,
从开槽式干挂结构原理来分析,这种干挂抗位移变形能力差,支撑点局部承载力低,要用较厚的石材。用这种方法做的幕墙不能用大规格尺寸的石材,其主要原因就是这种安装方式在石材安装时就形成了层层受压,石材成了墙体,幕墙越高压力越大,其 T 型板处的弯曲应力也越大,对这种类型的干挂方式的安全隐患,国家已对 JGJ133 进行了修改,将 T 型的双面扣件改为 L 型单面扣,以每块为一单元扣于副龙骨,并且采用高承载力的龙骨改变层层受压。
开槽式的不足:
1、对石材厚度要求较高,由于将石材一分为三,因此剩余受力石材太薄,消弱了干挂点处的抗拉强度。一般石材厚度不小于 20mm(不含磨边);
2、由于石材的硬度大,因此开槽时极易造成破损;
3、需要安装钢龙骨,加大建筑物承重,且增加成本;
4、板材的受力方式为点承重,抗震性能差,安全系数低;
5、最大的缺点是装上后就不能单块再调整和卸下。
2.1.3开槽式(缝挂式)干挂的各种应用
A 、角钢切好后烧在槽钢之间的空间里:
从墙面到石材完成面一般需要 85-100mm 距离;这个是标准做法,但是由于需要把角钢分段切好再烧嵌到槽钢(主龙骨)之间,所以用得比较少,但是在空间不够的情况下,可以按这个方法进行;
B 、角钢烧在槽钢表面上:
墙面到完成面需要 130-180mm 空间(6.5#槽钢做主龙骨为例,很多工地用方通更加牢靠) ;如果是内墙,因其主龙骨会用 6.3#,5#的较小规格,那么安装距离会相应减小(所以对于石材放线问清楚安装的主龙骨,对放线和加余量都有帮助)。至于副龙骨,也就是我们常说的角铁 ,其规格一般是 4#或 5#(壁厚 3.5-5mm)又因它直接和马件(托板)相连,有调节空间,所以一般不提及。此方法虽不是标准做法,但是因其操作方便,所以在现场见得最多。
C 、混凝土墙直接用角钢和马件进行安装(点挂法)

使用于在空间不高(10 米以下)的混凝土墙上,土建到完成面是 70mm 左右;需要用化学螺栓(通过合成树脂砂浆粘合锚杆和孔壁,使锚杆、锚固基础与被锚固对象形成一个整体 ,从而达到固定构件或提高构件承载力的效果)将副龙骨(角铁)固定在混凝土墙上。在商场单柱上使用的最为普遍。
这种安装方法,承受力是没有问题的,单大面积墙体不会使用,因为很难保证它的平整度和垂直度以至于影响安全系数;(主龙骨不仅只是受力考虑,关键是可以调节平整度和垂直度,以方便副龙骨上安装石材)
D 、在砖墙上打穿墙螺丝用角钢和扣件进行安装;

这是在垒砖单墙因为不是很厚,而安装空间又不够,无法植筋做主龙骨的时候,采用打穿墙螺丝将副龙骨(角铁)固定在墙上。土建到完成面是 70mm 左右;穿墙背后需要钢板固定(一般是四个穿墙螺丝拉一块钢板)。同样此方法不适合大面积安装,也只能是局部考虑用此方法安装。另外还得注意:背面墙是否已经装饰完成,或者是准备装饰什么材料,这对于能否采用此方法进行安装是个很关键的因素。
2.1.4 、 开槽式(缝挂式)干挂方法的隐藏结构报审图
因为干挂石材的干挂结构在施工完成之后,属于隐藏结构,它隐患在石材表面是看不到的,所以很多业主需要隐藏结构报审之后方允许安装(例如我司接的广州、深圳、青岛香格里拉酒店),因此需要绘制隐藏结构报审图;

隐藏结构报审图,它和石材排版图是一一对应的。因此有一页干挂石材排版图,就必须有一页干挂钢结构报审图,在图中需要详细的注明槽钢和角铁的排版,以及预埋件植筋钢板的布置,这些图纸对于日后维修和翻新等都能起到很好的指导作用。
一份隐藏结构报审图,在首页或者末页需要附上石材干挂竖剖、横剖图以及预埋件图,同时需要注明各辅材的防锈处理方法,尤其是焊点;
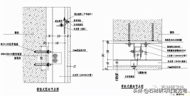
2.3 、背栓式方法干挂石材(外墙花岗岩)
背栓连接是通过双切面抗震型后切锚栓、连接件将石材与骨架连接的一种石材幕墙固定方法。双切面背栓由于采用圆体紧靠点支撑,在通过底部空隙技术后,可将背栓植得更深,大大提高负压值,具有最佳的局部承载力。由于该背栓的柔性连接和紧靠的的铰接悬挂结构 ,解决了单切面背栓、背槽、槽式扭弯矩问题和位移问题。它需要通过专业的开孔设备,在石材背面精确加工“内大、外小”的锥形圆孔,把锚栓植入孔中,拧入螺杆,使锚栓底部完全展开,与锥形孔相吻合,形成一个无应力的凸型结合,通过连接件将瓷板固定在龙骨上。
2.3.1 、 背栓式方法干挂优点
1 、板材之间独立受力,独立安装,独立更换,节点做法灵活;
2、连接可靠,对石板的削弱较小,减少连接部位石材局部破坏使石材面板有较高的抗震能力。
3、可准确控制石材与锥形孔底的间距,确保幕墙的表面平整度。
2.3.2 、 背栓式方法干挂缺点
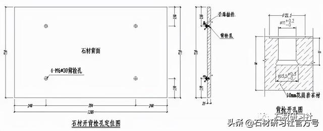
1、石材厚度需要大于或等于 25mm,推荐 30mm;
2、石材安装完成面到基层的距离较大(250-300mm),且对平整度和垂直度要求很高,对于安装空间受限制的不实用。
3、背栓孔必须采用专用机具成批加工。(一块板四个背栓孔);
4、石块面积不宜大于 1.5 ㎡,挂件一般采用不锈钢挂件;
2.3.2 、图示结构和现场照片解析
背栓式幕墙石材需要打背栓孔,在处理排版图纸的时候,往也需要处理注明背栓孔的开孔位置和开孔大小。下图为石材开背栓孔的节点图,给大家以后处理图纸做些参考!
作者:罗帮杰
本文关键词:胶粘石地面做法工艺,胶粘石地面图片,彩色胶粘石地坪做法,胶粘石地面做法大全,胶粘石施工方法视频。这就是关于《胶粘石地面做法,胶粘石地面做法视频(石材安装知识,学习一下)》的所有内容,希望对您能有所帮助!
- 最近发表