手机版

百科生活 投稿

cad断线合并成一条线快捷键,cad合并的快捷键是什么(AUTOCAD——JOIN合并命令)

百科 2026-04-03 21:26:15 投稿 阅读:7812次

关于【cad断线合并成一条线快捷键】,cad合并的快捷键是什么,今天小编给您分享一下,如果对您有所帮助别忘了关注本站哦。

  • 内容导航:
  • 1、cad断线合并成一条线快捷键:cad合并的快捷键是什么
  • 2、AUTOCAD——JOIN合并命令

1、cad断线合并成一条线快捷键:cad合并的快捷键是什么

演示机型:华为MateBook X系统版本:win10APP版本:cad2020

cad合并的快捷键是J。使用的时候有前提条件,在输入PE命令并已经输入了多个线段且每两段线之间保证只有一个交点,且交点处没有多余的线露出来,保证正好相交。用鼠标选择按下回车,出现[闭合(C)/打开(O)/合并(J)/宽度(W)/拟合(F)/样条曲线(S)/非曲线化(D)/线型生成(L)/放弃(U)]:, 输入J,确认即可合并上述的线段。

2、AUTOCAD——JOIN合并命令

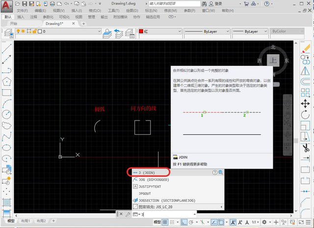
合并相似对象形成一个完整对象。例如,圆弧,同方向的线,重合的线等。

执行方式

1.输入命令“JOIN”(快捷键:J),按下空格键。

JOIN命令

cad断线合并成一条线快捷键,cad合并的快捷键是什么(AUTOCAD——JOIN合并命令)

2.根据提示,选择源对象或要一次合并的多个对象,选择完成后,按下空格键。

选择对象

cad断线合并成一条线快捷键,cad合并的快捷键是什么(AUTOCAD——JOIN合并命令)

3.选择圆弧,则根据提示输入“L”选择闭合圆弧,再按下空格,完成命令。

闭合圆弧

cad断线合并成一条线快捷键,cad合并的快捷键是什么(AUTOCAD——JOIN合并命令)

完成命令

cad断线合并成一条线快捷键,cad合并的快捷键是什么(AUTOCAD——JOIN合并命令)

4.选择同方向的两条直线或重合的两条线,则直接空格,完成合并命令。

同方向的两条直线

cad断线合并成一条线快捷键,cad合并的快捷键是什么(AUTOCAD——JOIN合并命令)

重合的两条线

cad断线合并成一条线快捷键,cad合并的快捷键是什么(AUTOCAD——JOIN合并命令)

完成合并命令

本文关键词:cad合并多段线,cad合并快捷键合并一个整体,cad怎么把散线合并成整体,cad合并成一个整体,cad线段合并成一个整体。这就是关于《cad断线合并成一条线快捷键,cad合并的快捷键是什么(AUTOCAD——JOIN合并命令)》的所有内容,希望对您能有所帮助!

本文链接:https://bk.89qw.com/a-522054

最近发表
网站分类