百科生活 投稿
关于【剖面图怎么看】:剖面图怎么看,今天小编给您分享一下,如果对您有所帮助别忘了关注本站哦。
- 内容导航:
- 1、剖面图怎么看
- 2、快速看懂建筑平面图、立面图、剖面图,就是这么简单
1、剖面图怎么看
1、剖面图的数量是根据房屋的具体情况和施工实际需要而决定的。剖切面一般横向,即平行于侧面,必要时也可纵向,即平行于正面。其位置应选择在能反映出房屋内部构造比较复杂与典型的部位,并应通过门窗洞的位置。若为多层房屋,应选择在楼梯间或层高不同、层数不同的部位。剖面图的图名应与平面图上所标注剖切符号的编号一致,如1-1剖面图、2-2剖面图等。
2、剖面图中的断面,其材料图例与粉刷面层和楼、地面面层线的表示原则及方法,与平面图的处理相同。
3、习惯上,剖面图中可以不画出基础的大放脚。
2、快速看懂建筑平面图、立面图、剖面图,就是这么简单
快速学会建筑工程图纸识读技能(水暖电建)【全套视频教程+书籍】
01
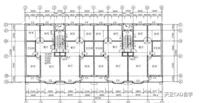
建筑平面图
一、建筑平面图的形成和用途
1、建筑平面图的形成
建筑平面图是用一个假想的水平剖切平面沿略高于窗台的位置剖切房屋,移去上面部分,剩余部分向水平面做正投影,所得的水平剖面图,称为建筑平面图,简称平面图。
2、建筑平面图表达的内容
建筑平面图反映新建建筑的平面形状、房间的位置、大小、相互关系、墙体的位置、厚度、材料、柱的截面形状与尺寸大小,门窗的位置及类型。
3、建筑平面图的用途
是施工放线、砌墙、安装门窗、室内外装修及编制工程预算的重要依据,是建筑施工中的重要图纸。
二、建筑平面图的图示方法
1、建筑平面图的数量
一般情况下,房屋有几层,就应画几个平面图,并在图的下方注写相应的图名。由于多(高)层房屋其中间层构造、布置情况基本相同,画一个平面图即可 。

2、建筑平面图的图线
平面图实质上是剖面图 ,被剖切平面剖切到的墙、柱等轮廓线用粗实线表示。未被剖切到的部分如室外台阶、散水、楼梯以及尺寸线等用细实线表示。门的开启线用细实线表示。
3、建筑平面图的比例
建筑平面图常用的比例是1:50、1:100或1:200。其中1:100使用最多。
三、建筑平面图的图示内容
1.表示所有轴线及其编号、以及墙、柱、墩的位置、尺寸。
2.表示出所有房间的名称及其门窗的位置、编号、与大小。
3.注出室内外的有关尺寸及室内楼地面的标高。
4.表示电梯、楼梯的位置及楼梯上下行方向及主要尺寸。
5.表示阳台、雨蓬、台阶、斜坡、烟道、通风道、管井、消防梯、雨水管、散水、排水沟、花池等位置及尺寸。
6.画出室内设备,如卫生器具、水池、工作台、隔断及重要设备的位置、形状。
7.表示地下室、地坑、地沟、墙上预留洞、高窗等位置尺寸。
8.在底层平面图上还应该画出剖面图的剖切符号及编号
9.标注有关部位的详图索引符号。
10.底层平面图左下方或右下方画出指北针。
11.屋顶平面图上一般应表示出:女儿墙、檐沟、屋面坡度、分水线与雨水口、变形缝、楼梯间、水箱间、天窗、上人孔、消防梯及其它构筑物、索引符号等。
施工图常用符号图例大全请参考↓↓↓
很实用的施工图常用符号及图例大全
四、建筑平面图的识读
(一)底层平面图的识读
1.了解平面图的图名、比例。
2.了解建筑的朝向。
3.了解建筑的平面布置。
4.了解建筑平面图上的尺寸。
建筑平面图上标注的尺寸均为未经装饰的结构表面尺寸。
建筑占地面积为首层外墙外边线所包围的面积。
使用面积是指建筑物各层平面布置中可直接为生产或生活使用的净面积总和。
建筑面积是指各层建筑外墙结构的外围水平面积之和。包括使用面积、辅助面积和结构面积。
平面面积利用系数K=使用面积/建筑面积×100%
5.了解建筑中各组成部分的标高情况。
6.了解门窗的位置及编号。
7.了解建筑剖面图的剖切位置、索引标志。
8.了解各专业设备的布置情况。
(二)标准层平面图和顶层平面图的识读
为了简化作图,已在底层平面图上表示过的内容,在标准层平面图和顶层平面图上不再表示。
顶层平面图上不再画二层平面图上表示过的雨蓬等。
识读标准层平面图和顶层平面图重点应与底层平面图对照异同

(三)屋顶平面图的识读
屋顶平面图主要反映屋面上天窗、水箱、铁爬梯、通风道、女儿墙、变形缝等的位置以及采用标准图集的代号、屋面排水分区、排水方向、坡度、雨水口的位置、尺寸等内容。

02
建筑立面图
一、立面图的形成、用途与命名方式
在与建筑立面平行的铅直投影面上所做的正投影图称为建筑立面图,简称立面图。立面图主要反映房屋各部位的高度、外貌和装修要求,是建筑外装修的主要依据。
立面图的命名方式有三种:
1、用朝向命名:建筑物的某个立面面向那个方向,就称为那个方向的立面图。
2、按外貌特征命名:将建筑物反映主要出入口或比较显著地反映外貌特征的那一面称为正立面图,其余立面图依次为背立面图、左立面图和右立面图。
3、用建筑平面图中的首尾轴线命名:按照观察者面向建筑物从左到右的轴线顺序命名。
施工图中这三种命名方式都可使用,但每套施工图只能采用其中的一种方式命名。
二、建筑立面图的图示内容和规定画法
1、基本内容
(1)建筑立面图主要表明建筑物外立面的形状;
(2)门窗在外立面上的分布、外形、开启方向;
(3)屋顶、阳台、台阶、雨蓬、窗台、勒脚、雨水管的外形和位置;
(4)外墙面装修做法;
(5)室内外地坪、窗台窗顶、阳台面、雨篷底、檐口等各部位的相对标高及详图索引符号等。
2、规格和要求
(1)定位轴线
一般只标出图两端的轴线及编号,其编号应与平面图一致。
(2)图线
①立面图的外形轮廓用粗实线表示;
②室外地坪线用1.4倍的加粗实线(线宽为粗实线的1.4倍左右)表示;
③门窗洞口、檐口、阳台、雨篷、台阶等用中实线表示;
④其余的,如墙面分隔线、门窗格子、雨水管以及引出线等均用细实线表示。
(3)图例
在立面图上,门窗应按标准规定的图例画出。
(4)尺寸注法
在立面图上,高度尺寸主要用标高表示。一般要注出室内外地坪、一层楼地面、窗洞口9的上下口、女儿墙压顶面、进口平台面及雨篷底面等的标高。
(5)外墙装修做法
外墙面根据设计要求可选用不同的材料及做法,在图面上,多选用带有指引线的文字说明。
三、立面图识读举例
1.从正立面图上了解该建筑的外貌形状,并与平面图对照深入了解屋面、名称、雨蓬、台阶等细部形状及位置。
2.从立面图上了解建筑的高度。
3.了解建筑物的装修做法。
4.了解立面图上的索引符号的意义
5.了解其它立面图
6.建立建筑物的整体形状。
03
建筑剖面图
一、建筑剖面图的形成与用途
假想用一个或一个以上的铅垂剖切平面剖切建筑物,得到的剖面图称为建筑剖面图,简称剖面图。 建筑剖面图用以表示建筑内部的结构构造、垂直方向的分层情况、各层楼地面、屋顶的构造及相关尺寸、标高等。
剖切的位置常取楼梯间、门窗洞口及构造比较复杂的典型部位。剖面图的数量,则根据房屋的复杂程度和施工的实际需要而定。 剖面图的名称必须与底层平面图上所标的剖切位置和剖视方向一致。
二、剖面图的图示内容及规定画法
1、定位轴线
应注出被剖切到的各承重墙的定位轴线及与平面图一致的轴线编号和尺寸。
2、图线
室内外地坪线用加粗实线表示;地面以下部分,从基础墙处断开,另由结构施工图表示;剖面图的比例应与平面图、立面图的比例一致;
①比例小于1:50的剖面图 ,可不画出抹灰层,但宜画出楼地面、屋面的面层线;
②比例大于1:50的剖面图,应画出抹灰层、楼地面、屋面的面层线,并宜画出材料图例;
③比例等于1:50的剖面图,宜画出楼地面、屋面的面层线,抹灰层的面层线应根据需要而定;
在剖面图中一般不画材料图例符号,被剖切平面剖切到的墙、梁、板等轮廓线用粗实线表示,没有被剖切到但可见的部分用细实线表示,被剖切断的钢筋混凝土梁、板涂黑。但宜画出楼地面、屋面的面层线。
3、尺寸注法
在剖面图中,应注出垂直方向上的分段尺寸和标高。
㈠垂直分段尺寸:一般分三道
㈡标高:应标注被剖切到的外墙门窗口的标高,室外地面的标高,檐口、女儿墙顶的标高,以及各层楼地面的标高。
三、剖面图的识读
1.先了解剖面图的剖切位置与编号
2.了解被剖切到的墙体、楼板和屋顶
3.了解可见的部分
4.了解剖面图上的尺寸标注
快速学会建筑工程图纸识读技能(水暖电建)【全套视频教程+书籍】
本文关键词:地震剖面图怎么看,钢结构剖面图怎么看,钢构图纸剖面图怎么看,剖面图怎么看,剖面图怎么容易看懂。这就是关于《剖面图怎么看,建筑剖面图怎么看(快速看懂建筑平面图、立面图、剖面图)》的所有内容,希望对您能有所帮助!
- 最近发表