手机版

百科生活 投稿

吊顶的七种做法,吊顶的七种做法图片(谁说吊顶就很low)

百科 2026-02-05 04:13:56 投稿 阅读:7940次

关于【吊顶的七种做法】:吊顶的七种做法,今天涌涌小编给您分享一下,如果对您有所帮助别忘了关注本站哦。

  • 内容导航:
  • 1、吊顶的七种做法
  • 2、谁说吊顶就很low,吊顶究竟该怎么设计?

1、吊顶的七种做法

  第一、 平面吊顶 在天花板上加上一层,加上一个平板,再在两层之间加上一起灯光,比较适用于面积较小的区域或者是较高的房间。

  第二、 迭级吊顶 具有二层以上的吊顶,比较适用于房间高度比较高,或者是安装有中央空调的房间。

  第三、 异性吊顶 做的吊顶就是不规则的形状,可以是圆形、三角形等,这种吊顶比较可爱,可以用于玩具房或者儿童的房间。

  第四、 直线吊顶 比较规则的直线型,比顶角线稍微宽一点,适用于很多房间,比如客厅和卧室,对于房间的高度要求不严格,大概在2.6米左右就可以了。

  第五、 弧形吊顶 做出来的吊顶是一个弧形或者波浪形,适合于一些餐厅,卧室的装修,装出来的风格比较欧美范。

  第六、 穹形吊顶 做出来的吊顶是拱形或者盖形的,适用于一些房间高度比较高,风格偏欧美范的房间,比如别墅。

  第七、 混搭式吊顶 就是以上任意两种或以上的吊顶混合装修的。

2、谁说吊顶就很low,吊顶究竟该怎么设计?

现在很多人都在说不要做吊顶,在很多人印象中,吊顶就是下图这样的,着实让人不喜欢,还不如不做,简简单单多好。

吊顶的七种做法,吊顶的七种做法图片(谁说吊顶就很low)

吊顶的七种做法,吊顶的七种做法图片(谁说吊顶就很low)

小编有个朋友家就没做吊顶,但一段时间后也后悔了。不仅看着感觉过于简单,由于在装修时没做吊顶,想做的无主灯也没法实现,只能放弃了。

吊顶的七种做法,吊顶的七种做法图片(谁说吊顶就很low)

很多小伙伴都在为要不要做吊顶而纠结,今天我们就来具体聊聊吊顶。

吊顶的七种做法,吊顶的七种做法图片(谁说吊顶就很low)

文末附 吊顶CAD图库

01

要不要做吊顶

吊顶的七种做法,吊顶的七种做法图片(谁说吊顶就很low)

想搞清楚到底要不要做吊顶,就得先知道吊顶的作用。吊顶可以用来遮挡电线管道等,让空间看上去更美观;吊顶还具有一定的保温隔音作用;其次,如果想做无主灯这种嵌入式灯具的设计,吊顶也是要做的。

吊顶的七种做法,吊顶的七种做法图片(谁说吊顶就很low)

吊顶的七种做法,吊顶的七种做法图片(谁说吊顶就很low)

吊顶的七种做法,吊顶的七种做法图片(谁说吊顶就很low)

在空间层高较低的情况下,大面积吊顶则会让空间显得更低,再加上没有新风、中央空调等的需求,确实就没必要去做吊顶。

吊顶的七种做法,吊顶的七种做法图片(谁说吊顶就很low)

吊顶的七种做法,吊顶的七种做法图片(谁说吊顶就很low)

吊顶的七种做法,吊顶的七种做法图片(谁说吊顶就很low)

所以吊顶要不要做,就要根据实际情况和需求出发。但一般卫生间和厨房还是最好都做吊顶,如果不吊顶,水汽直接接触到天花板,长期以往,会出现一些问题。

吊顶的七种做法,吊顶的七种做法图片(谁说吊顶就很low)

吊顶的七种做法,吊顶的七种做法图片(谁说吊顶就很low)

吊顶的七种做法,吊顶的七种做法图片(谁说吊顶就很low)

图源:萧静不是萧敬腾 / 小红书

02

吊顶类型

吊顶的七种做法,吊顶的七种做法图片(谁说吊顶就很low)

想要吊顶,你就得先了解吊顶的几个类型。

平面吊顶表面没有造型和层次,简洁、利落大方,既能遮住管线,又能满足内嵌灯具的需求,但一定要提前规划好灯具尺寸及开孔位置哟。

吊顶的七种做法,吊顶的七种做法图片(谁说吊顶就很low)

吊顶的七种做法,吊顶的七种做法图片(谁说吊顶就很low)

吊顶的七种做法,吊顶的七种做法图片(谁说吊顶就很low)

吊顶的七种做法,吊顶的七种做法图片(谁说吊顶就很low)

吊顶的七种做法,吊顶的七种做法图片(谁说吊顶就很low)

局部吊顶就是在需要的地方进行吊顶,比如有房梁的地方等。如果有中央空调和新风系统,大多会做局部吊顶来遮挡。既能让空间更美观,又不会过分影响到层高。

吊顶的七种做法,吊顶的七种做法图片(谁说吊顶就很low)

吊顶的七种做法,吊顶的七种做法图片(谁说吊顶就很low)

吊顶的七种做法,吊顶的七种做法图片(谁说吊顶就很low)

吊顶的七种做法,吊顶的七种做法图片(谁说吊顶就很low)

吊顶的七种做法,吊顶的七种做法图片(谁说吊顶就很low)

跌级吊顶是指不在同一平面的降标高吊顶,经常会在一个空间顶面围绕四周做一圈,和石膏线一起使用是常见做法,还可以加上灯带。

吊顶的七种做法,吊顶的七种做法图片(谁说吊顶就很low)

吊顶的七种做法,吊顶的七种做法图片(谁说吊顶就很low)

吊顶的七种做法,吊顶的七种做法图片(谁说吊顶就很low)

吊顶的七种做法,吊顶的七种做法图片(谁说吊顶就很low)

吊顶的七种做法,吊顶的七种做法图片(谁说吊顶就很low)

还有这样的“悬浮吊顶”,不是周围一圈跌级,而是将中心做一整块跌级吊顶(有些类似平面吊顶),再加上灯带,做出一种“悬浮”效果。

吊顶的七种做法,吊顶的七种做法图片(谁说吊顶就很low)

吊顶的七种做法,吊顶的七种做法图片(谁说吊顶就很low)

吊顶的七种做法,吊顶的七种做法图片(谁说吊顶就很low)

如果不想吊顶,又不想让空间过于单调,那你可以选择用石膏线甚至多层石膏线来装饰,增加美观度和精致感。当然石膏线也可以和其他吊顶结合使用,让空间更加丰富。

吊顶的七种做法,吊顶的七种做法图片(谁说吊顶就很low)

吊顶的七种做法,吊顶的七种做法图片(谁说吊顶就很low)

还有最近很受欢迎的双眼皮吊顶,围绕天花板做一圈双层的石膏板,赋予空间层次感的同时,价格也不高。

吊顶的七种做法,吊顶的七种做法图片(谁说吊顶就很low)

吊顶的七种做法,吊顶的七种做法图片(谁说吊顶就很low)

吊顶的七种做法,吊顶的七种做法图片(谁说吊顶就很low)

还有这种直接暴露管道的吊顶,适合一些特殊的空间和风格。

吊顶的七种做法,吊顶的七种做法图片(谁说吊顶就很low)

▲ 没有直接吊平顶,而是部分跌级吊顶,中间管道裸露

03

复杂吊顶

吊顶的七种做法,吊顶的七种做法图片(谁说吊顶就很low)

图源:王小倪ViVi / 小红书

除了以上那些简单的吊顶,还有一些异形和复杂的吊顶,适用于想要有特色或一些特定风格的空间。

吊顶的七种做法,吊顶的七种做法图片(谁说吊顶就很low)

图源:张肆壹 / 小红书

吊顶的七种做法,吊顶的七种做法图片(谁说吊顶就很low)

图源:武汉微雕空间设计 / 小红书

吊顶的七种做法,吊顶的七种做法图片(谁说吊顶就很low)

吊顶的七种做法,吊顶的七种做法图片(谁说吊顶就很low)

图源:装修小达人 / 小红书

但对于设计和施工来说难度都会更大,特别是一些需要做造型的吊顶,施工图尺寸就尤其要准确。

吊顶的七种做法,吊顶的七种做法图片(谁说吊顶就很low)

图源:芒梦莓 / 小红书

吊顶的七种做法,吊顶的七种做法图片(谁说吊顶就很low)

吊顶的七种做法,吊顶的七种做法图片(谁说吊顶就很low)

图源:斯蒂芬森的天 / 小红书

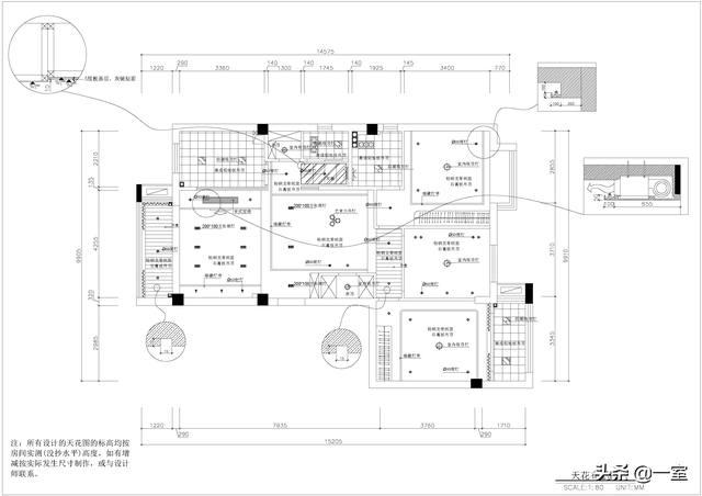
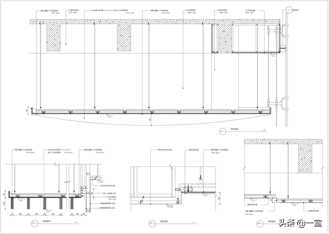
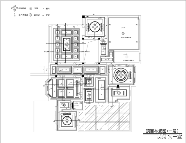
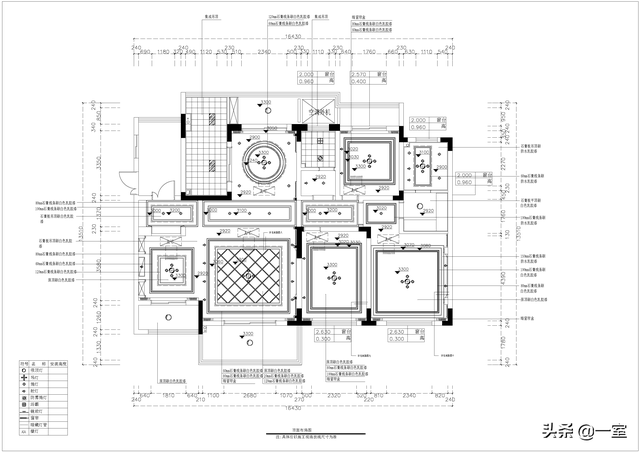
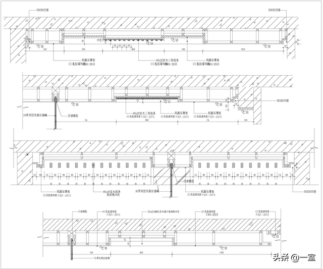
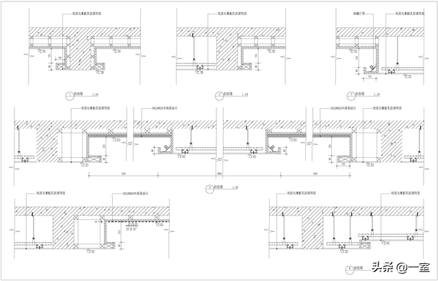
但画这样复杂的吊顶图纸并不是那么简单,所以这里小编为你准备了吊顶CAD图库,不仅包含普通吊顶案例、图块等,还有各类异形以及复杂的吊顶图块,让你画图更轻松,快点抱走用起来吧。

吊顶CAD图库

含大样图、剖面图、图块图例、普通及异形吊顶等

资料总预览

【01】CAD吊顶图

【02】CAD吊顶图+效果图

展示一:CAD吊顶图

吊顶的七种做法,吊顶的七种做法图片(谁说吊顶就很low)

吊顶的七种做法,吊顶的七种做法图片(谁说吊顶就很low)

吊顶的七种做法,吊顶的七种做法图片(谁说吊顶就很low)

吊顶的七种做法,吊顶的七种做法图片(谁说吊顶就很low)

吊顶的七种做法,吊顶的七种做法图片(谁说吊顶就很low)

吊顶的七种做法,吊顶的七种做法图片(谁说吊顶就很low)

吊顶的七种做法,吊顶的七种做法图片(谁说吊顶就很low)

吊顶的七种做法,吊顶的七种做法图片(谁说吊顶就很low)

吊顶的七种做法,吊顶的七种做法图片(谁说吊顶就很low)

吊顶的七种做法,吊顶的七种做法图片(谁说吊顶就很low)

展示二:CAD吊顶图+效果图

吊顶的七种做法,吊顶的七种做法图片(谁说吊顶就很low)

吊顶的七种做法,吊顶的七种做法图片(谁说吊顶就很low)

吊顶的七种做法,吊顶的七种做法图片(谁说吊顶就很low)

吊顶的七种做法,吊顶的七种做法图片(谁说吊顶就很low)

吊顶的七种做法,吊顶的七种做法图片(谁说吊顶就很low)

吊顶的七种做法,吊顶的七种做法图片(谁说吊顶就很low)

▲以上仅为部分展示

本文关键词:装修吊顶的做法,吊顶的基本步骤和做法,吊顶的几种方法,吊顶怎样做,吊顶的构造做法。这就是关于《吊顶的七种做法,吊顶的七种做法图片(谁说吊顶就很low)》的所有内容,希望对您能有所帮助!

本文链接:https://bk.89qw.com/a-580626

最近发表
网站分类