手机版

百科生活 投稿

旧房简单翻新装修,自己动手简单旧房翻新简单(让83㎡居家清新治愈)

百科 2025-12-27 20:11:06 投稿 阅读:5664次

关于【旧房简单翻新装修】,自己动手简单旧房翻新简单,今天小编给您分享一下,如果对您有所帮助别忘了关注本站哦。

  • 内容导航:
  • 1、夫妻改造37年老屋,当北欧遇上简约,让83㎡居家清新治愈
  • 2、旧房简单翻新装修:自己动手简单旧房翻新简单

1、夫妻改造37年老屋,当北欧遇上简约,让83㎡居家清新治愈

有对比才有差距,老屋改造相比新房装修,获得的成就感要强烈很多。比如这套83㎡的两居室,有着37年的房龄,屋内留下了岁月的痕迹,屋主夫妻决定重新改造,以北欧+简约的风格组合,重塑整个空间,抛开繁杂设计,舍弃盲从追随,打造清新治愈的居家空间。

旧房简单翻新装修,自己动手简单旧房翻新简单(让83㎡居家清新治愈)

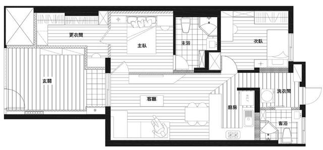
装修平面图

狭长的户型格局,装修为了改善狭长的空间感,特意以1:1 配比划分客厅和餐厨,借此勾勒方正空间感。

两房两厅两卫的设计,满足了日常生活需求。居家动线的规划也很到位,让生活更加便捷。

旧房简单翻新装修,自己动手简单旧房翻新简单(让83㎡居家清新治愈)

改造前

37年的房龄,加上建筑结构缺失,导致屋内漏水范围遍及主卧至卫浴一侧整面墙体,除了基础管路淘汰换新外,加强防水也是必不可少的,前期需要耗费非常多的时间。

旧房简单翻新装修,自己动手简单旧房翻新简单(让83㎡居家清新治愈)

旧房简单翻新装修,自己动手简单旧房翻新简单(让83㎡居家清新治愈)

一系列的拆改,加上重新的布局设计,老屋也有了全新的空间面貌,看看装修改造成果。

玄关设计

根据空间结构,采用局部抬高的方式设计出玄关。墙面利用水泥质感的特殊漆取代墙砖,右侧墙面以松木板打造木质墙景,一冷一暖框定户外玄关写意氛围。

跳色的六角地砖,以几何色块划出落尘区,搭配上木色换鞋凳,让冷冽的空间多了几分活泼与温度。

旧房简单翻新装修,自己动手简单旧房翻新简单(让83㎡居家清新治愈)

旧房简单翻新装修,自己动手简单旧房翻新简单(让83㎡居家清新治愈)

客厅设计

穿过玄关步入客厅,温润的色泽带出空间暖意。简约硬装设计,搭配北欧家具,恰如其分地平衡,构建出简而不单的居家场景。

旧房简单翻新装修,自己动手简单旧房翻新简单(让83㎡居家清新治愈)

电视墙利用色块做几何造型,悬挂电视柜,减轻空间体量,视觉轻易也便于日常清洁,斜边设计呼应了电视墙斜角几何线条。

主卧门采用隐形门设计,保证了电视墙的独立性和完整性,从而奠定客厅利落大方的主视觉。

旧房简单翻新装修,自己动手简单旧房翻新简单(让83㎡居家清新治愈)

为了改善狭长空间感,客厅和餐厨采用1:1的空间配比。开放式布局,空间通透敞亮。白色结构横梁的落下,做视觉上的隔断。

旧房简单翻新装修,自己动手简单旧房翻新简单(让83㎡居家清新治愈)

餐厨设计

餐厨和客厅的地面,随着白色横梁的落下,也有了变化。餐厨采用木纹砖,客厅采用木地板,同样的温润色泽,为空间增添舒适感。

考虑到只有屋主夫妻居住,取消了餐桌布置,利用中岛台设计取代,满足日常用餐,又延伸了厨房操作空间。

旧房简单翻新装修,自己动手简单旧房翻新简单(让83㎡居家清新治愈)

ㄇ型设计的厨房,干净利落且收纳充足。跳脱单一色彩,雾灰色橱柜在冷暖配比间,淡化了厚重感。

中岛台做了双面柜设计,面向客厅做酒柜,面向厨房做电器柜,各种厨房小家电可以收纳在岛台下方,保持台面整洁有序。

旧房简单翻新装修,自己动手简单旧房翻新简单(让83㎡居家清新治愈)

主卧设计

合理的设计,将主卧分成睡眠区、卫浴区和衣帽间,淡化长型空间感,又满足了生活需求。背景墙采用分色设计,软硬材质结合,让静谧舒适弥漫睡眠区域。床头屋主夫妻需求,摊开床头柜和书桌。

旧房简单翻新装修,自己动手简单旧房翻新简单(让83㎡居家清新治愈)

旧房简单翻新装修,自己动手简单旧房翻新简单(让83㎡居家清新治愈)

衣帽间设计

玻璃门附带黑色斜纹铁条,呼应电视墙斜角几何线条,巧妙串接公私领域。衣帽间内,沿墙面设计L型开放柜,搭配吊挂、抽屉等不同形式的收纳,满足不同类型衣物收纳需求。

旧房简单翻新装修,自己动手简单旧房翻新简单(让83㎡居家清新治愈)

合理利用空间,为女屋主定制梳妆台,一抹莫兰迪蓝,点亮性格主张,活跃空间。

旧房简单翻新装修,自己动手简单旧房翻新简单(让83㎡居家清新治愈)

主卫设计

主卫设计干净利落,为了宽松和实用的空间体验,浴室柜采用定制设计,满足使用基础也让空间不拥挤。蓝色几何地砖,深浅不一的线条感,搭配板岩质感的墙砖,营造简朴氛围。

旧房简单翻新装修,自己动手简单旧房翻新简单(让83㎡居家清新治愈)

旧房简单翻新装修,自己动手简单旧房翻新简单(让83㎡居家清新治愈)

客卫设计

客卫有别于主卫的灰蓝色调,采用大理石纹墙砖、花砖和水泥质感六角地砖,阐述敞亮空间质感。淋浴区内加入壁龛设计,结实耐用也让墙面更规整。

旧房简单翻新装修,自己动手简单旧房翻新简单(让83㎡居家清新治愈)

【写在最后】

老房改造也是一项挑战,需要付出的时间和精力不亚于新房装修。这套83㎡老屋改造,还是很成功的,全然卸下37年老屋的岁月痕迹,打造清新治愈的居家环境。

2、旧房简单翻新装修:自己动手简单旧房翻新简单

自己动手简单旧房翻新简单

自己动手简单的旧房翻新步骤是怎样的?

1、决定风格

在自己动手简单旧房翻新之前一定要想好房子的风格,如果你是一个极简主义者,用统一色调。漆的颜色可以选择白色、米色、蓝色或浅灰色,这四种颜色可以满足不同性格的人。

2、重新设计格局

风格确定后,要合理布局。布局集中在厨房、卧室、起居室和浴室。厨房和卫生间通风良好是要点,卧室的重点在床上,客厅的重点在书桌和椅子上。

3、旧物删选

老房子里会有很多旧东西,不能直接使用扔掉,有些可以用,符合现在房子的风格留下来。

4、替换一些装饰品

既然是自己动手简单旧房翻新,目的在于节省金钱和时间,那么可以让房间风格大变的就是灯饰和窗帘。如果新风格更现代,选择有棱角的灯,如果复古,选择经典的。

旧房墙面翻新流程是怎样的?

1、先进行旧墙的'铲除,再打磨清理干净墙面。

2、接下来是做防水刷界面剂。

3、界面剂干透以后,墙面必须要挂网,避免以后墙面出现开裂。

4、前期工作完成以后就可以开始刮腻子,一般是刮2-3遍,记得要打磨平整。

5、刷完底漆,再刷面漆。

墙面翻新注意事项有哪些?

1、做基层处理的时候一定要涂刷界面剂和挂网子。

2、刮腻子的时候每一遍都不能太厚,而且一定要打磨平整

3、乳胶漆没干之前不能触摸,以免刮花。

自己动手简单旧房翻新简单

自己动手简单的旧房翻新步骤是怎样的?

1、决定风格

在自己动手简单旧房翻新之前一定要想好房子的风格,如果你是一个极简主义者,用统一色调。漆的颜色可以选择白色、米色、蓝色或浅灰色,这四种颜色可以满足不同性格的人。

2、重新设计格局

风格确定后,要合理布局。布局集中在厨房、卧室、起居室和浴室。厨房和卫生间通风良好是要点,卧室的重点在床上,客厅的重点在书桌和椅子上。

3、旧物删选

老房子里会有很多旧东西,不能直接使用扔掉,有些可以用,符合现在房子的风格留下来。

4、替换一些装饰品

既然是自己动手简单旧房翻新,目的在于节省金钱和时间,那么可以让房间风格大变的就是灯饰和窗帘。如果新风格更现代,选择有棱角的灯,如果复古,选择经典的。

旧房墙面翻新流程是怎样的?

1、先进行旧墙的'铲除,再打磨清理干净墙面。

2、接下来是做防水刷界面剂。

3、界面剂干透以后,墙面必须要挂网,避免以后墙面出现开裂。

4、前期工作完成以后就可以开始刮腻子,一般是刮2-3遍,记得要打磨平整。

5、刷完底漆,再刷面漆。

墙面翻新注意事项有哪些?

1、做基层处理的时候一定要涂刷界面剂和挂网子。

2、刮腻子的时候每一遍都不能太厚,而且一定要打磨平整

3、乳胶漆没干之前不能触摸,以免刮花。

自己动手简单旧房翻新简单

首先,空间布局很重要!老房子一般公摊面积小,相对使用面积比新房大。但是老房还有厨卫空间小,功能分区不明确的问题,包括没有餐厅位置,客厅采光不足,面积小;因此,你需要重新考虑户型布局、

第一、哪里可以去掉?打破房子原有的布局,不要让原有的设计布局限制了你的思维;

第二、重新布局。想象一下把它打成空白,根据自己的生活习惯,使用场景,重新规划设计;

第三、对比一下,看功能分区和空间布局是否比之前的好,最后综合一下。

我们来对比一下上图,看到这些完整的现实生活照片,能想到老房子吗?

拆除注意事项、

1、首先是墙面处理。大多数老房子都需要铲。是铲到水泥层还是红砖层,要看房子的年代和墙的具体情况。一般来说如果墙面是砂灰,原墙面不平整,用石膏粉找平,需要铲。

由于时间长,墙面会起皮甚至开裂。可以选择铲除重新粉刷,然后用砂纸打磨,直接上乳胶漆。

当墙面问题不严重时,可以选择局部翻新墙面,先打磨表面,然后用腻子填充,最后再对墙面进行粉刷。

如果只是局部很小的一点碰伤或者返碱时,可以购买下面的墙面修补膏,价格不贵,领券才几块钱,自己动手处理一下,有孩子的还可以增加孩子的动手能力,增加亲子互动。

2、能不能直接贴壁纸?

有网友觉得我不处理墙面,直接贴壁纸就行了。这个需要看具体情况,墙面只是脏了需要遮挡一下可以这么做。

如果是墙面开裂、潮湿、发霉、脱皮、返碱、用手摸墙容易掉灰不要贴。这种墙必须好好修理,做好防潮处理,墙面找平了才能粘。

3、砸墙砖、地砖时,把下水口堵上,避免杂物堵塞下水道;

拆除墙体和地面时,必须注意水管和电线的分布,有些不需要拆除的避免砸坏。

老房子墙面裂缝怎么办?

很多客户担心翻新之后开裂,这个原因很多,比如房子沉降,天气变化等。我们在处理时可以用网格布预防,尤其是水电开槽处,新旧墙体交接处。

厨房卫生间改造注意事项

1、检查原有下水管的损坏程度,确定更换方案(是不是需要更换所有主管道)

2、检查基础防水层,重新做防水。

与新房相比,旧房更容易出现防水问题,更为严重。所以闭水试验一定不能掉以轻心,卫生间地面放水,标记一下,经过24小时的观察,如果没有明显的下降,没有渗漏部位,防水工程就合格了。

3、检查原顶部排水管老化情况,确定处理方案(维修/加固/更换)

老房子里原有的水路线路会长期腐蚀老化。如果原来的管道是已经淘汰的镀锌管,在改造过程中必须完全更换。如果原来的电线都是铝线,就必须换成铜线。注意、由于空调功率比较大,安装时必须单独运行。拆卸水路时,务必关闭总阀门。

线路老化后,无法承受生活用电用水的需求,几乎老房翻新都会重新做水电施工,千万不要因为节省预算,省去水电部分的改造。

本文关键词:自己动手简单旧房墙面翻新,旧房翻新最简单方法自己装修,最简单的旧房翻新,自己动手简单旧房翻新环保,旧房翻新教程。这就是关于《旧房简单翻新装修,自己动手简单旧房翻新简单(让83㎡居家清新治愈)》的所有内容,希望对您能有所帮助!

本文链接:https://bk.89qw.com/a-623666

最近发表
网站分类