手机版

百科生活 投稿

塔吊怎么安装上去的,塔吊是怎么安装的(塔机的安装及拆除)

百科 2026-02-09 12:34:01 投稿 阅读:1208次

关于【塔吊怎么安装上去的】,塔吊是怎么安装的,今天小编给您分享一下,如果对您有所帮助别忘了关注本站哦。

  • 内容导航:
  • 1、塔吊怎么安装上去的:塔吊是怎么安装的
  • 2、塔机的安装及拆除

1、塔吊怎么安装上去的:塔吊是怎么安装的

操作方法

现在工地上使用的塔吊多为自升式塔吊机。安装的第一步安装一个基础底物,将后续的标准节固定在基础之上。

之后是安装标准节,标准节的在塔吊的安装上至关重要,将标准节链接固定在基础上。

然后是安装顶升套架,顶升套架安装在标准节外面,有液压装置,在加高的时候起到关键作用。

用吊钩将标准节一节一节的安装上去。

然后是安装回转和回转塔身,回转用于塔吊工作时旋转方向。

接着安装控制室和已经接好的平衡臂,安装上平衡重。

要加高的时候,解开标准节的固定,利用顶升套架的液压千斤顶将标准节之间升高一节,然后用吊钩将一节标准节从空出来的侧边推进安装。塔吊就是这样一节一节的升高的!

2、塔机的安装及拆除

第一章 立塔

1.1 引言

安装前应熟读本章说明,以便正确迅速架设塔机。

1.2 立塔的注意事项

1.2.1 塔机安装工作时,塔机最高处风速不大于 14m/s;

1.2.2 必须遵循立塔程序;

1.2.3 达到可顶升加节的位置前,需根据(表 1-1)选用一台合适的汽车吊。

塔吊怎么安装上去的,塔吊是怎么安装的(塔机的安装及拆除)

1.2.4 塔机各部件所有可拆的销轴,塔身、回转支承的连接螺栓、螺母均是专用特制零

件,用户不得随意代换;

1.2.5 必须安装并使用保护和安全措施,如扶梯、平台、护栏等;

1.2.6 必须根据起重臂臂长,正确确定平衡重块数量(见有关章节),在安装起重臂之

前,必须先在平衡臂上安装一块重量 2.25t 的平衡重,注意严禁超过此数量;

1.2.7 装好起重臂后,平衡臂上未装够规定的平衡重前,严禁起重臂吊载;

1.2.8 塔机在施工现场的安装位置,应确保其最大旋转部分与周围建筑物之间的距离

不小于 1.5m,塔机任何部位与架空输电线的安全距离应符合表 1-2 的规定;

1.2.9 准备辅助吊装设备、枕木、索具、绳扣等常用工具;

1.2.10 塔机安装场地的参考尺寸(见图 1.2-1);

塔吊怎么安装上去的,塔吊是怎么安装的(塔机的安装及拆除)

1.2.11 顶升前,应将小车开到规定的顶升平衡位置,起重臂转到引进横梁的正前方,然

后用回转制动器将塔机的回转锁紧;

1.2.12 顶升过程中,严禁旋转起重臂或开动小车以及使吊钩起升或放下。

1.3 塔机的总体布置

1.3.1 独立式主要组件装配关系,支腿固定独立式塔机起升高度40.5m, 底架固定独立式塔机起升高度是 40.8m,可采用二倍率或四倍率钢丝绳起吊重物,塔身标准节为方钢管结构,塔身(或底架)下部与基础相连。在下支座下端是爬升套架,环绕在塔身四周,顶升机构可顶起塔身上部结构和爬升套架,引进标准节,升高塔机的高度。

1.3.2附着式

TC6010-6 独立式塔机的最大起升高度为 40.5m。 若起升高度要超过 40.5m,必须用附着装置对塔身进行附着加固。附着式塔机的最大起升高度为 220m. 工作高度 220m时,需要若干层附着装置。附着时,要求塔身中心距建筑物 3.5m,如实际工程有变化,请与本公司联系设计非标附着装置。 1.3.2.1 和 1.3.2.2 考虑到施工要求与塔身、附着架的受力,规定了附着架与基础平面距离、附着架之间距离以及附着架以上悬高的极限值。1.3.2.3( 图 1.3-4)既能满足一般的施工要求,又能较经济的配置附着架,降低塔机的使用成本。

1.3.2.1第一道附着(见图1.3-2)

塔吊怎么安装上去的,塔吊是怎么安装的(塔机的安装及拆除)

(1) 附着架以下的塔身高度 h1(支腿固定式含基节高度、底架固定式含基础节Ⅰ基础节Ⅱ高度)18(m) ≤ h1 ≤31(m)即第一道附着架以下的塔身节数 n1 为:6.4 ≤n1≤ 11.1

(2) 附着架以上塔身悬高 h0:h0≤36.55(m)即附着架以上塔身节数:n0≤12.5 图 1.3-2

1.3.2.2第二道或第二道以上附着(1.3-3)

塔吊怎么安装上去的,塔吊是怎么安装的(塔机的安装及拆除)

(1) 两道附着架之间的距离 h2:15(m) ≤ h2 ≤25.2.(m)即两道附着架之间的塔身节数 n2 为:5.4≤n2≤9.3

(2) 附着架以上塔身节的高度 h0:工作高度 h≤100m 时,与 1.3.2.1 中 h0 的一致.工作高度 h>100m 时,至少少加一节,即附着架以上塔身节数:n0≤11.5

第一次附着后,附着架以上塔身悬出段≤36.55m,塔机最大工作高度≤68.5m,使用 24 个塔身标准节,其中包括 1 个固定基节 EQ 和 23 个标准节 EQ7。

第二次附着后, 附着架以上塔身悬出段≤36.55m,塔机最大工作高度≤93.7m,使用33个塔身标准节,其中包括 1 个固定基节 EQ 和 32 个标准节 EQ7。

第三次附着后, 附着架以上塔身悬出段≤33.75m,塔机最大工作高度≤116.1m,使用41个塔身标准节,其中包括 1 个固定基节 EQ 和 40 个标准节 EQ7。

第四次附着后, 附着架以上塔身悬出段≤33.75m,塔机最大工作高度≤141.3m,使用 50个塔身标准节,其中包括 1 个固定基节 EQ 和 49 个标准节 EQ7。

第五次附着后, 附着架以上塔身悬出段≤30.95m,塔机最大工作高度≤163.7m,使用 58个塔身标准节,其中包括 1 个固定基节 EQ 和 57 个标准节 EQ7。

第六次附着后, 附着架以上塔身悬出段≤28.15m,塔机最大工作高度≤183.3m,使用 65个塔身标准节,其中包括 1 个固定基节 EQ 和 64 标准节 EQ7。

第七次附着后, 附着架以上塔身悬出段≤28.15m,塔机最大工作高度≤202.9m,使用 72个塔身标准节,其中包括 1 个固定基节 EQ 和 71 标准节 EQ7。

第八次附着后, 附着架以上塔身悬出段≤25.35m,塔机最大工作高度≤220m,使用78个塔身标准节,其中包括 1 个固定基节 EQ 和 77 标准节 EQ7。

1.3.2.4底架固定附着式附着架数量最少的附着方式(1.3-4)

第一次附着后,附着架以上塔身悬出段≤36.55m,塔机最大工作高度≤68. 5m,使用 22 个塔身标准节。

第二次附着后, 附着架以上塔身悬出段≤36.55m,塔机最大工作高度≤93.7m,使用 31个塔身标准节。

第三次附着后, 附着架以上塔身悬出段≤33.75m,塔机最大工作高度≤116.1m,使用 39个塔身标准节。

第四次附着后, 附着架以上塔身悬出段≤33.75m,塔机最大工作高度≤141.3m,使用 48个塔身标准节。

第五次附着后, 附着架以上塔身悬出段≤30.95m,塔机最大工作高度≤163.7m,使用 56个塔身标准节。

第六次附着后, 附着架以上塔身悬出段≤28.15m,塔机最大工作高度≤183.3m,使用 63个塔身标准节。

第七次附着后, 附着架以上塔身悬出段≤28.15m,塔机最大工作高度≤202.9m,使用 70个塔身标准节。

第八次附着后, 附着架以上塔身悬出段≤25.35m,塔机最大工作高度≤220m,使用76个塔身标准节。

塔吊怎么安装上去的,塔吊是怎么安装的(塔机的安装及拆除)

1.4 固定基础及平衡重

1.4.1 支腿固定式基础载荷(表 1-3、图 1.4-1)

塔吊怎么安装上去的,塔吊是怎么安装的(塔机的安装及拆除)

塔吊怎么安装上去的,塔吊是怎么安装的(塔机的安装及拆除)

1.4.2 预埋支腿固定基础(图 1.4-2)

采用整体钢筋混凝土基础,对基础的基本要求如下:

1.4.2.1 混凝土强度等级C35.基础土质要求坚固牢实,且承压力不小于表1-4的规定;

塔吊怎么安装上去的,塔吊是怎么安装的(塔机的安装及拆除)

1.4.2.2 混凝土基础的深度应大于1000mm;

1.4.2.3 固定支腿上表面应校水平,平面度误差为1/500。

塔吊怎么安装上去的,塔吊是怎么安装的(塔机的安装及拆除)

1.4.3 固定支腿的安装

固定支腿的安装十分重要,请参考以下程序施工:

1.4.3.1 将 4 只固定支腿与预埋支腿固定基节 EQ 用 12 件 10.9 级高强螺栓装配在一

起;

1.4.3.2 为了便于施工,当钢筋捆扎到一定程度时,将装配好的固定支腿和预埋支腿固

定基节 EQ 整体吊入钢筋网内;

1.4.3.3 固定支腿周围的钢筋数量不得减少和切断;

1.4.3.4 主筋通过支腿有困难时,允许主筋避让;

1.4.3.5 吊起装配好的固定支腿和预埋支腿固定基节 EQ 整体,浇注砼。在预埋支腿固定基节 EQ 的两个方向中心线上挂铅垂线,保证预埋后预埋支腿固定基节 EQ5 中心线与水平面的垂直度≤1.5/1000;

1.4.3.6 固定支腿周围混凝土充填率必须达到 95%以上;

1.4.3.7 安装示意图见图 1.4-3。

注意:

1 固定支腿受力最大,应由生产厂配套,否则一切责任自负;

2 固定支腿只能使用一次,不许从基础中挖出来重新使用。

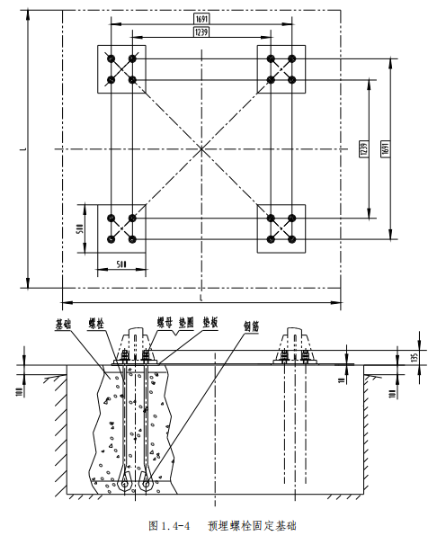
1.4.4 预埋螺栓固定基础(图 1.4-4)

采用整体钢筋混凝土基础,对基础的基本要求如下:

塔吊怎么安装上去的,塔吊是怎么安装的(塔机的安装及拆除)

1 基础开挖至老土(基础承载力必须达到表 1-4 中要求)找平,回填 100mm 左右卵石夯实,周边配模或砌砖后再行编筋浇注混凝土,基础周围地面低于混凝土表面 100mm 以上以利排水,周边配模,拆模以后回填卵石。

2 垫板下砼填充率>95%,四垫板上平面保证水平,垫板允许嵌入砼内 5~6mm。

3 四组地脚螺栓(16 根)相对位置必须准确,组装后必须保证地脚螺栓孔的对角线误差不大于2mm,确保固定基节的安装。

4 允许在固定基节与垫板之间加垫片,垫片面积必须大于垫板面积的 90%,且每个支腿下面最多只能加两块垫片,确保固定基节的安装后的水平度小于 1/750,其中心线与水平面垂直度误差为1.5/1000 。

5 钢筋需与基础底筋相连。

基础的承载力、尺寸 L 及钢筋布置参见表 1-3、表 1-4 的要求。

注意:

拧紧地脚螺栓时,不许用大锤敲打扳手。

地脚螺栓只能使用一次,不许挖出来重新使用。因地脚螺栓为重要受力件,我们建议用户到塔机制造商处购买。用户制作地脚螺栓时,一定要符合图纸要求,由用户自制的地脚螺栓所引发的一切事故,我公司概不负责。

1.4.5 底架固定式的基础

1.4.5.1 地基基础

塔吊怎么安装上去的,塔吊是怎么安装的(塔机的安装及拆除)

底架固定式塔机的地基基础是保证塔机安全使用的必要条件,该基础采用四块整体钢筋混凝土基础,对基础的基本要求如下:

1) 混凝土强度等级 c35。基础下土质应坚固牢实,承压力不小于图 1.4-5 规定,混凝土养护期大于 15 天。

2) 混凝土基础的深度应大于 800mm。

3) 凝土基础与底梁接触表面应校水平,四块垫板平面度误差为 1/750。

4) 四个块基础中心连线的中间挖 1300mm×1300mm 深 800mm 的坑,便于底梁安装。

5) 四块垫板相对位置必须准确,以保证底架的地脚螺栓安装。

6) 在底架基础节两个方向的中心线上挂铅垂线,保证安装后底架基础节中心线与水平面的垂直度≤1.5/1000。

7) 四块垫板周围混凝土充填率必须达 95%以上。

1.4.6 平衡重

平衡重共有三种规格,均采用钢筋混凝土浇注成形,具体外形尺寸参见图

1.4-6a 及图 1.4-6b。对平衡重的基本要求如下

塔吊怎么安装上去的,塔吊是怎么安装的(塔机的安装及拆除)

塔吊怎么安装上去的,塔吊是怎么安装的(塔机的安装及拆除)

1.4.6.1 用混凝土浇注成形后称重,重量允差 2%,砼标号不低于 C18;

1.4.6.2 平衡重的配置随起重臂长度的改变而变化。见表 1-5 中的值;。

1.4.6.3 允许通过改变平衡重长度尺寸 3090(或 2630)来改变其重量,满足 2%的重量精

度要求。

塔吊怎么安装上去的,塔吊是怎么安装的(塔机的安装及拆除)

1.5 塔机组装

塔机组装必须在固定基础的混凝土强度达到设计值的 70%以上后才能进行塔机组装顺序按图 1.5-1 进行:

塔吊怎么安装上去的,塔吊是怎么安装的(塔机的安装及拆除)

1.5.1 安装塔身节

1.5.1.1 结构简述

塔机在起升高度为 40.5 米的独立状态下共有 14 节塔身节:包括一节固定基节 EQ,13 节标准节 EQ7,塔身节内有供人上下的爬梯,并有供人休息的平台。固定基节 EQ 又分预埋支腿固定基节 EQ 和预埋螺栓固定基节 EQ,预埋支腿固定基节 EQ 主弦杆上下端各有 3 个连接套(如图 1.5.1-1);预埋螺栓固定基节 EQ 主弦杆上端有 3 个连接套,下端为法兰盘(如图 1.5.1-2)。标准节 EQ 主弦杆上下端各有 3 个连接套(如图 1.5.1-3)

塔吊怎么安装上去的,塔吊是怎么安装的(塔机的安装及拆除)

塔吊怎么安装上去的,塔吊是怎么安装的(塔机的安装及拆除)

1.5.1.2 吊装二个塔身节

塔吊怎么安装上去的,塔吊是怎么安装的(塔机的安装及拆除)

1) 如图 1.5.1-4 所示,吊起一节标准节 EQ7。注意严禁吊在水平斜腹杆上;

2) 将 1 节标准节 EQ7 吊装到埋好在固定基础上的固定基节 EQ 上, 用 12 件 10.9级高强度螺栓连接牢;

3) 再吊装一节标准节 EQ7,用 12 件 10.9 级高强度螺栓连接牢;此时基础上已有一节固定基节 EQ、两节标准节 EQ7。

4) 所有高强度螺栓的预紧扭矩应达到 1400N·m,每根高强度螺栓均应装配二个垫圈和二个螺母,并拧紧防松。双螺母中防松螺母预紧扭矩应稍大于或等于1400N·m;

5) 用经纬仪或吊线法检查垂直度,主弦杆四侧面垂直度误差应不大于 1.5/1000.

1.5.2 吊装爬升架

1.5.2.1 结构简述(见图 1.5.2-1)

爬升架主要由套架结构、平台、爬梯及液压顶升系统、塔身节引进装置等组成,塔机的顶升安装主要靠此部件完成。顶升油缸安装在爬升架后侧的横梁上(即预装平衡臂的一侧),液压泵站放在液压缸一侧的平台上,爬升架内侧有 16 个滚轮,顶升时滚轮支于塔身主弦杆外侧,起导向作用.爬升架中部及上部位置均设有平台。顶升时,工作人员站在平台上,操纵液压系统,引入标准节,固定塔身螺栓,实现顶升.

塔吊怎么安装上去的,塔吊是怎么安装的(塔机的安装及拆除)

1.5.2.2 吊装

1) 将爬升架组装完毕后(如图 1.5.2-2 所示),将吊具挂在爬升架上,拉紧钢丝绳吊起。切记

安装顶升油缸的位置必须与塔身踏步同侧。

2) 将爬升架缓慢套装在二个塔身节外侧。

3) 将爬升架上的活动爬爪放在塔身节的第二节(从下往上数)上部的踏步上。

4) 安装顶升油缸,将液压泵站吊装到平台一角,接油管,检查液压系统的运转情况

塔吊怎么安装上去的,塔吊是怎么安装的(塔机的安装及拆除)

1.5.3 安装回转总成

1.5.3.1 结构简述

回转总成包括下支座、回转支承、上支座、回转机构共四部分.见图 1.5.3-1.下支座下部分别与塔身节和爬升架相连,上部与回转支承通过高强度螺栓连接。

上支座一侧有安装回转机构的法兰盘及平台,另一侧工作平台有司机室连接的支耳,前方设有安装回转限位器的支座。用φ55 的销轴将上支座与塔帽连成一个整体。

塔吊怎么安装上去的,塔吊是怎么安装的(塔机的安装及拆除)

1.5.3.2 吊装回转总成

⑴ 检查回转支承上 8.8 级M24 的高强螺栓的预紧力矩是否达 640N·m,且防松螺母的预紧力矩稍大于或等于 640N·m。

⑵如图 1.5.3-2 所示,将吊具挂在上支座 φ55 的销轴上,将回转总成吊起。

塔吊怎么安装上去的,塔吊是怎么安装的(塔机的安装及拆除)

⑶下支座的八个连接套对准标准节 EQ7 四根主弦杆的八个连接套,缓慢落下,将回转总成放在塔身顶部。下支座与爬升架连接时,应对好四角的标记。

⑷用 8 件 10.9 级的 M30 高强度螺栓将下支座与标准节EQ7 连接牢固(每个螺栓用双螺母拧紧防松), 螺栓的预紧力矩应达到 1400N·m,双螺母中防松螺母的预紧力矩稍大于或等于 1400N·m。

⑸操作顶升系统,将顶升横梁伸长,使其销轴落到第 2节标准节 EQ7 (从上往下数)的下踏步圆弧槽内,将顶升横梁防脱装置的销轴插入踏步的圆孔内(使用方法见附录一),再将爬升架顶升至与下支座连接耳板接触,用 4 根销轴将爬升架与下支座连接牢固。

塔吊怎么安装上去的,塔吊是怎么安装的(塔机的安装及拆除)

1.5.4 安装塔帽

1.5.4.1 结构简述(见图 1.5.4-1)塔帽上部为四棱锥形结构,顶部有平衡臂拉板架和起重臂拉板并设有工作平台,以便于安装各拉杆;塔帽上部设有起重钢丝绳导向滑轮和安装起重臂拉杆用的滑轮,塔帽后侧主弦下部设有力矩限制器并设有带护圈的扶梯通往塔帽顶部。塔帽下部为整体框架结构,中间部位焊有用于安装起重臂和平衡臂的耳板。通过销轴与起重臂、平衡臂相连。

塔吊怎么安装上去的,塔吊是怎么安装的(塔机的安装及拆除)

1.5.4.2 吊装塔帽

1) 吊装前在地面上先把塔帽上的平台、栏杆、扶梯及力矩限制器装好(为使安装平衡臂方便,可在塔帽的后侧左右两边各装上一根平衡臂拉杆);

2) 如图 1.5.4-2 所示,将塔帽吊到上支座上,应注意将塔帽垂直的一侧应对准上支座的起重臂方向。(参见图 1.5.3-1, 1.5.4-1)

3) 用 4 件 φ55 销轴将塔帽与上支座紧固。

塔吊怎么安装上去的,塔吊是怎么安装的(塔机的安装及拆除)

1.5.5 安装平衡臂总成

1.5.5.1 结构简述(见图 1.5.5-1)平衡臂是槽钢及角钢组焊成的结构,平衡臂上设有栏杆、走道和工作平台,平衡臂的前端用两根销轴与塔帽 图 1.5.4-2 吊塔帽总成连接,另一端则用两根组合刚性拉杆同塔帽连接。

尾部装有平衡重、起升机构,电阻箱、电气控制箱布置在靠近塔帽的一节臂节上。

起升机构本身有其独立的底架,用四组螺栓固定在平衡臂上。

塔吊怎么安装上去的,塔吊是怎么安装的(塔机的安装及拆除)

1.5.5.2 吊装平衡臂总成

1) 在地面组装好两节平衡臂,将起升机构、电控箱、电阻箱、平衡臂拉杆装在平衡臂上并固接好。回转机构接临时电源,将回转支承以上部分回转到便于安装平衡臂的方位;

2) 如图 1.5.5-2 所示,吊起平衡臂(平衡臂上设有 4 个安装吊耳);

3) 用销轴将平衡臂前端与塔帽固定联接好;

4) 按 平 衡 臂 拉 杆 示 意 图1.5.5-3 所示,将平衡臂逐渐抬高,便于平衡臂拉杆与塔帽上平衡臂拉杆相连,用销轴连接 , 穿 好并 充 分张 开 开 口销;(如图 1.5.5-4)

5) 缓慢地将平衡臂放下,再吊装一块 2.25t重的平衡重安装在平衡臂最靠近起升机构的安装 位 置 上 ( 如 图1.5.5-5 所示)。

塔吊怎么安装上去的,塔吊是怎么安装的(塔机的安装及拆除)

塔吊怎么安装上去的,塔吊是怎么安装的(塔机的安装及拆除)

塔吊怎么安装上去的,塔吊是怎么安装的(塔机的安装及拆除)

特别注意:

1. 安装销的挡块必须紧靠平衡重块;

2. 安装销必须超过平衡臂上安装平衡重的三角挡块.

1.5.6 安装司机室

1.5.6.1 结构简述(见图 1.5.6-1)司机室为薄板结构,侧置于上支座右侧平台的前端,四周均有大面积的玻璃窗,前上窗可以开启,视野开阔。司机室内壁用保丽板装饰,美观舒适,内设有联动操纵台,司 机 室 内 用户应 自 行 配 备 符 合GB5144-2006 消防要求的灭火器。

1.5.6.2 吊装司机室

司机室内的电气设备安装齐全后 , 吊 到 上 支 座 靠 右 平 台 的 前 端 ( 如 图 1.5.6-2 所 示 ) , 对 准 耳板孔 的 位置后用三根销轴联接。

塔吊怎么安装上去的,塔吊是怎么安装的(塔机的安装及拆除)

塔吊怎么安装上去的,塔吊是怎么安装的(塔机的安装及拆除)

1.5.7 安装起重臂总成

1.5.7.1 结构简述(见图 1.5.7-1)

起重臂为三角形变截面的空间桁架结构,共分为十一节。节与节之间用销轴连接,

拆装方便。第一节根部与塔帽用销轴连接,在第三节、第八节上设有两个吊点,通过

这两点用起重臂拉杆与塔帽连接;第二节中装有牵引机构,载重小车在牵引机构的牵

引下,沿起重臂下弦杆前后运行。载重小车一侧设有检修吊篮,便于塔机的安装与维

修。

起重臂组装时,必须严格按照每节臂上的序号标记组装,不允许错位或随意组装。

根据施工要求可以将起重臂组装成 60m、54m、48m、42m、36m 臂长。54m 臂则拆下第

十节;48m 臂则拆下第九、十节;42m 臂则拆下第五、九、十节;36m 臂则拆下第四、

五、九、十节。如图 1.5.7-2 所示。

塔吊怎么安装上去的,塔吊是怎么安装的(塔机的安装及拆除)

1.5.7.2 吊装起重臂总成

1) 在塔机附近平整的枕木(或支架,高约 0.6m)上按图 1.5.7-2 及图 1.5.7-5 的要求,拼装好起重臂。注意无论组装多长的起重臂,均应先将载重小车套在起重臂下弦杆的导轨上。

2) 将维修吊篮紧固在载重小车上,并使载重小车尽量靠近起重臂根部最小幅度处.

3) 安装好起重臂根部处的牵引机构,卷筒绕出两根钢丝绳,其中一根短绳通过臂根导向滑轮固定于载重小车后部,另一根长绳通过起重臂中间及头部导向滑轮,固定于载重小车前部(图 1.5.7-3)。在载重小车后部有 3 个绳卡,绳卡压板应在钢丝绳受力一边,绳卡间距为钢丝绳直径的 6~9 倍。如果长钢丝绳松弛,调整载重小车的前端的张紧装置即可张紧。在使用过程中出现短钢丝绳松驰时,可调整起重臂根部的另一套牵引钢丝绳张紧装置将其张紧.

塔吊怎么安装上去的,塔吊是怎么安装的(塔机的安装及拆除)

4)将起重臂拉杆按图 1.5.7-4 所示拼装好后与起重臂上的吊点用销轴连接,穿好开口销,放在起重臂上弦杆的定位托架内。

塔吊怎么安装上去的,塔吊是怎么安装的(塔机的安装及拆除)

5) 检查起重臂上的电路走线是否完善。使用回转机构的临时电源将塔机上部结构回

转到便于安装起重臂的方位。

塔吊怎么安装上去的,塔吊是怎么安装的(塔机的安装及拆除)

注:

1 起重臂安装时的参考重心位置含长短拉杆、牵引机构、载重小车、且载重小车

位置在最根部时;

2 吊装时 8 米<l<20 米;

3 组装好的起重臂用支架支承在地面时,严禁为了穿绕小车牵引钢丝绳的方便仅支承两 端,全长内支架不应 少于 5 个,且每个支架均应垫好受力,为了穿绕方便允许分别支承在两边主弦杆下。

塔吊怎么安装上去的,塔吊是怎么安装的(塔机的安装及拆除)

6) 按图 1.5.7-5 挂绳,试吊是否平衡,否则可适当移动挂绳位置 (记录下吊点位置便于拆塔时用) ,起吊起重臂总成至安装高度。如图 1.5.7-6 所示用销轴将塔帽与起重臂根部连接固定。

塔吊怎么安装上去的,塔吊是怎么安装的(塔机的安装及拆除)

7) 接通起升机构的电源,放出起升钢丝绳按图 1.5.7-7 缠绕好钢丝绳,用汽车吊逐渐抬高起重臂的同时开动起升机构向上,直至起重臂拉杆靠近塔顶拉板,按图1.5.7-8 及图 1.5.7-9 将起重臂长短拉杆分别与塔顶拉板Ⅰ、Ⅱ用销轴连接,并穿好开口销。松驰起升机构钢丝绳把起重臂缓慢放下。

8) 使拉杆处于拉紧状态,最后松脱滑轮组上的起升钢丝绳。

塔吊怎么安装上去的,塔吊是怎么安装的(塔机的安装及拆除)

塔吊怎么安装上去的,塔吊是怎么安装的(塔机的安装及拆除)

1.5.8 配装平衡重平衡重的重量随起重臂长度的改变而改变。见表1.4-1 中的值。

根据所使用的起重臂长度,按图 1.5.8-1 要求吊装平衡重。起重臂四种臂长工况下平衡重的配置及安装位置严格按要求安装。

特别注意:

1. 安装销的挡块必须紧靠平衡重块;

2.安装销必须超过平衡臂上安装平衡重的三角挡块

塔吊怎么安装上去的,塔吊是怎么安装的(塔机的安装及拆除)

1.6 绕绳系统 图

1.6.1 穿绕钢丝绳

吊装完毕后,进行起升钢丝绳的穿绕。如图 1.6-1 所示,起升钢丝绳由起升机构卷筒放出,经机构上排绳滑轮,绕过塔帽导向滑轮向下进入塔顶上起重量限制器滑轮,向前再绕到载重小车和吊钩滑轮组,最后将绳头通过绳夹,用销轴固定在起重臂头部的防扭装置上。

塔吊怎么安装上去的,塔吊是怎么安装的(塔机的安装及拆除)

1.6.2 接电源及试运转

当整机按前面的步骤安装完毕后,在无风状态下,检查塔身轴心线对支承面的垂直度,允差为 4/1000;再按电路图的要求接通所有电路的电源,试开动各机构进行运转,检查各机构运转是否正确(详见有关章节),同时检查各处钢丝绳是否处于正常工作状态,是否与结构件有摩擦,所有不正常情况均应予以排除。如果安装完毕就要使用塔机工作,则必须按第三章的要求调整好安全装置。 图 1.6-1 起升钢丝绳绕绳示意图

1.7 换倍率器的使用(见图 1.7-1)

换倍率装置是一个带有活动滑轮的挂体,当其与吊钩连成一体时,起升钢丝绳系统为 4 倍率,当挂体与吊钩脱离并顶在载重小车底面时,起升钢丝绳系统则变为 2 倍率。

塔吊怎么安装上去的,塔吊是怎么安装的(塔机的安装及拆除)

1.7.1 当需要用 2 倍率工作时,操纵起升机构,使吊钩向下运动并着地,拔出挂体销轴,然后开动起升机构,收紧钢丝绳,使挂体上升至与载重小车接触。注意:起升机构的排绳情况不得有乱绳情况出现。这样起升钢丝绳系统就转换成 2 倍率。

1.7.2 若要再将起升钢丝绳系统转换 4 倍率,则又操纵起升机构,放下吊钩至地面,并使挂体落回到吊钩的挂体槽内。插上销轴和开口销,并充分张开开口销。这样起升钢丝绳系统就自动转换为 4 倍率。

1.8 顶升加节

1.8.1 顶升前的准备

1.8.1.1 按液压泵站要求给其油箱加油;

1.8.1.2 清理好各个塔身节,在塔身节连接套内涂上黄油,将待顶升加高用的标准节EQ7 在顶升位置时的起重臂下排成一排,这样能使塔机在整个顶升加节过程中不用回转机构,能使顶升加节过程所用时间最短;

1.8.1.3 放松电缆长度略大于总的顶升高度,并紧固好电缆;

1.8.1.4 将起重臂旋转至爬升架前方,平衡臂处于爬升架的后方(顶升油缸正好位于平衡臂下方);

1.8.1.5 在引进平台上准备好引进滚轮,爬升架平台上准备好塔身高强度螺栓。

1.8.2 顶升前塔机的配平

1.8.2.1 塔机配平前,必须先将载重小车运行到图 1.8-1 所示的配平参考位置,并吊起一节标准节 EQ7 或其它重物(表中载重小车的位置是个近似值,顶升时还必须根据实际情况的需要调整)。然后拆除下支座四个支腿与标准节 EQ7 的连接螺栓;

1.8.2.2 将液压顶升系统操纵杆推至“顶升”方向, 使爬升架顶升至下支座支腿刚刚脱离塔身的主弦杆的位置;

塔吊怎么安装上去的,塔吊是怎么安装的(塔机的安装及拆除)

图 1.8-1 顶升前的平衡

1.8.2.3 通过检验下支座支腿与塔身主弦杆是否在一条垂直线上,并观察爬升架8个导轮与塔身主弦杆间隙是否基本相同来检查塔机是否平衡。略微调整载重小车的配平位置,直至平衡。使得塔机上部重心落在顶升油缸梁的位置上;

1.8.2.4 记录下载重小车的配平位置。但要注意该位置随起重臂长度不同而改变;

1.8.2.5 操纵液压系统使爬升架下降,连接好下支座和塔身节间的连接螺栓。

1.8.3 顶升作业(见图 1.8-2 所示)

塔吊怎么安装上去的,塔吊是怎么安装的(塔机的安装及拆除)

1.8.3.1 将一节标准节 EQ7 吊至顶升爬升架引进横梁的正上方,在标准节 EQ7 下端装上四只引进滚轮,缓慢落下吊钩,使装在标准节 EQ7 上的引进滚轮比较合适地落在引进横梁上,然后摘下吊钩;

1.8.3.2 再吊一节标准节 EQ7,将载重小车开至顶升平衡位置;

1.8.3.3 使 用 回 转 机 构 上 的 回转制 动 器 , 将 塔 机 上 部 机 构 处 于 制 动 状 态 ;

1.8.3.4 卸下塔身顶部与下支座连接的 8 个高强度螺栓。

1.8.3.5 开动液压顶升系统,使油缸活塞杆伸出,将顶升横梁两端的销轴放入距顶升横梁最近的塔身节踏步的圆弧槽内并顶紧(要设专人负责观察顶升横梁两端销轴都必须放在踏步圆弧槽内),确认无误后继续顶升,将爬升架及其以上部分顶起 10~50mm时停止,检查顶升横梁等爬升架传力部件是否有异响、变形,油缸活塞杆是否有自动回缩等异常现象,确认正常后,继续顶升;顶起略超过半个塔身节高度并使爬升架上的活动爬爪滑过一对踏步并自动复位后,停止顶升,并回缩油缸,使活动爬爪搁在顶升横梁所顶踏步的上一对踏步上。确认两个活动爬爪全部准确地压在踏步顶端并承受住爬升架及其以上部分的重量,且无局部变形、异响等异常情况后,将油缸活塞全部缩回,提起顶升横梁,重新使顶升横梁顶在爬爪所搁的踏步的圆弧 图 1.8-2 顶升过程槽内,再次伸出油缸,将塔机上部结构再顶起略超过半个塔身节高度,此时塔身上方恰好有能装入一个塔身节的空间,将爬升架引进平台上的标准节 EQ7 拉进至塔身正上方,稍微缩回油缸,将新引进的标准节 EQ7 落在塔身顶部并对正,卸下引进滚轮,用8 件 M30 的高强度螺栓(每根高强螺栓必须有两个螺母)将上、下标准节 EQ7 连接牢靠(预紧力矩 1400kN·m)。再次缩回油缸,将下支座落在新的塔身顶部上,并对正,用 8 件 M30 高强螺栓将下支座与塔身连接牢靠(每根高强螺栓必须有两个螺母),即完成一节标准节 EQ7 的加节工作。若连续加几节标准节 EQ7,则可按照以上步骤重复几次即可。为使下支座顺利地落在塔身顶部并对准连接螺栓孔,在缩回油缸之前,可在下支座四角的螺栓孔内从上往下插入四根(每角一根)导向杆,然后再缩回油缸,将下支座落下。

1.8.4 顶升过程的注意事项:

1.8.4.1 塔机最高处风速大于 14m/s 时,不得进行顶升作业;

1.8.4.2 顶升过程中必须保证起重臂与引入标准节 EQ7 方向一致, 并利用回转机构制

动器将起重臂制动住,载重小车必须停在顶升配平位置;

1.8.4.3 若要连续加高几节标准节 EQ7, 则每加完一节后,用塔机自身起吊下一节标

准节 EQ7 前,塔身各主弦杆和下支座必须有 8 个 M30 的螺栓连接,唯有在这种情况下,

允许这 8 根螺栓每根只用一个螺母;

1.8.4.4 所加标准节 EQ7 上的踏步,必须与已有塔身节对正;

1.8.4.5 在下支座与塔身没有用 M30 螺栓连接好之前,严禁起重臂回转、载重小车变

幅和吊装作业;

1.8.4.6 在顶升过程中,若液压顶升系统出现异常,应立即停止顶升,收回油缸,将

下支座落在塔身顶部,并用 8 件 M30 高强度螺栓将下支座与塔身连接牢靠后,再排除

液压系统的故障;

1.8.4.7 塔机加节达到所需工作高度(但不超过独立高度)后,应旋转起重臂至不同的

*TC6010-6 C2

PDF 文件使用 "pdfFactory Pro" 试用版本创建 www.fineprint.com.cnTC6010-6塔式起重机 立 塔 1.1-28

*TC6010-6 C2

角度,检查塔身各接头处、基础支脚处螺栓的拧紧问题(哪一根主弦杆位于平衡臂正下

方时就把这根弦杆从下到上的所有螺母拧紧 ,上述连接处均为双螺母防松)。

1.9 塔机的附着

1.9.1 当塔机的工作高度超过其独立高度时,须进行塔身附着;

1.9.2 附着装置由四套框梁、四套内撑杆和三根附着撑杆组成,四套框梁由 24套 M20 高强度(8.8 级)螺栓、螺母、垫圈紧固成附着框架(预紧力矩为370N.m)。附着框架上的两个顶点处有三根附着撑杆与之铰接,三根撑杆的端部有连接套与建筑物附着处的连接基座铰接。三根撑杆应保持同在一水平面内,通过调节螺栓可以推动内撑杆顶紧塔身四根主弦 (参见图 1.9-1);

塔吊怎么安装上去的,塔吊是怎么安装的(塔机的安装及拆除)

1.9.3 附着点的载荷

表 1.9-1 给出了塔机在图 1.9-1 所示的附着撑杆布置形式和位置条件下建筑物附着点(即连接基座固定处) 图 1.9-1 附着架示意图的载荷值。用户需根据此载荷值的大小、附着点在建筑物结构上的具体位置、安装附着装置的附着点处建筑物局部的承载能力等因素,确定连接基座与建筑物的连接固定方式和局部结构处理方式。

注意:附着点的载荷值与塔机和建筑物的相对位置、附着撑杆的布置形式与尺寸、附着框架以上塔身悬出段长度值的变化而大幅度改变。因此,塔机附着时,如塔机位置、附着撑杆布置形式及尺寸与图 1.9-1 所示的不同时,请向本公司咨询。切不可盲目套用表 1.9-1 中的数值自行制作处理,以免产生重大安全事故。

塔吊怎么安装上去的,塔吊是怎么安装的(塔机的安装及拆除)

1.9.4 先将附着框架套在塔身上,并通过四根内撑杆将塔身的四根主弦杆顶紧;通过销轴将附着撑杆的一端与附着框架连接,另一端与固定在建筑物上的连接基座连接;

1.9.4.1 每道附着架的三根附着撑杆应尽量处于同一水平面上。但在安装附着框架和内撑杆时,若与标准节 EQ7 的某些部位干涉,可适当升高或降低内撑杆的安装高度;

1.9.4.2 附着撑杆上允许搭设供人从建筑物通向塔机的跳板,但严格禁止堆放重物;

1.9.5 安装附着装置时,应当用经纬仪检查塔身轴线的垂直度,其偏差不得大于塔身全高的 4/1000,允许用调节附着撑杆的长度来达到;

1.9.6 附着撑杆与附着框架,连接基座,以及附着框架与塔身、内撑杆的连接必须可靠。内撑杆应可靠地将塔身主弦杆顶紧,各连接螺栓应紧固好。各调节螺栓调整好后,应将螺母可靠地拧紧。开口销应按规定充分张开,运行后应经常检查有否发生松动,并及时进行调整。

注意:不论附着几次,只在最上面的一个附着框架内安装内撑杆,即新附着一次内撑杆就要移到最新附着的框架内。

1.10 投入使用前的工作

塔机投入使用前的工作,是为了保证塔机能正确操纵,并在安全条件下运行。这些工作主要是:对塔机部件的检查及调试各安全装置。

1.10.1 部件检查

塔吊怎么安装上去的,塔吊是怎么安装的(塔机的安装及拆除)

为了检查架设的正确性和保证安全运转,应对塔机各部件进行系列试运转和检查.

1.10.1.1 各部件之间的紧固联接状况检查;

1.10.1.2 检查支承平台及栏杆的安装情况;

1.10.1.3 检查钢丝绳穿绕是否正确,不能与

塔机机构和结构件相磨擦;

1.10.1.4 检查电缆通行状况;

1.10.1.5 检查平衡臂配重的固定状况;

1.10.1.6 检查平台上有无杂物,防止塔机运转时杂物下坠伤人;

1.10.1.7 检查各润滑面和润滑点。

1.10.2 安全装置调试塔机安全装置主要包括:行程限位器和载荷限制器。

行程限位器有:起升高度限位器、回转限位器、幅度限位器。 图 1.10-1 整机安全保护装置的安装位置载荷限制器有:起重力矩限制器、起重量限制器。此外还包括风速仪。调试方法见第二篇第三章。整机安全保护装置的安装位置如图 1.10-1 所示。

1.10.3 立塔后检查项目

塔吊怎么安装上去的,塔吊是怎么安装的(塔机的安装及拆除)

1.10.4 塔机组装好后,先对机构及其制动器、安全保护装置进行调整合适后(见有关章节)应依次进行下列试验(每转移一个工地都必须进行)

1.10.4.1 空载试验

各机构应分别进行数次全程范围内的运行,然后再做三次组合动作运行,运行过程不得发生任何异常现象,各机构制动器、操作系统、控制系统、联锁装置及各限位器应动作,准确可靠,否则应及时排除故障。

1.10.4.2 负荷试验

在最大幅度处分别吊对应额定起重量的 25%,50%,75%,100%,按 1.10.4.1 条要求进行试验。运行过程中不得发生任何异常现象,各机构制动器、力矩限制器、起重量限制器应动作准确、可靠,否则应及时排除故障。

1.10.5 底架固定式塔机按图 1.10-2 安装顺序进行组装:

1) 安装底架总成;

2) 其它安装顺序与支腿固定式塔机安装顺序相同。

塔吊怎么安装上去的,塔吊是怎么安装的(塔机的安装及拆除)

1.10.5.1 安装底架

1. 底架的组装

1) 拼装十字梁(见图 1.10-3),并置于基础上,用地脚螺栓和槽钢将其固定;

塔吊怎么安装上去的,塔吊是怎么安装的(塔机的安装及拆除)

2) 安装基础节 1 及 2(见图 1.10-4);

3) 安装斜撑杆;(见图 1.10-4)

塔吊怎么安装上去的,塔吊是怎么安装的(塔机的安装及拆除)

第二章 拆 塔

2.1 拆卸注意事项:

2.1.1 塔机拆塔之前,顶升机构由于长期停止使用,应对各机构特别是顶升机构进行保养和试运转;

2.1.2 在试运转过程中,应有目的地对限位器,回转机构的制动器等进行可靠性检查;

2.1.3 在塔机标准节 EQ7 已拆出,但下支座与塔身还没有用 M30 高强螺栓连接好之前,严禁使用回转机构、牵引机构和起升机构;

2.1.4 塔机拆卸对顶升机构来说是重载连续作业,所以应对顶升机构的主要受力件经常检查;

2.1.5 顶升机构工作时,所有操作人员应集中精力观察各相对运动件的相对位置是否正常(如滚轮与主弦杆之间,爬升架与塔身之间),是否有阻碍爬升架运动(特别是下降运动时)的物件;

2.1.6 拆卸时最高处风速应低于 14m/s。由于拆卸塔机时,建筑物已建完,工作场地受限制,应注意工作程序和吊装堆放位置,不可马虎大意,否则容易发生人身安全事故.

2.2 拆塔的具体程序

特别提醒:塔机拆卸是一项技术性很强的工作,尤其是塔身节、平衡重、平衡臂、起重臂等部件的拆卸,稍有疏忽,便会导致机毁人亡。因此用户在拆除这些部件时需严格按照本说明书的规定,严禁违反操作程序。上塔操作人员,必须是经过培训并拿到证书的人员。

请特别注意:两个爬爪因一定时间内不用产生锈蚀或运输碰撞等原因,很可能不能自动恢复到水平状态,故引进标准节 EQ7 或拆除标准节 EQ7 时,对爬爪应特别注意!

将塔机旋转至拆卸区域,保证该区域无影响拆卸作业的任何障碍。

如图 2.2-1 所示的顺序,进行塔机拆卸。其步骤与立塔组装的步骤相反。

拆塔具体程序如下:

塔吊怎么安装上去的,塔吊是怎么安装的(塔机的安装及拆除)

1. 降塔身标准节 EQ7(如有附着装置,相应地拆卸);

2. 拆下平衡臂配重(留一块

2.25t 的配重);

3. 起重臂的拆卸;

4. 拆卸一块 2.25t 的配重;

5. 平衡臂的拆卸;

6. 拆卸司机室;(亦可待至与回转总成一起拆卸)

7. 拆卸塔帽; 图 2.2-1 塔式起重机的拆卸

8. 拆卸回转总成;

9. 拆卸爬升架及塔身节。

2.2.1拆卸塔身(参见图 2.2.1-1)

图 2.2.1-1 拆卸塔身

塔吊怎么安装上去的,塔吊是怎么安装的(塔机的安装及拆除)

2.2.1.1 将起重臂回转到引进方向(爬升架中有开口的一侧),使回转制动器处于制动状态,载重小车停在配平位置(与立塔顶升加节时载重小车的配平位置一致);

2.2.1.2 拆掉最上面塔身标准节的上、下连接螺栓,并在该节下部连接套装上引进滚轮;

2.2.1.3 伸长顶升油缸,将顶升横梁顶在从上往下数第四个踏步的圆弧槽内,将上部结构顶起;当最上一节标准节 (即标准节 1)离开标准节 2 顶面 2~5cm 左右,即停止顶升;

2.2.1.4 将最上一节标准节沿引进梁推出;

2.2.1.5 扳开活动爬爪,回缩油缸,让活动爬爪躲过距它最近的一对踏步后,复位放平,继续下降至活动爬爪支承在下一对踏步上并支承住上部结构后,再回缩油缸;

2.2.1.6 将顶升横梁顶在下一对踏步上,稍微顶升至爬爪翻转时能躲过原来支撑的踏步后停止,拨开爬爪,继续回缩油缸,至下一标准节与下支座相接触时为止;

2.2.1.7 下支座与塔身标准节之间用螺栓连接好后,用小车吊钩将标准节吊至地面 。

注意:爬升架的下落过程中,当爬升架上的活动爬爪通过塔身标准节主弦杆踏步和标准节连接螺栓时,须用人工翻转活动爬爪,同时派专人看管顶升横梁和导向轮,观察爬升架下降时有无被障碍物卡住的现象。以便爬升架能顺利地下降。

2.2.1.8 重复上述动作,将塔身标准节依次拆下。塔身拆卸至安装高度后,若要继续拆塔,必须先拆卸平衡臂上的平衡重。

2.2.2 拆卸平衡臂配重

2.2.2.1 将载重小车固定在起重臂根部,借助辅助吊车拆卸配重;

2.2.2.2 按装配重的相反顺序,将各块配重依次卸下。仅留下一块 2.25t 的配重块。

2.2.3 起重臂的拆卸

2.2.3.1 放下吊钩至地面,拆除起重钢丝绳与起重臂前端上的防扭装置的连接,开动起升机构,回收全部钢丝绳;

2.2.3.2 根据安装时的吊点位置挂绳;

2.2.3.3 轻轻提起起重臂,慢慢起动起升机构,使起重臂拉杆靠近塔顶拉杆;拆去起重臂拉杆与塔顶拉板的连接销,放下拉杆至起重臂上固定;拆去钢丝绳,拆掉起重臂与塔帽的连接销;

2.2.3.4 放下起重臂,并搁在垫有枕木的支座上。

2.2.4 平衡臂的拆卸

将配重块全部吊下,然后通过平衡臂上的四个安装吊耳吊起平衡臂,使平衡臂拉杆处于放松状态,拆下拉杆连接销轴。然后拆掉平衡臂与塔帽的连接销,将平衡臂平稳放至地面上。

2.2.5 拆卸司机室

2.2.6 拆卸塔帽

拆卸前,检查与相邻的组件之间是否还有电缆连接。

2.2.7 拆卸回转总成

拆掉下支座与塔身的连接螺栓,伸长顶升油缸,将顶升横梁顶在踏步的圆弧槽内并稍稍顶紧,拆掉下支座与爬升架的连接销轴, 回缩顶升油缸,将爬升架的爬爪支承在塔身上,再用吊索将回转总成吊起卸下。

2.2.8 拆走爬升架及塔身标准节

2.2.8.1 吊起爬升架,缓缓地沿标准节主弦杆吊出,放至地面。

2.2.8.2 依次吊下各节标准节。

2.2.9 拆走底架总成

拆卸方法与底架安装方法相反.

2.3 塔机拆散后的注意事项

2.3.1 塔机拆散后由工程技术人员和专业维修人员进行检查。

2.3.2 对主要受力的结构件应检查金属疲劳,焊缝裂纹,结构变形等情况,检查塔机各零部件是否有损坏或碰伤等。

2.3.3 检查完毕后,对缺陷、隐患进行修复后,再进行防锈、刷漆处理。

本文关键词:塔吊怎么操作,塔吊是怎么安装的带你看全过程,塔吊操作,塔吊是怎么安装的视频,一个塔吊多少钱。这就是关于《塔吊怎么安装上去的,塔吊是怎么安装的(塔机的安装及拆除)》的所有内容,希望对您能有所帮助!

本文链接:https://bk.89qw.com/a-688114

最近发表
网站分类