手机版

百科生活 投稿

悬挑式脚手架搭设规范要求,悬挑脚手架搭设

百科 2026-02-18 01:05:24 投稿 阅读:745次

关于【悬挑式脚手架搭设规范要求】,今天小编给您分享一下,如果对您有所帮助别忘了关注本站哦。

1、基本搭设要求

脚手架形式为扣件式钢管脚手架,内排立杆外皮距建筑外墙为350mm,如果外墙有幕墙等装饰,则根据实际进行调整。步距为多为1.5或1.8m,立杆间距1.5m~1.6m,排距为0.95m。悬挑采用悬挑工字钢与钢丝绳斜拉结合的方式。剪刀撑满布搭设,跨5根立杆。拉结形式为预埋钢管硬性拉结。(具体数值按照方案设计设置)

2、工字钢

采用18号工字钢,不同部位使用不同长度的工字钢,外挑长度要满足脚手架宽度要求,脚手架外立杆距工字钢外端部不小于100mm,马道局部悬挑长度较长,必须配合钢丝绳张拉进行。脚手架工字钢布置应考虑避开安装管道的坑洞,剪力墙身附近工字钢保留250mm以上距离,以方便模板安装。在距工字钢一端100mm和1050mm的地方满焊长200mm的钢筋(直径为22的二级钢),立杆底部套在该钢筋头上。在工字钢外挑端部100mm处按45°焊接Φ14圆钢拉环,作为钢丝绳拉结卸荷连接点。

方案设计中,要绘制工字钢排布平面图,施工时按此图进行设置。

悬挑式脚手架搭设规范要求,悬挑脚手架搭设

3、工字钢锚筋

工字钢锚筋在外挑建筑物边、锚固后端内侧100mm处固定,在楼面与工字钢对应位置分别预埋“L”形Ø14钢筋埋件,开口向上,锚入梁板内。工字钢就位后,将Ø14钢筋埋件弯下焊接10d。也可根据工字钢形状及尺寸预埋锚环,将工字钢插入,再用铁楔塞实。工字钢后端部要双锚环。

悬挑式脚手架搭设规范要求,悬挑脚手架搭设

4.钢丝绳

悬挑钢梁的斜拉采用6x19,直径为12mm的钢丝绳,连接采用骑马式卡环,用Ø15.8mm螺紧箍栓。在上一层梁或剪力墙侧面预留PVC套管,便于穿钢丝绳,或在边梁上部预留Ø18锚环。预留套管或锚环位置要与工字钢位置相对应,使钢丝绳与工字钢处于一个垂直立面上,不扭曲。

悬挑式脚手架搭设规范要求,悬挑脚手架搭设

5.连墙件

采用预埋钢管的方式设置连墙件,三步两跨成菱形布置。每一个拉接件必须用直角扣件与内、外两个立杆连接牢固。拉接点横竖向顺序排列、均匀布置、与架体和结构立面垂直,并尽量靠近主节点(距主节点的距离不大于30cm)。连墙杆伸出扣件的距离应大于10cm。拉接点外侧悬挂拉接标志牌。

当脚手架施工操作层高出连墙件两步时,应采取临时稳定措施,直至上一层连墙件搭设完成后方可根据情况拆除。

悬挑式脚手架搭设规范要求,悬挑脚手架搭设

当楼层很高,超过规定时,可采用抱柱子的方式进行拉结。

6.剪刀撑

选用单杆通长剪刀撑,剪刀撑随立杆、纵横向水平杆同步搭设。剪刀撑满布搭设跨越5根立杆,斜杆与水平面的夹角在45°和60°之间。斜杆相交处处于同一条直线上,并沿架高连续布置。剪刀撑的杆件连接采用搭接,搭接长度≥1m,并用不少于三个旋转扣件固定,端部扣件盖板的边缘至杆端的距离≥10cm。

悬挑式脚手架搭设规范要求,悬挑脚手架搭设

7、外架挑网

挑网架应设在底层中间悬挑层,外挑4.5m。平网和密目网各一道,水平方向每隔6m设钢管斜顶撑和钢丝绳斜拉固定,钢丝绳应拉在结构上。

悬挑式脚手架搭设规范要求,悬挑脚手架搭设

8、脚手架水平防护

脚手架悬挑层采用硬性封闭。脚手架内防护,每隔一层封闭平网一道至建筑物。操作层铺设木脚手板。

悬挑式脚手架搭设规范要求,悬挑脚手架搭设

三、特殊部位

1、大阳角

先沿大阳角处先挑出一水平工字钢,作为支撑,两侧横向焊接工字钢作为立杆支撑。如果此处无法伸出支撑杆,则需要采用图二的方式。此处工字钢必须配合钢丝绳张拉。

悬挑式脚手架搭设规范要求,悬挑脚手架搭设

悬挑式脚手架搭设规范要求,悬挑脚手架搭设

悬挑式脚手架搭设规范要求,悬挑脚手架搭设

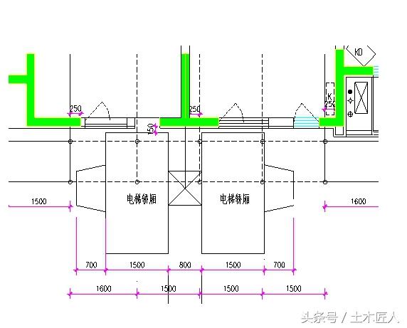
2.施工电梯口

施工电梯设置位置要满足道路畅通,基础敦实,各层卸料口宽度足够,便于防护的位置。尽量贴建筑物外沿安装,这样锚固的更牢固,还减少了接料平台的搭设,各层的防护也便于开展。电梯贴建筑物设置时,离墙间距150mm。防止电梯有摆动时挂到建筑物。

如果外墙有造型或其他原因,电梯不能贴墙设置,则需要单独搭设接料平台架。此平台架必须单独搭设,严禁与外架相连。架体基础要有足够承载力,避免下沉。每层接料平台底部要满铺跳板,两侧做好水平防护。

接料平台电梯口处要安装防护门,防护门要避免工人随便开启。

悬挑式脚手架搭设规范要求,悬挑脚手架搭设

3.上人马道

尽量设置搭设双跑马道,以减少坡度。马道的斜道上下宽度应不小于1.0米。马道入口在地面的话要搭设安全通道;出口在各楼层的话要将顶部进行防护,防止落物。马道板头的凸棱处应用三角木填顺,每隔30cm设置一个防滑木条,木条规格为2cmx3cm(厚度x宽度)。斜道两侧及平台外围必须设置栏杆和挡脚板,栏杆设置两道,高度分别为0.6米和1.2米。马道挡脚板高度为18cm,外侧用安全密目网封闭。

安全注意事项

当脚手架和高低压线路之间安全距离不足时,要搭设竹质隔离架,高空搭设及拆除时,操作人员必须系好安全带,并要做好防触电措施,有专人监控。

脚手架顶部设避雷针,采用1m长Φ12镀锌圆钢,设在转角的立杆上。接地线Φ8钢筋,可临时焊接于工程的接地板上,焊接长度50mm(双面焊)。避雷装置的冲击接地电阻不得大于30Ω。

严禁在竹笆,安全网等围护设施处用电气焊和用火。如果必需在脚手架上进行电、气焊作业,必须有防火措施和专人看管,并办理动火审批。

随时纠正杆件垂直和水平偏差。没有完成的脚手架,在每日收工时,一定要确保架子稳定,以免发生意外。扣件要拧紧,有变形的钢管和不合格的扣件不能使用。

当有六级或六级以上大风和雾、雨、雪、冰雹天气时应停止脚手架搭设与拆除作业。暴风雪及台风暴雨后,应对高处作业安全设施逐一加以检查,发现有松动、变形、损坏或脱落等现象,应立即修理完善。防护栏杆必须自上而下用安全立网封闭

脚手架不得作为材料堆放场,其上只能堆放少量的物料,且应堆放平稳,不妨碍通行和装卸。

工具应随手放入工具袋;作业中的走道、通道板和登高用具,应随时清扫干净;拆卸下的物件应及时清理运走,不得任意乱置或向下丢弃,传递物件禁止抛掷。施工作业场所有坠落可能的物件,应一律先行撤除或加以固定。

搭设和拆除脚手架时,地面应设围拦和警示标志,并派人专人看守,严禁非操作人员入内。脚手架的作业人员必须佩戴安全帽、安全带,穿防滑鞋。悬挑工字钢加固焊接时,应配备灭火器,以防发生火灾。

四、脚手架常见问题及预防措施

通病:立杆纵距间距不均匀,不按方案中的尺寸搭设,布置第一道立杆时杆件的长短搭配不合理,导致立杆接头没有错开,立杆的垂直度偏差超规范。

危害:导致脚手架构造发生变化,影响整体稳定性。

预防:按方案施工,合理选用钢管,加强搭设过程(尤其第一步搭设时)的控制。

通病:主节点处没有搭设横向水平杆、横向水平杆偏离主节点超规范或未用扣件连接在立杆上。

危害:使脚手架的结构发生变化,造成薄弱环节,影响整体稳定性。

悬挑式脚手架搭设规范要求,悬挑脚手架搭设

预防:按方案搭设,搭设时注意检查各个部位与环节的质量;在以后时间里,注意检查不要被拆除。

通病:连墙件距离主节点的距离偏大(大于300mm),没有内外立杆同时连接。连墙件设置数量不符合方案要求。

危害:造成立杆受力部位刚性薄弱

悬挑式脚手架搭设规范要求,悬挑脚手架搭设

预防:方案中要考虑脚手架每步的高度,尽量与楼层平层;如果出现这种情况,可以在此处分别搭设大横杆与小横杆,相当于造一个主节点,增强立杆的刚性。

通病:剪刀撑没有随脚手架的搭设进度及时搭设,剪刀撑角度不符合规范要求,搭接长度不够,搭接时旋转扣件数量不足,与脚手架架体之间的连接不够。

危害:剪刀撑滞后造成上部脚手架稳定性差;剪刀撑不予立杆相连造成剪刀撑作用大大削弱;扣件少一个造成薄弱环节。

悬挑式脚手架搭设规范要求,悬挑脚手架搭设

预防:严格安装方案施工,搭设时加强细部检查,严格管理。剪刀撑搭接长度不应小于 1m,应等间距设置 3个旋转扣件固定,端部扣件盖板边缘至搭接纵向水平杆杆端的距离不应小于100mm;

通病:上人马道未单独设计、计算。

危害:此处出现漏洞,没有对此处计算,不能保证是否满足要求,工字钢悬挑是否有足够的承载力。

悬挑式脚手架搭设规范要求,悬挑脚手架搭设

预防:外架方案要对每个细节、每个环节都要说明,必要时绘制简图,受力增加位置要独立验算。

通病:扣件扭力矩达不到规范要求。

危害:造成扣件打滑,脚手架变形,严重者造成脚手架倾覆。

预防:加强教育,现场用扭矩扳手检查,及时纠正。

通病:钢丝绳绳卡方向错误,或环抱工字钢端头无保护。

危害:钢丝绳容易打滑;钢丝绳在工字钢处无保护措施的话,在拉紧受力后,随时间推移,容易造成钢丝绳磨损。

预防:钢丝绳马牙卡基座处要卡在受力绳上;钢丝绳在工字钢处要穿软管或用专用卡拉工字钢。

通病:脚手架无防雷接地。

危害:在雷击时,不能将雷电及时导入大地,导致脚手架上人员遭雷击或脚手架受损。

预防:在适合位置的下方打接地极,用钢筋把架体与接地极焊接起来。也可利用结构预埋的接地极和引下线,在合适位置结构施工混凝土浇筑前,用钢筋从引下线引出焊在脚手架钢管上。这种办法在高层很实用。

通病:脚手架上堆载过多或集中荷载过大。

危害:造成脚手架局部荷载超过设计值,容易造成脚手架坍塌。

预防:加强管理与教育,禁止堆放过多材料。

通病:连墙件存在人为破坏现象。

预防:加强管理,严禁拆除,尤其是砌体、幕墙等施工阶段,更要加强监控。

悬挑式脚手架搭设规范要求,悬挑脚手架搭设

预防:加强教育与检查,及时补充缺失或破坏的连墙件。

通病:脚手板的搭接不符合要求,不满铺、探头板现象普遍。

危害:容易造成人员或物体坠落。

悬挑式脚手架搭设规范要求,悬挑脚手架搭设

预防:施工层脚手板要满铺,脚手架局部作业时最起码要保证作业区域满铺,加强管理,严禁出现探头板;脚手板铺设种类要与脚手架搭设形式相符合。

通病:卸料平台在架设时落在脚手架上。

危害:卸料平台力量落在外架上,造成外架局部承受额外的力量

悬挑式脚手架搭设规范要求,悬挑脚手架搭设

预防:脚手架搭设时要考虑好卸料平台的安装空间,尽量留出空间。如果没有留出空间,就要对外架进行改造和加固。

通病:脚手架与模板支撑相连

危害:造成模板支撑的力量压在外架上,容易造成外架受力超过受力值,严重者造成外架垮塌。

悬挑式脚手架搭设规范要求,悬挑脚手架搭设

预防:模板支撑于外架要彻底分离,平时要加强教育和检查。

安全重于泰山!工程现场悬挑钢管脚手架常见安全隐患及整改措施

现场安全隐患排查项目:防水工程、外墙保温工程、屋面工程

,

本文关键词:悬挑式脚手架搭设规范要求标准,悬挑式脚手架搭设规范,悬挑脚手架搭设规范要求(高度,步距,立杆间距,连墙件),悬挑脚手架是什么,悬挑脚手架从第几层开始。这就是关于《悬挑式脚手架搭设规范要求,悬挑脚手架搭设》的所有内容,希望对您能有所帮助!

本文链接:https://bk.89qw.com/a-816093

最近发表
网站分类