手机版

百科生活 投稿

逆作法施工最全施工方案,有了这篇逆作法节点构造总结

百科 2026-02-07 19:35:05 投稿 阅读:5788次

关于【逆作法施工最全施工方案】,今天小编给您分享一下,如果对您有所帮助别忘了关注本站哦。

源自丨中建城市建设发展有限公司

中建城建公司南方分公司新华人寿大厦施工总承包项目攻克淤泥地质环境下大体积混凝土施工这一难题,采用“跳仓法”取代“后浇带”施工(深圳前海首例),解决了传统后浇带遗留的安全、质量问题,缩短工期、降低成本,“跳仓法”施工在该项目达到了提质增效的效果。

逆作法施工最全施工方案,有了这篇逆作法节点构造总结

本工程“跳仓法”应用

本工程地下室东西方向连续最大长度约66.9m,南北方向连续最大长度约123.8m。原施工图中布置沉降后浇带及施工后浇带,地下后浇带长度(底板 外墙 地下顶板)共约2300m。

原设计的不足:

(1)后浇带处的施工质量难以保证。

(2)后浇带对工期造成不利影响。

(3)后浇带的存在会导致模板及支撑体系租赁费用的增加。

新方案的确定:

本工程因基坑施工面积大,针对如何确保混凝土结构施工后杜绝出现贯通裂缝现象,控制结构表面裂缝这一问题,项目部对施工方案进行了对比分析,结合近年来不少工程取消后浇带改用“跳仓法”获得成功经验,经公司与项目部研究论证,提出优化建议,决定取代原设计后浇带及膨胀加强带施工法,采用“跳仓法”施工。

一、“跳仓法”仓格划分

本工程对基础底板、地下四层顶板、地下三层顶板、地下二层顶板、地下一层顶板、地下四层竖向构件、地下三层竖向构件、地下二层竖向构件及地下一层竖向构件 9 个位置分别进行跳仓方案设计,明确了每一部分的仓格划分形式、施工缝留设位置并根据施工分区确定施工顺序。

逆作法施工最全施工方案,有了这篇逆作法节点构造总结

基础底板分仓图

逆作法施工最全施工方案,有了这篇逆作法节点构造总结

B4顶板分仓图

逆作法施工最全施工方案,有了这篇逆作法节点构造总结

B3顶板分仓图

逆作法施工最全施工方案,有了这篇逆作法节点构造总结

B2顶板分仓图

逆作法施工最全施工方案,有了这篇逆作法节点构造总结

B1顶板分仓图

二、预拌混凝土

(1)本工程选用 P·O42.5 普通硅酸盐水泥,有效控制温升。

(2)采用较小的水胶比,每立方米混凝土用水量减少5~15kg,提高混凝土密实度。

(3)优化混凝土配合比,降低胶凝材料总用量,并采用超量取代的办法提高粉煤灰掺量,减少混凝土塑性收缩,降低水泥水化热及混凝土内外温差,减小温度应力,抑制应力裂缝的产生;合理利用(粉煤灰与高效减水剂)“双掺”的超叠加技术,增强混凝土的内部结构的致密性,从而控制早期收缩。

(4)严格控制原材质量,石子空隙率控制不大于 40%,机制砂石粉含量宜控制在 3%以内入,坍落度控制在 140 ~ 160mm。

逆作法施工最全施工方案,有了这篇逆作法节点构造总结

三、施工缝

底板与外墙、底板与底板施工缝应采取钢板防水措施,施工缝处采用双向方格(80mm×80mm)骨架,用20目钢纱网封堵混凝土,严禁采用快易收口网。设止水钢板时骨架及钢板网上、下断开,保持止水钢板的连续贯通。跳仓施工缝采取钢丝网,施工缝表面粗糙,不需要凿毛,清水冲洗干净后即可进行第2次砼浇筑。

逆作法施工最全施工方案,有了这篇逆作法节点构造总结

底板施工缝

逆作法施工最全施工方案,有了这篇逆作法节点构造总结

外墙施工缝

逆作法施工最全施工方案,有了这篇逆作法节点构造总结

顶板施工缝

四、混凝土浇筑

本工程按照实际情况组织安排分多步浇筑施工,浇筑过程中确保相邻两个仓格浇筑时间间隔 7 天以上,如马道处结构施工周期超过相邻仓格混凝土浇筑时间 27 天时,应留设冷缝并做相应处理措施,具体跳仓顺序分别为:

基础底板、地下 4 层顶、地下 3 层顶、地下 2 层顶板、地下 1 层顶板浇筑顺序:

第 1 步浇筑仓格:A1、A2、A3、A4

第 2 步浇筑仓格:B1、B2、B3、B4

第 3 步浇筑仓格:C1、C2

第 4 步浇筑仓格:D

地下竖向构件浇筑顺序同各层顶板。混凝土结构底板、外墙、梁板混凝土的浇筑顺序应分仓进行,相邻仓的浇筑间隔时间不少于 7d。

厚底板混凝土采用“一个坡度、分层浇筑、循序推进、一次到顶”的浇灌工艺,分层厚度不超过 500mm,坡度为 1:6~1:7。混凝土浇筑法为分层布料、分层振捣、斜坡推进法施工, 见下图:

逆作法施工最全施工方案,有了这篇逆作法节点构造总结

浇筑方法示意图

逆作法施工最全施工方案,有了这篇逆作法节点构造总结

“跳仓法”施工技术总结

一、什么是“跳仓法”

在大体积混凝土施工过程中,采用“抗、放结合,先放后抗”的基本原理,将超长的混凝土块体分为若干小块体间隔施工,经过短期的应力释放,再将若干小块体连成整 体,依靠混凝土抗拉强度抵抗下一段的温度收缩应力的施工方法。

二、“跳仓法”施工技术优势

(1)通过跳仓施工法,将后浇带改为施工缝,施工工艺简便,缩短施工工期。

(2)避免了后浇带施工周期长,底部支撑排架的长期留置,为下道工序提供施工空间,同时也节约了成本。

(3)分仓间区块浇筑时间为7d左右,先行浇筑区域应力释放时间充足,且两侧混凝土结合更加紧密,有利于施工,也提高了施工效率。

(4)通过优化混凝土配合比,控制原材料质量及混凝土入模温度、塌落度,加强混凝土浇筑过程中的二次振捣、二次抹压,从而减少混凝土的收缩裂缝,提高混凝土的密实度和抗拉强度,减少了渗漏隐患。

(5)跳仓法施工使结构整体性提前形成,有利于地下室运输机械的提前介入,材料周转倒运方便,提高了施工效率。

三、"跳仓法"施工工艺

跳仓法适用于基础底板、地下室外墙和顶板等的施工,现以基础底板的施工为例来介绍跳仓法施工工艺。《超长大体积混凝土结构跳仓法技术规程》(DB11T1200-2015)规定,根据基础筏板面积大小沿纵向和横向分仓,仓格间距宜不大于 40m,并进行编号,如图所示。混凝土浇筑时,先浇筑A 区, 即“开放仓”,7 天之后再浇筑 B 区,再隔 7 天浇筑 C 区,即“封闭仓”。

逆作法施工最全施工方案,有了这篇逆作法节点构造总结

基础底板仓格划分

逆作法施工最全施工方案,有了这篇逆作法节点构造总结

“跳仓法”控制要点

一、防开裂构造措施

(1)地下室外墙模板采用保温性能和保湿性较好的15厚胶合板模,模板应拼缝严实,加固可靠、定位准确,混凝土浇灌前浇水润湿。

(2)混凝土采用“一个坡度、分层浇筑、循序推进、一次到顶”的浇灌工艺,分层厚度不超过 500mm。对于部分落差大的外墙采取溜槽、串桶及于墙中开设浇灌孔等措施以防止混凝土离析。

(3)对于底板混凝土采用二次压光技术,在混凝土浇筑完成 4h 后进行二次压光技术。有效消除表面早期塑性裂缝,底板混凝土一定要二次振捣,养护时间不小于 14 天。

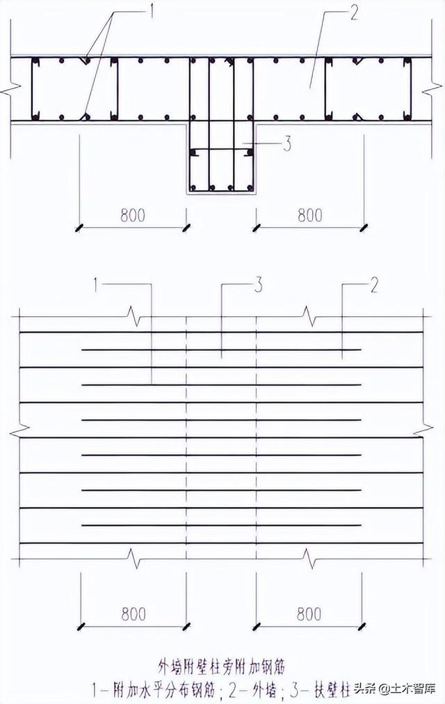
(4)为利于控制裂缝,地下室外墙将水平分布钢筋布置在竖向钢筋的外侧。当地下室外墙设有附壁柱时,应在附壁柱处沿竖向原有水平分布钢筋间距之间增加直径为 8mm、长度为柱每边伸出 800mm 的附加钢筋,做法如下图。

逆作法施工最全施工方案,有了这篇逆作法节点构造总结

做法详图

二、温控检测

由于混凝土初期升温较快,混凝土内部的温升主要集中在浇筑后的 3d,一般在第 3 天温升可达到或接近最高峰值。另外,混凝土内部的最大温升,是随着结构物厚度的增加而增高。需结合工程实际情况和结构特点,确定的测温项目和测温频度测定混凝土温度时同时测定大气温度。

逆作法施工最全施工方案,有了这篇逆作法节点构造总结

地下墙体温点布置立面示意图

逆作法施工最全施工方案,有了这篇逆作法节点构造总结

测温点埋置方式图

三、质量控制

针对大体积混凝土跳仓法施工技术存在质量问题,项目部进行详细的原因分析、研究,制定了相应的控制措施。

逆作法施工最全施工方案,有了这篇逆作法节点构造总结

项目部就工程施工特点、难点进行了全方位研究,采用“跳仓法”施工工艺代替后浇带分仓流水施工,避免设置后浇带带来的后期清理麻烦、钢筋锈蚀、影响后续工序插入施工等问题,缩减工期约1个月,取得显著的经济效益与社会效益。通过合理的仓格划分、优化混凝土配合比、控制入模温度、加强混凝土养护等技术措施确保“跳仓法” 实施效果,最终裂缝控制效果良好,无肉眼可见裂缝。同时也保证了地下室的整体防水效果。

本文关键词:逆作法施工适用范围,逆作法施工技术施工要求,逆作法施工的关键技术,逆作法施工流程图,逆作法施工什么意思。这就是关于《逆作法施工最全施工方案,有了这篇逆作法节点构造总结》的所有内容,希望对您能有所帮助!

本文链接:https://bk.89qw.com/a-827379

最近发表
网站分类