手机版

百科生活 投稿

连栋温室大棚骨架,温室大棚的结构包括哪些(温室大棚钢材钢管)

百科 2026-02-20 11:15:45 投稿 阅读:3299次

关于【连栋温室大棚骨架】,温室大棚的结构包括哪些,今天小编给您分享一下,如果对您有所帮助别忘了关注本站哦。

  • 内容导航:
  • 1、连栋温室大棚骨架:温室大棚钢材钢管,温室大棚骨架加工
  • 2、连栋温室大棚骨架,温室大棚的结构包括哪些

1、连栋温室大棚骨架:温室大棚钢材钢管,温室大棚骨架加工

温室大棚钢材钢管,温室大棚骨架加工。

温室大棚热浸镀锌钢材:方管、圆管、角钢、圆钢、H型钢等。

温室大棚骨架加工:玻璃温室大棚骨架、薄膜连栋温室大棚骨架、阳光板温室大棚骨架、日光温室大棚骨架、喷塑温室大棚骨架、春秋温室大棚骨架,异形温室大棚骨架,光伏温室大棚骨架等。温室大棚立柱(有无底座)、温室大棚四周围梁、温室大棚屋架杆、温室大棚横纵桁架、温室大棚水槽天沟、温室大棚开窗遮阳传动系统等。

连栋温室大棚骨架,温室大棚的结构包括哪些(温室大棚钢材钢管)

山东一道农业科技有限公司是一家从事温室大棚设计规划建造的公司。自有设计团队,自有实体工厂,自有施工队伍,是一家智慧农业温室大棚建造的一站式服务商。曾参与多项国内外大型温室大棚建造工程。多年的设计规划加工施工经验,让得您省心省力。

温室大棚骨架多为热浸镀锌的,以增加后期使用过程中的抗腐蚀能力。温室大棚热浸镀锌钢材:方管、圆管、角钢、圆钢、H型钢等。

方管一般为:50*30*2.0mm、50*50*2.0mm、100*100*3.0mm、120*120*3.5mm、150*150*3.5mm

圆管一般为:φ25*2.0mm、φ32*2.0、φ42*2.0

不同地区、不同结构的温室,风载、雪载系数要求不一样。

连栋温室大棚骨架,温室大棚的结构包括哪些(温室大棚钢材钢管)

玻璃温室大棚骨架为纹洛式结构,是由荷兰引进的温室大棚建造形式,一般跨度为8m、9.6m、10.8m、12m,开间为4m、8m。在国内经过改良能适应大多数有土地尺寸限制性的场地。根据客户的特殊要求也可进行针对性设计加工。

薄膜温室大棚骨架建造为连栋形式,是由玻璃纹洛式温室结构改进得来的,适合大部分南方地区的建设要求。一般跨度为8m,开间为4m,土地利用率提高,连排成片。同时也降低了温室大棚骨架成本。

阳光板温室大棚结构同属于纹洛氏温室结构,阳光板温室大棚骨架材料规格略小一些,由于阳光板的重量比玻璃重量轻的多。结构外观一样,都可以实现温室大棚使用的多功能性。

温室大棚骨架高度的确定多根据温室大棚的实际用途。种植温室大棚高度较低,多利于温室大棚温度的保持;观赏科研温室大棚高度较高,内部空间开阔,不会给人以压抑感受。

现代化温室大棚骨架多为现场装配式,钢材在工厂深加工后经过二次热浸镀锌处理,发到项目现场后,安装技术师傅进行安装。降低了因为安装师傅技术水平不同带来的安装效果的问题。提供了现场安装作业的速度,降低了安装成本。

连栋温室大棚骨架,温室大棚的结构包括哪些(温室大棚钢材钢管)

薄膜温室大棚可以分为薄膜连栋温室大棚和日光温室大棚,日光温室大棚为半坡式结构,坐北朝南,充分利用自然太阳光照晒提供的热能。日光温室大棚骨架常用的为椭圆管、几字钢、焊接花梁。椭圆管多为30*70*2.0mm、30*75*2.0mm;几字钢多为45*70mm;花梁多为:φ25*1.5mm、φ32*1.5/2.0mm圆管。

温室大棚骨架钢材的选择由成本预算和用途共同决定。玻璃温室大棚骨架成本高,阳光板温室大棚骨架成本次之,薄膜温室大棚骨架成本再次之。玻璃温室大棚抗外部环境因素强,阳光板温室大棚抗外部环境因素次之,薄膜温室大棚抗外部环境因素再次之。

2、连栋温室大棚骨架,温室大棚的结构包括哪些

连栋温室大棚是将单个的温室通过天沟连接起来的一种大棚样式。近几年随着我国设施农业的发展,越来越多的连栋温室大棚投入到我们的应用中来。今天带大家带来的是连栋温室大棚常见的骨架样式分类。

连栋温室大棚骨架,温室大棚的结构包括哪些(温室大棚钢材钢管)

一、单层圆拱形骨架

该种温室的覆盖材料为单层的薄膜,骨架材料由立柱、横纵梁、天沟、外遮阳骨架,四周维护梁组成。该种型号的骨架材料具有造价经济,重量轻,安装方便的优点。是目前8430型温室大棚的主要骨架材料。华中、华东地区的立柱型号主要采用50*100*3.0型号,华北地区宜采用100*100*3.0型号。

连栋温室大棚骨架,温室大棚的结构包括哪些(温室大棚钢材钢管)

二、双圆拱骨架

该种温室的骨架是在单层圆拱的形式上增加了一层内拱,天沟下增加了一趟c型钢。其主要作用提高温室大棚的保温性能。但是由于增加一层内拱会影响温室整体自然通风性能,因此此种温室一般应用在花卉种植上。

连栋温室大棚骨架,温室大棚的结构包括哪些(温室大棚钢材钢管)

连栋温室大棚骨架,温室大棚的结构包括哪些(温室大棚钢材钢管)

左侧双膜温室右侧单膜温室

三、纹络型骨架材料

该种温室骨架即为尖顶温室骨架,是覆盖玻璃或者阳光板的骨架。该种温室骨架材料结构复杂,是目前最为先进的一种温室大棚。

连栋温室大棚骨架,温室大棚的结构包括哪些(温室大棚钢材钢管)

连栋温室大棚骨架,温室大棚的结构包括哪些(温室大棚钢材钢管)

人字梁同水槽的安装示意图,人字梁常规为30*50*2.0热镀锌方管。顶部为玻璃覆盖的也可以做出铝合金人字梁。

连栋温室大棚骨架,温室大棚的结构包括哪些(温室大棚钢材钢管)

水槽托架同人字梁连接件等的连接详图,温室骨架都是用热镀锌螺栓连接起来的,整体防腐防锈强、结构稳定性强。

连栋温室大棚骨架,温室大棚的结构包括哪些(温室大棚钢材钢管)

主立柱同桁架梁之间的连接要用高强度螺栓连接。

连栋温室大棚骨架,温室大棚的结构包括哪些(温室大棚钢材钢管)

水槽托架同桁架梁的安装细节布置图

连栋温室大棚骨架,温室大棚的结构包括哪些(温室大棚钢材钢管)

水槽、桁架、托架等整体连接的布置详图

连栋温室大棚骨架,温室大棚的结构包括哪些(温室大棚钢材钢管)

纹络型温室外部立柱同水槽托架的连接详图

连栋温室大棚骨架,温室大棚的结构包括哪些(温室大棚钢材钢管)

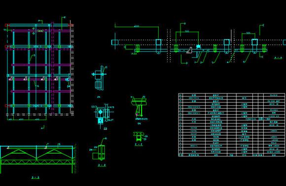
温室大棚外部电动遮阳横纵梁之间的连接方式

连栋温室大棚骨架,温室大棚的结构包括哪些(温室大棚钢材钢管)

温室大棚遮阳系统驱动杆、传动杆及电机的位置布置图

连栋温室大棚骨架,温室大棚的结构包括哪些(温室大棚钢材钢管)

玻璃温室顶部开窗位置及传动杆布置图。

本文关键词:连栋温室大棚骨架多少钱一个平方,连栋温室大棚骨架哪家好,连栋温室大棚骨架安装,连栋温室大棚骨架报价,连栋温室大棚骨架结构。这就是关于《连栋温室大棚骨架,温室大棚的结构包括哪些(温室大棚钢材钢管)》的所有内容,希望对您能有所帮助!

本文链接:https://bk.89qw.com/a-836678

最近发表
网站分类