手机版

百科生活 投稿

十大经典古四合院,史上最全古典四合院解析

百科 2026-02-13 11:31:03 投稿 阅读:3755次

关于【十大经典古四合院】,史上最全古典四合院解析,今天小编给您分享一下,如果对您有所帮助别忘了关注本站哦。

看过了气势如虹的大门,绕过了雕工考究的影壁,迈过了漂亮精致的垂花门,走过了雕梁画栋的抄手游廊……终于走到了内院。

十大经典古四合院,史上最全古典四合院解析

北京四合院

《四合院》戚秦

清风杨柳芊,院庭四合间。房脊琉璃苫,天井座中间。民风格律远,还古续今观。屋里清香漫,茶盏对八仙。

四合院内院

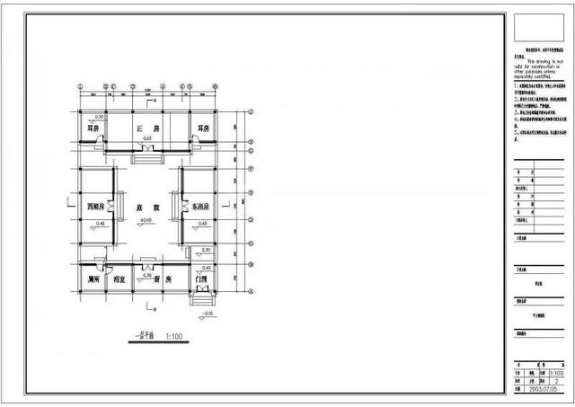
坐北朝南的正房一般是三间或五间,朝向好,冬暖夏凉。并配有东西耳房。所谓“三正两耳”或“三正四耳”指的就是它们了。旧历,正方中间一间为堂屋,是家人起居、超带亲朋或逢年过节设供祭祖的地方,两侧的房间分别为卧室,供长辈使用。耳房通常为仓库或书房来使用。

十大经典古四合院,史上最全古典四合院解析

结构图丨北京四合院

十大经典古四合院,史上最全古典四合院解析

北京四合院

两侧分别为东厢房西厢房,多由晚辈居住。厢房也是一明两暗,正中一间为起居室,两侧为卧室。朝向最不好的“倒座房”一般用作与储藏间。

十大经典古四合院,史上最全古典四合院解析

鸟瞰图丨北京四合院

四合院是以“北屋为尊,两厢次之,倒座为宾,杂屋为附”的位置序列安排。

十大经典古四合院,史上最全古典四合院解析

鸟瞰图丨北京四合院

十大经典古四合院,史上最全古典四合院解析

雕梁画栋丨北京四合院

雕梁画栋

细节决定建筑的精美程度,四合院定型后,装饰就开始繁复起来,因为精细的缀点永远是最出彩、最显品味的所在。

中国传统民俗包含吉祥和禁忌两个方面,四合院中的门楼、门墩、照壁、花坊、房檐屋脊和门窗等处装修、雕饰、彩绘处处体现这两个方面的民俗思维。雕花的窗户、斗拱、雀替、飞檐、屋脊,这些细节处无一不体现出中国古代劳动人民极高的艺术审美。

十大经典古四合院,史上最全古典四合院解析

十大经典古四合院,史上最全古典四合院解析

十大经典古四合院,史上最全古典四合院解析

十大经典古四合院,史上最全古典四合院解析

十大经典古四合院,史上最全古典四合院解析

雕花的窗户、斗拱、飞檐、影壁、雀替丨北京四合院

四合院的雕饰多是吉利、祥瑞、祈福的图案,有蝙蝠、寿字组成的“福寿双全”;以月季画寓意“四季平安”;松竹梅岁寒三友等,人们对美好生活的向往全刻镂在图案上。

十大经典古四合院,史上最全古典四合院解析

影壁丨北京四合院

而嵌于门替、门头上的吉祥语,附在抱柱上的楹联,以及悬挂在室内的书画佳作,更是集贤哲之古训,采古今之名句,或颂山川之美,或铭处事之学,或咏鸿鹄之志,风雅备至,充满浓郁的文化气息。

十大经典古四合院,史上最全古典四合院解析

大门丨北京四合院

大门外的小门墩也颇为可爱。门墩主要以箱形和抱鼓形居多, 还有狮子形, 多角柱形, 水瓶形门墩等等。老百姓之所以喜欢这可爱迷你的门墩,主因它是祥瑞之物,是喜庆活泼的象征。

十大经典古四合院,史上最全古典四合院解析

门墩丨北京四合院

大多数的四合院是在门框两侧放置一对小石狮子, 尽管它们没有大户人家门前那对石狮高大气派, 但却雕刻得活灵活现, 十分精美, 或蹲或站, 或伏或仰, 犹如一对保护神, 看守宅门。

放置门墩一是有辟邪驱恶、看守门户的用意。二是有的门墩儿上呈卧姿一大一小两只狮子, 狮谐音“世”,大狮子小狮子取“世世同居”之意, 且小狮子卧于大狮子胸前, 又有“父慈子孝” 、“鹭港美满”之意。

十大经典古四合院,史上最全古典四合院解析

门墩丨北京四合院

十大经典古四合院,史上最全古典四合院解析

门墩丨北京四合院

抱鼓型门墩儿, 抱鼓寓意是通报来客之鼓, 客来客往显示出主人的人缘儿好, 家业兴旺。 而箱子型门墩多刻有蝠(福)、鹿(禄)、桃(寿)、喜鹊(喜)、穗 (岁)、瓶 (平)、鹌 (安)、羊(三阳开泰)和钱等图案 , 都是吉祥之物, 表现人们对幸福美满生活的向往和对美好事物的追求与渴望。

十大经典古四合院,史上最全古典四合院解析

抱鼓型门墩儿丨北京四合院

为什么越来越多的人想要居住在四合院里?

——因为越来越多的人开始懂得生活!

十大经典古四合院,史上最全古典四合院解析

北京四合院

四合院风格独立,自成一派。房屋朝向合理,冬暖夏凉。特别是使用北京源亨EPS模块建四合院,在冬天室外零下的情况下,仅通过阳光的照射,就算不开取暖设备,室内也能保持15~16℃的温暖;在炎热的夏季,只要避免阳光直接照射入室内,就算室外再炎热,即使屋里不开空调,也能保持23℃左右的室温,凉爽舒适。

十大经典古四合院,史上最全古典四合院解析

北京四合院

十大经典古四合院,史上最全古典四合院解析

北京四合院

四合院小院环境清幽,走到院内,随处可见的绿色植物是生机勃勃的所在,园中植树种草,花木扶疏,幽雅宜人。四面房门游廊连接,起居方便都开向院落,一家人和美相亲,白日里享受其乐融融,夜晚感受岁月静好。人间的清净与热闹,都淋漓尽致地展现在这温情的小院里。

十大经典古四合院,史上最全古典四合院解析

北京四合院

院中植芬芳的海棠,置累累的实录盆景,以大缸养上几条金鱼。简单别致的生活别有一番滋味。“天棚、鱼缸、石榴树。老爷、小姐、胖丫头”,这俗语就是四合院的精彩写照。而这种惬意雅致的情怀也延伸至如今的中式元素中,成为独有的中式风格。

十大经典古四合院,史上最全古典四合院解析

北京四合院

十大经典古四合院,史上最全古典四合院解析

北京四合院

盛夏,关上了院门就拒绝了所有燥热,枝繁叶茂的树叶伸展枝叶投下凉荫,阳光透过树叶,投下斑驳光影,绿叶也把暑气过滤出习习凉风。

遐想着午后,卧在靠椅上闭目养神,手摇折扇,不时端起小茶壶啜饮小口。阳光暖暖地垂下来,白云缓缓移动,安静地似乎能听见大鱼缸中鱼儿游动的声音……这一幅悠然的画面,曾是四合院里最常见的惬意情境。

十大经典古四合院,史上最全古典四合院解析

北京四合院

十大经典古四合院,史上最全古典四合院解析

北京四合院

随着家庭结构和社会观念的改变,传统四合院的宜居性受到了巨大的挑战。为了适应更多现代人的居住需要。源亨的设计师们将四合院重新演绎,不仅囊括了传统的四合院元素,而且更加符合现代人的生活方式。让人不得不爱上它。

十大经典古四合院,史上最全古典四合院解析

北京四合院

十大经典古四合院,史上最全古典四合院解析

十大经典古四合院,史上最全古典四合院解析

北京四合院

对于咱们中国人来说,四合院才是真正的“豪宅”。因为它不仅仅是我们的住所,更重要的是四合院所凝聚的丰富的历史文化内涵。

十大经典古四合院,史上最全古典四合院解析

设计图丨北京四合院

十大经典古四合院,史上最全古典四合院解析

设计图丨北京四合院

“抚琴听流水,闲坐观春秋”,再繁华的城市也敌不过四合院的细腻;再华丽的乐章也演绎不出居住在这四合院的幸福。

十大经典古四合院,史上最全古典四合院解析

北京四合院

“春有百花秋有月,夏有凉风冬有雪;若无闲事挂心头,便是人间好时节。”远离城市的浮华与喧嚣,将一切的不美好置之度外。在这古色古韵的四合大院内,享受生活。

十大经典古四合院,史上最全古典四合院解析

设计图丨北京源亨建设

十大经典古四合院,史上最全古典四合院解析

设计图丨北京源亨建设

源亨设计师将传统四合院的元素与现代人生活方式相结合,打造专属于您的四合院生活!

十大经典古四合院,史上最全古典四合院解析

十大经典古四合院,史上最全古典四合院解析

十大经典古四合院,史上最全古典四合院解析

十大经典古四合院,史上最全古典四合院解析

十大经典古四合院,史上最全古典四合院解析

十大经典古四合院,史上最全古典四合院解析

设计图丨北京源亨建设

使用源亨EPS模块建只属于自己的四合院也更加节能、舒适、安全、便捷。

冬季的室温与同等条件的砖混建筑相比可提高7-11度,25CM厚源亨EPS模块复合墙体相当于460CM的红砖厚度墙体的保温效果。墙体整体达到75%节能标准要求,比普通建筑节能92%!

十大经典古四合院,史上最全古典四合院解析

十大经典古四合院,史上最全古典四合院解析

本文关键词:古典建筑四合院,十大经典古四合院图片大全,十大经典古四合院小说,中国古典四合院,十大经典古四合院图片。这就是关于《十大经典古四合院,史上最全古典四合院解析》的所有内容,希望对您能有所帮助!

本文链接:https://bk.89qw.com/a-845595

最近发表
网站分类