百科生活 投稿
关于【化粪池做法与尺寸图】,农村化粪池两格建造全过程,今天小编给您分享一下,如果对您有所帮助别忘了关注本站哦。
- 内容导航:
- 1、化粪池做法与尺寸图:农村自建房排污成了大问题?教施工队建个化粪池,1000块就能搞定
- 2、化粪池做法与尺寸图,农村化粪池两格建造全过程
1、化粪池做法与尺寸图:农村自建房排污成了大问题?教施工队建个化粪池,1000块就能搞定
上次跟大家详细介绍了农村别墅排水、排污管道要如何设置,化粪池要如何清理,以及如何根据自己家庭人口数量选择合适大小的化粪池等相关问题。
但大家都说对化粪池具体做法介绍的不够详细,农村别墅施工图纸里面关于化粪池的施工图纸也不太看得懂。
今天我们就结合施工图纸(以二格式化粪池为例),详细的为大家介绍农村别墅化粪池的做法。
化粪池平面图:
在做化粪池时,大家可以根据自家房子和化粪池的相对位置关系,从a、b、c三个方向中合理选择设置化粪池的进水管;根据最终经处理后的污水的排放位置,从d、e、f三个方向中合理选择设置化粪池出水管。
敲重点:
如果粪便立管不能兼做化粪池的透气管时,需另外设置专门的排气管。
化粪池一定要设置排气管。
如果化粪池远离房子,或者位于下风方向,可以就将排气管设置在化粪池之上。若是直接将排气管设置是化粪池之上排出的臭气会对家居环境造成污染,那就需要采用第二种方案,铺设专门的排气管。
二格式化粪池的第一池大小要保证污水(粪便)能在这里驻留30天以上,对应不同型号化粪池,具体尺寸如下表。
因为宅基地等实际场所限制,化粪池实际施工长、宽尺寸可以做适当调整,但是实际容积不能小于所选型号化粪池的有效容积。
化粪池的施工:
化粪池由底板、池壁、盖板、管道等4部分组成,施工要点如下:
1、挖基坑。选定化粪池位置后根据要建化粪池的大小挖好基坑,平整好坑底,清理好池外壁。
2、化粪池底板施工
化粪池底板由下到上依次为素混凝土垫层、钢筋混凝土底板、水泥砂浆抹面层。
注意:如果是地下水丰富的地方,在素混凝土垫层下面要先做一层卵石、碎石垫层,如果没地下水,则直接将基坑底素土夯实就可以了。
化粪池垫层施工:底板垫层用c10混凝土,垫层厚度做100mm。
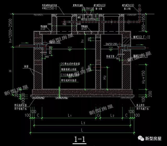
化粪池横切面示意图:
化粪池底板:化粪池底板用c25混凝土浇筑,厚度为300mm,配双层双向@150方格钢筋网。农村自建房一般选用1号或者2号化粪池就能满足使用需求,配直径为10的带肋钢筋。
如果选用更大型号的化粪池,配筋上3号化粪池底板采用直径12带肋钢筋,4号、5号化粪池采用植筋14的带肋钢筋。
水泥砂浆抹面层:池底抹面层是在化粪池砌筑完成后,跟化粪池内壁抹面一起施工,化粪池内外壁、池底抹面层都需使用防水砂浆(1:2内参5%防水剂的)。
3、化粪池池壁施工
化粪池的池壁由砖砌体、内外抹面层、圈梁三部分组成。
砖砌体:砖砌体大家根据实际情况选用合适的砖即可,采用M10.0水泥砂浆砌筑。
距化粪池基坑底部1750mm距离处设置进出水管管口,管罩垫层用c10混凝土做80mm厚度。
抹面层:池壁内外用防水砂浆抹面厚度一样是20mm,内池壁与内池壁、内池壁与池底阴角处抹面需做成45度斜面,厚度为50mm。
而池壁外抹面层还需要刷2道防水涂料。
圈梁
按照规范的做法,化粪池还应当设置中部圈梁、顶部圈梁两层圈梁,其中中部圈梁设置在距化粪池底板1000mm高度。
3、管道施工
管道包括化粪池外部管道和化粪池内部管道。
化粪池外部横向管道需保证不小于0.026的坡度,管道不能出现直角拐弯,需设置成2个45度角。
化粪池内部需设置过粪管,一池和二池(二池和三池)之间过粪管采用长度为70-75cm,内径为15cm的PVC管。
4、盖板
化粪池盖板有现浇盖板和预制盖板两种,大家可哪种方便选用哪种。但是都需要根据上面的承重情况设置配筋。
其他化粪池
除了现场施工建化粪池,大家也可以选择成品玻璃钢钢化粪池。一个有效容积2立方的玻璃钢化粪池,价格在1000元左右,加上挖基坑、安装填埋等施工成本,总的费用在1500~2000元左右。
除了玻璃钢化粪池,还有水泥预制化粪池。一个有效容积在2立方的水泥预制化粪池,总体积在接近4个立方,价格在500元每立方左右,购买价格也是在2000元左右,一般卖家包安装。
但是这种化粪池存在一定的局限:因为本身质量大,运输成本高,安装也需要用到起吊设备,很多生产水泥预制化粪池的厂家都只做方圆百公里左右范围内的生意。
综合来说,红砖砌筑化粪池是最简单、最经济的方式,而且不会受到地域限制,可以根据建筑及其周围情况灵活变通,是最适合农村自建房的形式。
而产品玻璃钢化粪池,安装快捷,也是很不错的选择。
农村化粪池的做法其实很简单,朋友们你们都学会了吗?赶紧教给施工队吧!
延伸阅读:化粪池原来越大越不好,清理越勤快反而不干净?农村盖房该咋选?
2、化粪池做法与尺寸图,农村化粪池两格建造全过程
农村化粪池两格建造全过程?农村自建房最经典的砖砌三格式化粪池,同样也是比较经典的标准做法,你学到了吗?,今天小编就来说说关于农村化粪池两格建造全过程?下面更多详细答案一起来看看吧!

农村化粪池两格建造全过程
农村自建房最经典的砖砌三格式化粪池,同样也是比较经典的标准做法,你学到了吗?
现在的农村自建房,早已经不是过去那种破旧的简易瓦房了,慢慢地从瓦顶的平房,到了现在的楼房,然后又变成了一栋栋精致漂亮的农村小别墅。同样的农村自建房的厕所也完全变了样,从过去的茅厕到现在装修得干净舒适的水冲卫生间,也是经历了一场最彻底的改变。
紧跟着化粪池也一起出现在大家眼前,在大家的日常生活中,见到的化粪池有很多种,包括塑料钢成品化粪池、钢筋混凝土预制化粪池,当然还有农村自建房采用最多的三格式砖砌化粪池,很多人刚刚接触,还真的不了解到底砖砌化粪池怎么样做才能发挥出最完美的性能,那么在这里我就跟大家详细的解释一下。
咱们首先来了解一下农村自建房化粪池的工作原理。
化粪池对卫生间排污不但有一个收集储藏功能,而且能够利用厌氧进行发酵,同时利用粪便以及其他混合液不同的比重,由3个不同的池子进行分层次的沉淀分解。不但能够对新鲜粪便进行充分的腐熟,而且能杀死粪便中绝大部分的病菌和寄生虫卵,到了最后变成了我们农村最需要的优质农家肥。
农村自建房的砖砌三格式化粪池的大小怎么样确定。
农村自建房的化粪池大小,是根据使用的总人数,以及每个人每日产生的污水定额,还有我们需要污水在化粪池中停留的多少时间等等来确定的。
当然,我们农村自建房的化粪池并不需要这么复杂,我们可以直接根据使用人数和所需要容积的大小,去化粪池图集里查询自己所需要的化粪池尺寸。一般农村家庭只需要容积为2立方米的化粪池规格就完全足够了,具体尺寸大家可以参考下图。
农村自建房三格式砖砌化粪池的技术要点。
1,三格的每一格不同大小比例。
化粪池每一格的大小,都跟着每一格的具体功能而有所区别。第一池因为有个初步储藏分解,所以空间要求也比较大,而第三池因为有个沉淀排出功能,所以也是最大的一个池子,只有第二个,因为只是有个过渡的进一步分解作用,所以这个池是最小的一个。具体三格池子的比例为2:1:3,我们可以根据化粪池的尺寸,用这个比例得出每一个池的准确大小。
2,关系到化粪池功能成败的过粪管连结。
可以说我们农村自建房的化粪池,最关键的一个技术要点,就是三格之间的过粪管连结方法。连结的不好,化粪池直接失去了沉淀分解的作用,变成了一个直排池,这样就完全失去了化粪池本身的功能。
我们先来看看下图,了解一下为什么第一池到第二池连结管底部只有30cm多一点。因为第一池都是新鲜粪便,比重较水轻,为了能够让粪便在第一池停留足够的时间,充分的分解,我们就得给上浮的粪便留出足够的空间。
而第一池的底部一般都是沉淀下来的泥沙和无法分解的污物,所以我们也不能把管口留的太低。也只有沉淀物和上浮物的中间,才是排放进第二池的最佳位置。
现在来看看为什么第二池到第三池的连结管,管低的位置到了最中间。前面我们自己说过,第二池是进一步分解的过渡池,在这里上浮物和沉淀物相比于第一池已经完全减少,混合基本均匀,所以中间的混合液才是排放到第三池的最佳位置。
3,决定化粪池形成对流的进出管高低差。
其实大家可以从上面图片中看到,农村自建房的化粪池进管和排出管的高度,有一个很明显的差距。这样做的原因,第一是给化粪池留出一个足够液面空间,第二就是能够保证卫生间的排污管可以很通畅的排入化粪池,而化粪池的污水又能够及时排出化粪池。这样能够保证化粪池有一个非常有利的循环过程。
总的来说,农村自建房的化粪池,关键的技术要点,不是确定化粪池的大小,也不是化粪池的砖墙砌法,主要的还是要了解化粪池每一个内部结构的功能和特点。也只有了解了化粪池的工作原理,我们才能充分利用每一个原理,把化粪池的功能做到极致。
本文关键词:四格化粪池做法与尺寸图,正规化粪池做法与尺寸图,卫生间化粪池做法与尺寸图,砖砌化粪池做法与尺寸图,农村化粪池做法与尺寸图砖砌。这就是关于《化粪池做法与尺寸图,农村化粪池两格建造全过程(教施工队建个化粪池)》的所有内容,希望对您能有所帮助!
- 最近发表