手机版

百科生活 投稿

长沙黄兴路步行街,长沙黄兴路步行街人山人海(长沙“黄兴路步行街”提质改造方案效果图曝光)

百科 2026-02-07 08:58:09 投稿 阅读:5892次

关于【长沙黄兴路步行街】,长沙黄兴路步行街人山人海,今天小编给您分享一下,如果对您有所帮助别忘了关注本站哦。

  • 内容导航:
  • 1、长沙黄兴路步行街:高攀不起!长沙“黄兴路步行街”提质改造方案效果图曝光
  • 2、长沙黄兴路步行街,长沙黄兴路步行街人山人海

1、长沙黄兴路步行街:高攀不起!长沙“黄兴路步行街”提质改造方案效果图曝光

黄兴路步行街是长沙市最繁华的地段之一,是一条于2002年修缮竣工的步行商业街,期间经过多次提质改造。步行街北起芙蓉区司门口,南到南门口,全长838米,街面宽23-26米,包括近万平方米的黄兴广场,商业总面积25万平方米,是集购物、休闲、娱乐、餐饮、文化及旅游等多项功能于一体的综合性场所。

长沙黄兴路步行街,长沙黄兴路步行街人山人海(长沙“黄兴路步行街”提质改造方案效果图曝光)

▲步行街实景

步行街分为内街和外街,内街又有三层。商铺众多,品牌齐全。除各种常规服装店、饰品店以外,这里还汇集了全国各地的小吃美食,旁边的坡子街更是长沙特色小吃的齐聚之处,有长沙人民耳熟能详的火宫殿、双燕楼、红梅冷饮等,数不胜数。

长沙黄兴路步行街,长沙黄兴路步行街人山人海(长沙“黄兴路步行街”提质改造方案效果图曝光)

▲步行街实景

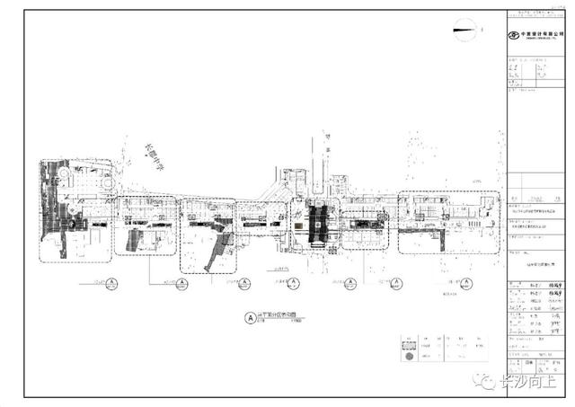
由中誉设计有限公司设计的黄 兴 南 路 步 行 街 提 质 改 造 工 程( 一 期)初步设计稿曝光。

长沙黄兴路步行街,长沙黄兴路步行街人山人海(长沙“黄兴路步行街”提质改造方案效果图曝光)

本项目通过对黄兴南路步行商业街改造提升,优化了现状商业街 道路整体空间结构,美化道路沿线环境,为消费者提供一个宽敞畅通、文化深厚、 服务到位、美观舒适的商业环境。本次黄兴南路步行街改造提升以“千年湖湘、烟火长沙”的理念进行设计, 以长沙丰富的历史文化底蕴为基础,着力打造长沙“新烟火”步行街。

长沙黄兴路步行街,长沙黄兴路步行街人山人海(长沙“黄兴路步行街”提质改造方案效果图曝光)

▲改造范围

本次改造重点保护历史文化建筑、保留具有时代性和集体记忆的特征,沿线 整治建筑立面及店招,改善景观绿化及亮化,提升整体风貌品质。改造重要景观节点包括南门口、小古道巷、大古道巷、坡子街入口、中心广 场及司门口节点打造,全线坐凳及垃圾桶等基础设施进行更新改造等,来提升风 貌品质,彰显“湖湘商街”魅力。

长沙黄兴路步行街,长沙黄兴路步行街人山人海(长沙“黄兴路步行街”提质改造方案效果图曝光)

▲改造效果图

针对现状存在问题对南门口进行提质改造:1)对于现状外立面杂乱、店招不一问题,本次改造对南门口沿西湖路、 城南西路一侧建筑立面,及司门口八角亭下方建筑立面进行立面恢复;2)星光大道建设长度约 50 米,铺装面积约 540.6 平方米,包括两个古城 楼主题雕塑及一个圆形水景。3) 对于现状自行车及其他构筑物杂乱问题,本次改造考虑优化现状散乱情 况,增加铝板造型花池,增加休闲功能和景观美化。4) 主路口处设置不锈钢可升降车档,地面增设造型艺术树池。5) 地面增加地埋灯亮化,道路西侧设置造型花池及坐凳。

长沙黄兴路步行街,长沙黄兴路步行街人山人海(长沙“黄兴路步行街”提质改造方案效果图曝光)

中心广场位于黄兴南路步行街于人民西路交汇处,处于黄兴南路步行街中部, 广场北侧为黄兴广场地铁出入口,人流量较大。改造内容包括:① 西侧打造夜间管理办公室及直播间小建筑,增设 4 个可升降汽车展台;② 东侧舞台立面改造,降低舞台高度;③ 南侧增加老长沙地面浮雕,提高广场文化气息。

长沙黄兴路步行街,长沙黄兴路步行街人山人海(长沙“黄兴路步行街”提质改造方案效果图曝光)

坡子街位于黄兴南路步行街西侧,入口处位于解放西路以南约 150 米处。现 状坡子街入口处无导视标识,不利于游客寻找定位。本次提质改造主要考虑在入口处增设标志牌,加强其标志性;另外增加 LED天幕,提升趣味性及吸引力。

长沙黄兴路步行街,长沙黄兴路步行街人山人海(长沙“黄兴路步行街”提质改造方案效果图曝光)

司门口位于黄兴南路步行街与解放西路交汇处,入口处设置有黄兴铜像及八 角亭。司门口现状存在问题主要是招牌较为杂乱,八角亭亮化不足,铜像无亮化 照明。本次提质改造主要考虑:① 八角亭下方建筑立面设置显示屏,展现老长沙文化底蕴;② 对黄兴铜像进行亮化,增加造型花池;③ 主路口处设置不锈钢可升降车档,阻挡机动车进入。

长沙黄兴路步行街,长沙黄兴路步行街人山人海(长沙“黄兴路步行街”提质改造方案效果图曝光)

2022年4月21日,在长沙市公共资源交易中心发布了《黄兴南路步行街提质改造项目工程总承包招标公告》。

项目名称黄兴南路步行街提质改造项目工程总承包,项目审批、核准或备案机关名称长沙市天心区发展和改革局批文名称及编号长沙市天心区发展和改革局关于黄兴南路步行街提质改造项目的批复( 天发改〔2021〕98号),项目业主为长沙市天心区城市管理和综合执法局,主要建设内容黄兴南路步行街提质改造项目,项目总投资为约1744.20万元,资金来源和落实情况区财政投资,已落实。

招标项目或标段(以下简称:招标项目)名称:黄兴南路步行街提质改造项目工程总承包;

长沙黄兴路步行街,长沙黄兴路步行街人山人海(长沙“黄兴路步行街”提质改造方案效果图曝光)

项目基本情况:本项目拟对黄兴南路(司门口-南门口)长约838米路段进行提质改造,改造范围约32367平米,主要建设内容包括南门口、小古道巷、大古道巷、中心广场及坡子街入口等重要节点改造、景观绿化提质、照明亮化等;(具体参照发包人提供的初步设计图纸)。

长沙黄兴路步行街,长沙黄兴路步行街人山人海(长沙“黄兴路步行街”提质改造方案效果图曝光)

1.3 工期要求:总工期120日历天(开工日期以发包人或发包人委托监理机构发布的开工令为准),其中设计工期 30日历天,施工工期90日历天。

长沙黄兴路步行街,长沙黄兴路步行街人山人海(长沙“黄兴路步行街”提质改造方案效果图曝光)

1.4 招标范围:黄兴南路步行街提质改造项目采用工程总承包模式,从施工图设计阶段、施工准备阶段、施工阶段、竣工验收阶段至缺陷责任期阶段的设计、施工全过程,均属于本项目承发包的范围。甲方有权根据项目的实际情况调整承发包范围,其中设计、采购、施工招标范围具体内容包括:设计招标范围主要包括:包括本项目施工图设计及施工现场设计服务、参与竣工验收等与设计相关的全部工作;

长沙黄兴路步行街,长沙黄兴路步行街人山人海(长沙“黄兴路步行街”提质改造方案效果图曝光)

采购招标范围主要包括:经评审通过后的设计施工图范围内的全部工程材料、设备的采购(招标人已采购设备和其它设备除外)及设备安装调试、移交及质保期内的保修服务等;施工招标范围主要包括:包括本项目施工全部内容,具体以建设单位结合本项目现场实际情况作出的要求和审定后的施工图文件为准。

部分图文素材来源于中誉设计有限公司,如有侵权请联系删除。

项目资料整理不易,请勿一键复制搬运.

2、长沙黄兴路步行街,长沙黄兴路步行街人山人海

我常怀念旧时过年。怀念那岁末,集市上满眼的红红绿绿,各种年画争奇斗艳;怀念那街巷,长长的红灯笼连成一串,高高低低的萝卜钱在风中起舞;怀念除夕午夜,奶奶还在,下好水饺供着灶王爷爷,窗外的鞭炮声不绝于耳;更怀念爸爸肩头的风景,那踩着高跷的孙猴子,戏着明珠的游龙,人山人海的庙会......

我常常怀念,怀念至此,竟生梦境,梦境之中,是谁混乱了时空,交错了记忆,低声轻诉......

1

梦境之一:天真的孩童

长沙黄兴路步行街,长沙黄兴路步行街人山人海(长沙“黄兴路步行街”提质改造方案效果图曝光)

从前的我,有人疼有人爱,天真活泼。

如今的我,有家似无家,无人疼爱,失落抑郁,再无微笑。

“我去看看妹妹!”娘娘说着,转入内室,“妹妹喜得贵子,姐姐一听这好消息立马来府上道喜了,只是妹妹你用了何等良方?咱俩一起抓药调理,为何我这肚子就是迟迟不见动静?”说着轻叹一声,自己把手放在小腹上揉了揉。

“姐姐你靠过来,待我说与你听。”

.......

回宫后,娘娘派人传来苏画师,“苏画师可否为我画一幅求子图?”

翌日,皇后看着这求子图心想,我毕竟是一国之后,将这求子图挂于室内,传出去,岂不惹人笑话?将近年末,不如稍作改动,变些图样,一来求子,二来也可祈求物阜民丰。

几经修改,将我画作这般模样。

头扎朝天髻,身着罗绫袄,怀抱红鲤鱼,立身莲叶旁。

我是年娃,只是现在我的父母家人你在哪里?不要只留我一人,守着一扇门。

长沙黄兴路步行街,长沙黄兴路步行街人山人海(长沙“黄兴路步行街”提质改造方案效果图曝光)

2

梦境之二:热血的青年

长沙黄兴路步行街,长沙黄兴路步行街人山人海(长沙“黄兴路步行街”提质改造方案效果图曝光)

从前的我,一腔热血,满腹才情,生为人杰,死为鬼雄。

如今的我,才情依旧却敌不过热血冷却,为鬼为雄独不能活在当下。

我是谁?我是钟馗。

我是这大殿中游离了几十年的孤魂,只为等陛下一声召唤。

这么多年过去了,不知还有没有人记得我?当年那个才高八斗,学富五车的落第状元。

士可杀不可辱,如果有人当众羞辱你的相貌,蔑视你的才华你会怎样?也许重来一次,我相信我依然是我。

正因为如此,我是一个有尊严的鬼。凛然一身正气,无所不惧。

长沙黄兴路步行街,长沙黄兴路步行街人山人海(长沙“黄兴路步行街”提质改造方案效果图曝光)

今夜黑云蔽月,应有小鬼出没。待我捉鬼食之,以慰腹中饥肠。

一阵香气袭来,定是那小鬼偷了东西,恍然间还有一人,那人是谁?仔细一瞧,竟是陛下,“陛下玉体,怎可亲自捉鬼,今臣誓与陛下除尽天下之妖邪。”

生前没有来得及为国效力,辜负了十年寒窗,一身才华。死后势要除尽天下妖邪,来保长治久安,也可了我一生夙愿。

从前的百姓喜欢我,我有求必应,“赐福镇宅”“中榜得魁”,百姓敬我刚正不阿,我为百姓驱鬼辟邪。只是如今怕是再无人欣赏我这满腔热血,“不争不抢不求输赢”“人生苦短,一切随缘”。

我是钟馗,瀚海阑干,往事逐风,我在阴间活了千年,却独不能活在“当下”。

长沙黄兴路步行街,长沙黄兴路步行街人山人海(长沙“黄兴路步行街”提质改造方案效果图曝光)

3

梦境之三:沧桑的老者

长沙黄兴路步行街,长沙黄兴路步行街人山人海(长沙“黄兴路步行街”提质改造方案效果图曝光)

从前的我们, 等着召唤,带着期望,走街串巷,为你而来。

如今的我们,热心等不来召唤,时间换不来期待,慢慢淡去换来日渐忘记。

我们是谁?我叫神荼,他叫郁垒。

“郁垒,活了快五千多岁了,还记得吧?从前的人们把我们制成画,贴在大门两旁。其实我们俩长得可比那大门上面贴的威风多了。”

“是啊,我听说有几句话这样形容咱俩‘身长五丈许,头似五麦斗,眼似八铜铃’说的到还蛮像。没想到我们俩在这风光旖旎的度朔山一住就是这么多年。”

“哈哈!可知度朔山上风光好,千年桃树结仙桃。四月老桃树桃花一开,花瓣飘飞三千里,满山皆是桃色,树顶上金鸡每天打鸣报晓。老桃树历经千年自成仙树,秋来,结满仙桃无数,更是引来恶鬼无数。”

“嗯,就是黄帝知道了这事后,才命我俩在此捉鬼,我们俩长得凶神恶煞,那是恶鬼见了都害怕呀,想我俩每人一根缚鬼绳,天黑之后就去捉鬼,等抓住之后往那后山一丢,喂给猛虎吃,吓得那那鬼呀,后来听到虎啸都要抖三抖啊。度朔山的鬼渐渐少了,咱俩的名声却越来越响。”

长沙黄兴路步行街,长沙黄兴路步行街人山人海(长沙“黄兴路步行街”提质改造方案效果图曝光)

“可不是呢,就是因为名声太大,传到了人间。得人间百姓爱戴,将我二人画于纸上,张贴门两旁,我俩就此串门而至,仅凭门上那一双召唤,来人间捉鬼,一捉几千年。只是几经沧桑,从前的鬼百姓已不怕,对我们也早就冷淡下来,如今我们没法串门,更没法捉鬼......”

“哼,我们是没法捉鬼喽!可是我听说现在人间的“鬼”比夜里的猛鬼还可怕,真是苦了一众善良百姓......”

我是神荼,他是郁垒。如今的我们,守着度朔仙山,望着千年桃树,只为等你一朝开门。

长沙黄兴路步行街,长沙黄兴路步行街人山人海(长沙“黄兴路步行街”提质改造方案效果图曝光)

“吱呦...”突然间一声门响,将我打回现实。梦醒了,天亮了。穿衣,起床,洗漱,吃饭。我打开电脑,浏览着一幅幅年画,望着那一张张渴望与我们相逢的面孔...

长沙黄兴路步行街,长沙黄兴路步行街人山人海(长沙“黄兴路步行街”提质改造方案效果图曝光)

长沙黄兴路步行街,长沙黄兴路步行街人山人海(长沙“黄兴路步行街”提质改造方案效果图曝光)

长沙黄兴路步行街,长沙黄兴路步行街人山人海(长沙“黄兴路步行街”提质改造方案效果图曝光)

长沙黄兴路步行街,长沙黄兴路步行街人山人海(长沙“黄兴路步行街”提质改造方案效果图曝光)

长沙黄兴路步行街,长沙黄兴路步行街人山人海(长沙“黄兴路步行街”提质改造方案效果图曝光)

长沙黄兴路步行街,长沙黄兴路步行街人山人海(长沙“黄兴路步行街”提质改造方案效果图曝光)

长沙黄兴路步行街,长沙黄兴路步行街人山人海(长沙“黄兴路步行街”提质改造方案效果图曝光)

长沙黄兴路步行街,长沙黄兴路步行街人山人海(长沙“黄兴路步行街”提质改造方案效果图曝光)

长沙黄兴路步行街,长沙黄兴路步行街人山人海(长沙“黄兴路步行街”提质改造方案效果图曝光)

长沙黄兴路步行街,长沙黄兴路步行街人山人海(长沙“黄兴路步行街”提质改造方案效果图曝光)

本文关键词:长沙黄兴路步行街美食,长沙黄兴路步行街和坡子街哪个好玩,长沙黄兴路步行街坐地铁几号线,长沙黄兴路步行街离五一广场多远,长沙黄兴路步行街在哪个区。这就是关于《长沙黄兴路步行街,长沙黄兴路步行街人山人海(长沙“黄兴路步行街”提质改造方案效果图曝光)》的所有内容,希望对您能有所帮助!

本文链接:https://bk.89qw.com/a-870824

最近发表
网站分类