手机版

百科生活 投稿

转轮热回收除湿机选型参数,泰力信TLX-Z26000E叠式转轮除湿机在化工行业的应用

百科 2026-02-16 23:11:54 投稿 阅读:5714次

关于【转轮热回收除湿机选型参数】,今天小编给您分享一下,如果对您有所帮助别忘了关注本站哦。

  • 内容导航:
  • 1、转轮热回收除湿机选型参数:泰力信TLX-Z26000E叠式转轮除湿机在化工行业的应用
  • 2、转轮热回收除湿机选型参数,转轮热回收和除湿应用

1、转轮热回收除湿机选型参数:泰力信TLX-Z26000E叠式转轮除湿机在化工行业的应用

众所周知,化学材料中有些化合物与水接触会产生化合物反应。因此,化工行业在生产过程中,化学材料的生产和储存需要使用工业除湿机来保持室内空气干燥,以确保产品不会被水腐蚀和损坏,避免不必要的经济损失。

转轮热回收除湿机选型参数,泰力信TLX-Z26000E叠式转轮除湿机在化工行业的应用

化工厂

一、化学材料在生产与储存过程中湿度过高的影响

化学材料中这些化合物与水接触会产生化合物反应:在聚乙烯生产制造过程中,需检测乙烯原料气体的湿度,水会使铂催化剂中毒,只有控制气体CO²的适当湿度,才能保证生产的顺利进行;氯化物如漂粉的生产过程中,需严格控制载气的湿度值,否则其会与水生成废酸;压缩气体的生产过程中,需对气体进行预除湿处理,以防压缩过程中过饱和水汽的凝聚;液化气体前应对气体进行充分的除湿,以防水汽冷凝引起阀门和部件的堵塞;液体SO²的生产和储存过程中,如若不对水分进行充分地除湿,SO²与水作用可生成带有强腐蚀性的亚硫酸和硫酸;天然气和液化石油气的输送和储存中,气体中含水量过高时,在低于0 ℃时冻结,高于0 ℃时形成凝固水合物;在尼龙和聚酯的聚合过程及其纤维的纺织过程中,湿度控制不好,会降低生产效率和影响产品质量。

转轮热回收除湿机选型参数,泰力信TLX-Z26000E叠式转轮除湿机在化工行业的应用

化学材料对湿度有着严格要求

粉末状化工原料在高温条件下生产出来,需要一定的保护气体进行输送,气体在管道内与粉末状原料接触,原料粉末会急速冷却。此时若气体绝对含湿量过高,会造成粉末吸潮结块,粘黏在输送帯或是输送管内壁,堵塞管路,影响生产进度。长期下去,还会发霉影响化工品质量。

除此之外,化工行业胶水一般都有一定的吸湿性,如果生产过程中空气太潮湿,胶水就会吸收空气中的水分,所以化工行业生产胶水的过程中须严格控制空气的温湿度,让生产出来的胶水符合使用要求。

二、如何控制化工材料的湿度

化工行业的五氧化二磷,是一种常用作气体和液体的干燥剂;它本身极易溶于水,可想而知,当五氧化二磷包装间碰到湿度过高的空气会产生怎样的现象。


因此,化工领域有许多地方需要使用工业除湿机来控制湿度,保持空气的干燥。只有这样,一些易受潮的材料才能不被吸水和变质,生产设备和一些金属配件也能得到很好的保存。

三、化工行业转轮除湿方案

泰力信为化工行业量身打造的除湿装置TLX-Z26000E叠式转轮除湿机,可提供低温低湿的保护气体,保障气体输送过程中降温和干燥,帮助企业提高自动化生产、改进生产工艺,大大提高生产效率,为企业带来了巨大经济效益,在化工行业应用十分广泛。

转轮热回收除湿机选型参数,泰力信TLX-Z26000E叠式转轮除湿机在化工行业的应用

泰力信TLX-Z26000E叠式转轮除湿机

1、采用高效、稳定的硅胶吸附技术,出风稳定,适合全年连续运行;

2、核心选用瑞典Proflute进口超级硅胶钛合金转轮,转轮寿命8年以上;

3、相对湿度控制精度可达±3%;

4、再生加热器选用安全可靠的PTC陶瓷电加热器,安全高效;

5、设备自带多重保护功能,安全可靠性高,可处理空气相对湿度最低可达10%以下;

6、机组箱体采用全不锈钢制作,美观、耐用;

7、泰力信转轮除湿机可根据自身特殊的环境要求定制转轮除湿机。

(End)

2、转轮热回收除湿机选型参数,转轮热回收和除湿应用

全热=显热(温度负荷) 潜热(湿度负荷)。

新风热回收节能的关键所在,要采用全热回收,尤其要强调潜热回收。

中国的气候特点是新风中潜热负荷占绝大部分(70%以上),而显热负荷很小。如果只能回收显热,即使其显热效率有100%,全热效率也不到30%。

全热回收转轮干燥剂:氧化铝,硅胶,分子筛。

干燥剂微孔直径的差异:

转轮热回收除湿机选型参数,泰力信TLX-Z26000E叠式转轮除湿机在化工行业的应用

A-3埃分子筛,B-4埃分子筛,C-5埃分子筛,D-10埃分子筛,E–活性铝,F–硅胶

全热回收转轮专用分子筛:

分子筛结构具有统一的微孔尺寸,不可能吸附大于微孔尺寸的颗粒。

转轮热回收除湿机选型参数,泰力信TLX-Z26000E叠式转轮除湿机在化工行业的应用

分子筛结构的简化图,标明了统一的吸附结构。

全热回收转轮的工作原理、选型与计算分析:

全热转轮的基本工作原理:

1.冷/热能量交换(如:80%效率)总是回到它来的一侧

转轮热回收除湿机选型参数,泰力信TLX-Z26000E叠式转轮除湿机在化工行业的应用

2.水汽或干空气(如80%)通常会回到它们原来的地方

转轮热回收除湿机选型参数,泰力信TLX-Z26000E叠式转轮除湿机在化工行业的应用

全热回收转轮的工作原理:

转轮热回收除湿机选型参数,泰力信TLX-Z26000E叠式转轮除湿机在化工行业的应用

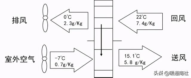
全热回收转轮换热实例计算:

北京室外工况,新风36000m3/h,76%全热效率,分子筛厚型热交换转轮。

全热回收效率的定义:

显热效率=(T1-T2)/(T1-T3);

潜热效率=(D1-D2)/(D1-D3)。

新风效率:

转轮热回收除湿机选型参数,泰力信TLX-Z26000E叠式转轮除湿机在化工行业的应用

北京夏季室外工况,76%全热效率;

36000m3/h新风节能258KW,即73冷吨;

其中显热节约75KW占29%,潜热节约183KW占71%。

转轮热回收除湿机选型参数,泰力信TLX-Z26000E叠式转轮除湿机在化工行业的应用

送风状态点的确定:

33.2–(33.2–25)×76%=26.97;

19.1–(19.1–10.9)×76% =12.87。

北京冬季室外工况,76%全热效率;

36000m3/h,新风节能417KW;

其中显热节约267KW占64%,潜热节约150KW占36%。

转轮热回收除湿机选型参数,泰力信TLX-Z26000E叠式转轮除湿机在化工行业的应用

新风热回收的其它几种方式:

转轮热回收除湿机选型参数,泰力信TLX-Z26000E叠式转轮除湿机在化工行业的应用

全热转轮可以选用更大的名义迎面风速,而且全热效率仍然很高(一般大于3.5M/S);而板翅式热交换器为保持其效率不至于过低,不得不选用非常低的名义迎面风速(一般小于1M/S)。使得在同等风量,同等效率的情况下,转轮热回收的体积要远远小于板翅式热回收。

转轮热回收除湿机选型参数,泰力信TLX-Z26000E叠式转轮除湿机在化工行业的应用

热回收转轮在空调系统中的布置:

热回收空调段设计要求:

1.全热回收转轮一般按75%左右的全热效率选型, 转轮本身阻力损失约为300pa。

2.转轮一般要求竖直放置,直径小于或等于1500mm的转轮可以水平放置,但要有相应的加固措施。

3.在新风侧以及回风侧,气流进入转轮之前,一定要有过滤器,其中新风过滤器最好为初中效。另外,在一些特殊应用场合如动物房等,回风过滤器也最好为初中效。

4.风机的布置必须满足要求,以使转轮清洁扇能正常工作。同时风机风压应相互匹配,各风量达到设计要求。

5.在新风、排风、回风等各处应设计良好的风阀以调节各风量。

6.在转轮的新风侧以及排风侧均安装一压差表,以监测转轮风量情况,并预留检测孔以测量温湿度。

7.转轮驱动电机电路中应包含过载保护器、运行指 示灯、开关,并与空调系统工作电路互锁。

8.在与转轮的相邻处,转轮的两侧应设置检修门以方便转轮清洗。

9.在北方寒冷地区,需在转轮前增加一预热器以防止隆冬季节转轮结霜或结冰。

10.系统新风口与排风口应远离,以免混风。

典型的新风处理机组设计:

转轮热回收除湿机选型参数,泰力信TLX-Z26000E叠式转轮除湿机在化工行业的应用

热回收转轮在空调箱中的推荐布置:

转轮热回收除湿机选型参数,泰力信TLX-Z26000E叠式转轮除湿机在化工行业的应用

热回收转轮在楼宇中的布置:

转轮热回收除湿机选型参数,泰力信TLX-Z26000E叠式转轮除湿机在化工行业的应用

转轮热回收除湿机选型参数,泰力信TLX-Z26000E叠式转轮除湿机在化工行业的应用

ERV与空气处理机直接相连:

转轮热回收除湿机选型参数,泰力信TLX-Z26000E叠式转轮除湿机在化工行业的应用

ERV与空气处理机相对独立:

转轮热回收除湿机选型参数,泰力信TLX-Z26000E叠式转轮除湿机在化工行业的应用

典型单机ERV安装:

转轮热回收除湿机选型参数,泰力信TLX-Z26000E叠式转轮除湿机在化工行业的应用

典型安装应用:吊顶式

转轮热回收除湿机选型参数,泰力信TLX-Z26000E叠式转轮除湿机在化工行业的应用

典型安装应用:多区域

转轮热回收除湿机选型参数,泰力信TLX-Z26000E叠式转轮除湿机在化工行业的应用

典型安装应用:吊顶式

转轮热回收除湿机选型参数,泰力信TLX-Z26000E叠式转轮除湿机在化工行业的应用

典型安装应用:多层

转轮热回收除湿机选型参数,泰力信TLX-Z26000E叠式转轮除湿机在化工行业的应用

本文素材来源于互联网,作者:百瑞。暖通南社整理编辑。

本文关键词:转轮除湿机原理图,转轮式除湿机 原理,热回收转轮和除湿转轮,转轮除湿机组工作原理,求购转轮除湿机。这就是关于《转轮热回收除湿机选型参数,泰力信TLX-Z26000E叠式转轮除湿机在化工行业的应用》的所有内容,希望对您能有所帮助!

本文链接:https://bk.89qw.com/a-875854

最近发表
网站分类