手机版

百科生活 投稿

陆家嘴金融广场,上海浦东金融广场——将浦东新区商业和交通配套无缝结合

百科 2026-02-06 14:55:27 投稿 阅读:7787次

关于【陆家嘴金融广场】,今天小编给您分享一下,如果对您有所帮助别忘了关注本站哦。

  • 内容导航:
  • 1、陆家嘴金融广场:上海浦东金融广场——将浦东新区商业和交通配套无缝结合 / SOM
  • 2、陆家嘴金融广场,陆家嘴高大上的银城中路竟曾叫

1、陆家嘴金融广场:上海浦东金融广场——将浦东新区商业和交通配套无缝结合 / SOM

我们认为,所有的城市开发项目在一定程度上都应该以“公共交通导向型开发”(TOD)的角度来思考。充分利用公交系统、提供安全愉悦的行人环境、为城市创建有活力的公共目的地等 SOM 设计原则,是贯穿于浦东金融广场设计中的主导因素。

在“效率决定一切”的现代城市,四通八达的交通设施是开发项目成功与否的关键要素之一。

上海浦东金融广场位于浦东新区的心脏地带,项目包含三栋办公楼和一座大型商场,项目的中心是一个面积约 12,000 平米的下沉式广场。

陆家嘴金融广场,上海浦东金融广场——将浦东新区商业和交通配套无缝结合

位于上海陆家嘴心脏地带的浦东金融广场 © SOM

设计充分整合与利用场地具备的交通优势,为公众提供了除小汽车以外的地铁、公交和步行等多种出行方式的选择。下沉式中心广场为为公众提供了两条地铁线和六条公交线之间直接的步行换乘,为地上地下的商业提供无缝连接,并成为浦东新区一个多功能的市民广场。

SOM 设计合伙人 Leo Chow 先生表示:“TOD 项目必须最大限度地利用适宜步行的、便利的公共交通方式。

“在浦东金融广场项目中,车辆只能在场地周边通行,项目本身完全整合了两条地铁线路和六条公交线路的终点站,以交通工具与项目相结合的方式提高通行效率,创造一个以人为本,又不依赖于小汽车的大型多功能开发项目,并为城市和社区创造一个充满活力的工作、娱乐和文化中心。”

陆家嘴金融广场,上海浦东金融广场——将浦东新区商业和交通配套无缝结合

浦东金融广场项目功能示意图 © SOM

以多模式交通为设计核心

上海有全球最长的地铁线路,四通八达的地铁网络也在整个浦东新区延伸。浦东金融广场的南北两侧紧邻两条地铁线——沿世纪大道运行的 2 号线和沿商城路运行的 9 号线。

陆家嘴金融广场,上海浦东金融广场——将浦东新区商业和交通配套无缝结合

浦东金融广场已成为浦东重要的公共交通枢纽 © SOM

解决场地上的公交换乘短版

项目建成前,两条地铁线的站点都与本项目场地相毗邻,但两座地铁站之间并无便捷连接,导致乘客无法在两条线路之间迅速换乘,必须上到地面并绕过场地再搭乘下行电梯才能换线。

项目建成前,浦东金融广场周边已有多座公交车站,但所有公交车站均停靠在沿街的特定位置,没有一个中央公交枢纽作为始发和终点站,所以如果要搭乘公交的话,也无法快速换乘,不得不绕过项目周边才能到达公交站。

更重要的是,地铁和公交车之间也没有可以直接换乘的连接,给通勤人群造成不便。SOM 的设计为上述问题提供了创造性的解决方案。

为场地量身打造一个公交联运枢纽

城市开发项目中,拥有一种以上公交系统的场地并不常见,这也是浦东金融广场的优势之一。这一优势决定了项目是否具备成为公共活动中心的潜力。

公交联运枢纽可有效连接城市中各种不同的公交模式,同时也能鼓励市民更多地采用公共交通的出行方式。SOM 设计合伙人 Leo Chow 指出:“以交通为契机实施城区改造的方式有很多优点”:

✔加强人与人之间、地点之间、活动项目之间的联系。✔ 提升人流量,促进思想碰撞、商业发展和交流协作。✔ 鼓励多元化,增加项目用途、建筑类型和配套设施的多样化。✔ 提升居民的生活质量。✔ 增加当地的就业机会,增加收入,提升房产的购买力。✔ 鼓励从私家车向公共交通的转变。✔ 实现更广泛的可持续发展目标。✔ 降低开发风险,吸引民间投资。✔ 促进卓越设计。

陆家嘴金融广场,上海浦东金融广场——将浦东新区商业和交通配套无缝结合

项目场地地下一层与地铁线路的连接 © SOM

浦东金融广场的重要特点之一,就是整合了一个多模式联运的交通枢纽。对未来可预见的,大客流的出发、到达、公交换乘和车辆进出的需求作出回应——建筑和车辆通道被巧妙地安排在场地外围, 而在项目中心创建的下沉式广场则为社区居民提供了一个通常在闹市里难觅的大型城市公共空间。

陆家嘴金融广场,上海浦东金融广场——将浦东新区商业和交通配套无缝结合

陆家嘴金融广场,上海浦东金融广场——将浦东新区商业和交通配套无缝结合

浦东金融广场整合的“嵌入式”公交枢纽 © SOM

多层次的公共空间营造一个聚会交流的目的地场所

功能与美观兼具的下沉式中心广场进一步“夯实”了项目优越的地理位置——位于浦东新区金融区和文化中心之间的地理焦点。

在作为浦东陆家嘴地区重要交通枢纽的基础上,SOM 在设计中融入了国际 TOD 项目的实践经验,通过项目的“高度公交可达性”特点激活整个区域的商业与公共活动,为周边社区居民、写字楼职员和游客创造出一个丰富多彩,令人流连的城市目的地。广场周围布置了商铺、餐厅等商业设施,吸引市民造访。

陆家嘴金融广场,上海浦东金融广场——将浦东新区商业和交通配套无缝结合

下沉式广场创造一个聚集人气,鼓励交流的目的地场所 © SOM

多层次分布的公共空间通过逐级而下的露天剧场式座位连接起来,是闹市中极为难得的市民活动空间。

宽敞的舞台和剧场式座位为这里举办的各种活动形式提供了多样化选择——从首层入口广场的购物和餐饮体验,到露天商业街,再到二层平台上闹中取静的午餐区——精心布局的功能模块让这个市中心难能可贵的市民广场从不缺惊喜,成为浦东新区一个充满活力与特色的目的地场所。

陆家嘴金融广场,上海浦东金融广场——将浦东新区商业和交通配套无缝结合

陆家嘴金融广场,上海浦东金融广场——将浦东新区商业和交通配套无缝结合

创造多层次的零售体验和城市公共空间,并无缝连接至地铁站点 © SOM

陆家嘴金融广场,上海浦东金融广场——将浦东新区商业和交通配套无缝结合

浦东金融广场的下沉式广场营造多层次的都市公共空间 © SOM

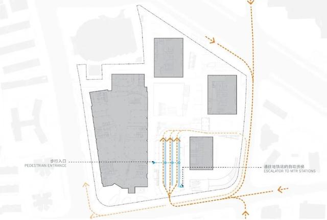
提升步行体验

行人的步行体验被策略性地分布到多层次的公共空间之中,并通过逐级而下的露天剧场式阶梯座位连接起来。

这个独特的公共空间为下沉式广场上举办的各类活动提供了更多可能性——从首层入口广场的购物、餐饮、露天商业街,到二层平台提供的幽静休憩场所——通过精心设计的,步行尺度的空间组网和建筑物的精心布局,形成一个高度开放、动态和灵活的步行环境。

陆家嘴金融广场,上海浦东金融广场——将浦东新区商业和交通配套无缝结合

场地出入口示意图,提供多层次的步行通道 © SOM

陆家嘴金融广场,上海浦东金融广场——将浦东新区商业和交通配套无缝结合

首层位于商城路的步行商业街入口 © SOM

陆家嘴金融广场,上海浦东金融广场——将浦东新区商业和交通配套无缝结合

行人可从场地西南角的浦东南路和商城路步行到达商场的主入口 © SOM

资料来源、版权所有: SOM

2、陆家嘴金融广场,陆家嘴高大上的银城中路竟曾叫

《大浦东》在央视一套上映,生在陆家嘴,又是浦东开发拓荒者和见证者的姚建良,看着电视剧的封面剧照——陆家嘴金融城的模样愣了神。

“1985年以前,整个浦东最高的建筑不超过30米,黄浦江沿岸是滩涂、农田,登高看着对岸的外滩,感觉是两个世界。”姚建良说,《大浦东》中的陆家嘴金融城集中展示了改革开放以来浦东新区的风云变幻,“过去的陆家嘴水网密布,现在摩登时尚,就如同曾经的烂泥渡路改名为银城中路一样,从陆家嘴路名变化中看到了上海飞速发展的缩影。”

浦东浦西生活曾截然不同

“站在25米高的瞭望塔上,视野里没有高大建筑物遮挡,往西往北看,能看到黄浦江,往东能看到长江口。”姚建良说,浦东尚未开发时,站在消防瞭望塔上看着对岸来来往往的电车,恍如两个世界。直到现在,老一辈仍会将去“浦西”称作“去上海”

在姚建良看来,当年浦东和浦西的生活品质截然不同,所以才有“宁要浦西一张床,不要浦东一间房”的说法。“那时候浦东只有4条交通线路,即81路、82路、85路和86路,道路也简单,沿着黄浦江东西走向的是浦东大道,南北走向的是浦东南路,两条路交叉是陆家嘴路,也就是轮渡那边。”

陆家嘴金融广场,上海浦东金融广场——将浦东新区商业和交通配套无缝结合

如同《大浦东》里主人公们感情路上好事多磨,当时浦东的小伙想让浦西姑娘嫁到浦东,那是不容易的。谈恋爱时,情侣一起看电影是少不了的,好事将近,买几件家具和家用电器也是理所当然。在姚建良嘴中,过去整个浦东就只有一家电影院,想要买家具或电器,甚至是几件像样的衣服也要坐轮渡去浦西买。浦东当时最繁华的商业街、被称作“浦东南京路”的东昌路商业街不超过一公里。

陆家嘴金融广场,上海浦东金融广场——将浦东新区商业和交通配套无缝结合

“现在上海中心和金贸大厦之间的花园石桥路,从路名就能看出曾经水网密布。现在除了花园石桥路,陆家嘴区域原先的次级道路名都没有了。”姚建良笑着说:“别看现在陆家嘴那么高大上,但国金中心到东昌路所在的银城中路曾经叫烂泥渡路;陆家嘴中国银行到浦东南路那段曾叫北护塘路;现在陆家嘴金融城附近的浦城路曾叫田度路……”

8万张照片见证浦东奇迹

作为土生土长的浦东人,姚建良说,正如电视剧中所描述的,1990年浦东开发开放的消息传来时,“就好比住在旧房子,突然听说要改造,觉得生活有盼头了。”如今,姚建良一家仍住浦东,出门是密集的地铁站和宽阔的马路,四下是环绕的高楼大厦。

陆家嘴金融广场,上海浦东金融广场——将浦东新区商业和交通配套无缝结合

姚建良今年刚过62岁,从1992年进入上海陆家嘴集团从事摄影工作,每年都在同一个地点拍摄陆家嘴,用8万张照片见证浦东从规划走向现在的金融中心。“对于上海来说,当初的陆家嘴如同一块处女地,大家对它期望很高,承载着推动上海下一步发展的重任,所以在做规划时就提出建设国际金融中心的目标。”

“从我记录的照片中,就能看出陆家嘴规划建设体现的美感。”姚建良告诉记者,陆家嘴中心区规划开先河地邀请其他国家参与,体现了浦东的开放与先行先试。

陆家嘴金融广场,上海浦东金融广场——将浦东新区商业和交通配套无缝结合

据姚建良介绍,陆家嘴区域原先工厂和住宅区集聚在一起,人口密度较高,“光陆家嘴金融城区域就有将近3000户居民。在居民支持下,从1996年8月开始动迁,用了11个月全部完成,这种动迁和开发建设速度是中国城市建设历史上绝无仅有的,这也是浦东速度的体现。”

“为什么我每年都会去拍摄陆家嘴?因为它是浦东经过28年努力,从无到有,从滩涂地、工厂码头和低矮平房,变成世界金融舞台的见证,是改革开发40年的缩影。”姚建良说。

栏目主编:王志彦 文字编辑:杜晨薇 题图来源:视觉中国 图片编辑:徐佳敏

内文照片姚建良 摄

本文关键词:陆家嘴金融广场地铁几号线,陆家嘴金融广场3号楼,陆家嘴金融广场有哪些公司,陆家嘴金融广场属于哪个街道,陆家嘴金融广场3座。这就是关于《陆家嘴金融广场,上海浦东金融广场——将浦东新区商业和交通配套无缝结合》的所有内容,希望对您能有所帮助!

本文链接:https://bk.89qw.com/a-883762

最近发表
网站分类